**Standout Features:**
- Prime Knightsbridge location, near Harrods and Sloane Square
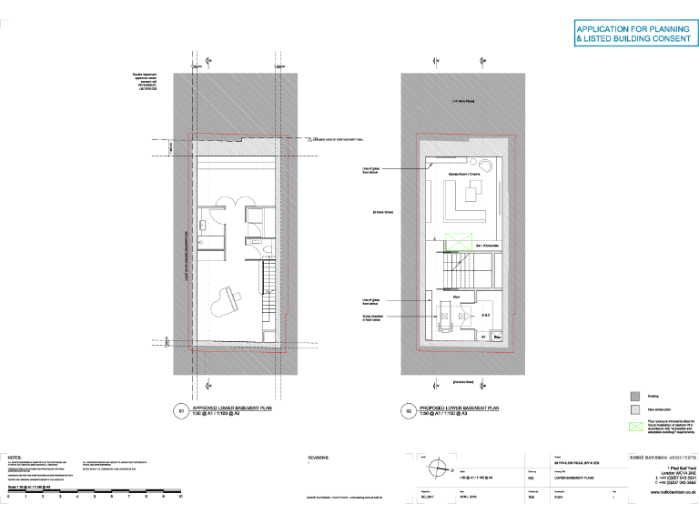
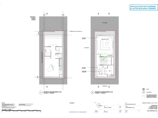
- Consent for redevelopment into a contemporary two-storey mews with basement
- Current rental income of £108,000 per annum
- Freehold property with excellent transport links (0.3 miles to Knightsbridge Station)
- Large total proposed GIA of 2,409 sq ft (223.8 sq m)
- CIL liability estimated at £103,000, with potential relief for end-user residences
**Potential Concerns:**
- Existing two-bedroom house might require maintenance post-demolition
- Limited immediate natural surroundings due to urban location
**Summary Description:**
Seize this rare chance to own a consented development site in the exclusive heart of Knightsbridge. Just a stone's throw from Harrods and Sloane Square, this freehold property is poised for transformation, having received planning permission for a contemporary two-storey mews with an additional basement level. The existing 1,223 sq ft two-bedroom house currently generates a rental income of £108,000 per year—ideal for investors looking for immediate returns while planning for future development.
With a total proposed size of 2,409 sq ft, this property offers substantial potential for both residential luxury and urban commercial application. Conveniently located 0.3 miles from Knightsbridge Station, enjoy swift access to central London while appreciating the vibrancy of this affluent area. Opportunities like this do not last long—act swiftly to secure this prime slice of Knightsbridge.
3 bedroom house for sale in Pavilion Road, London, SW1X — £2,750,000 • 3 bed • 1 bath • 2409 ft²
Mixed use property for sale in 21-23 Beauchamp Place, London, SW3 1NH, SW3 — £7,500,000 • 1 bed • 1 bath • 8214 ft²
10 bedroom terraced house for sale in Lowndes Square, London, SW1X — £25,000,000 • 10 bed • 9 bath • 7106 ft²
Residential development for sale in Lowndes Square, Knightsbridge, London, SW1X, United Kingdom, SW1X — £25,000,000 • 7 bed • 8 bath • 13500 ft²
5 bedroom terraced house for sale in Knightsbridge, SW1X, SW3 — £9,950,000 • 5 bed • 4 bath • 3000 ft²
3 bedroom house for sale in Pavilion Road, London, SW1X — £4,550,000 • 3 bed • 3 bath • 2665 ft²






