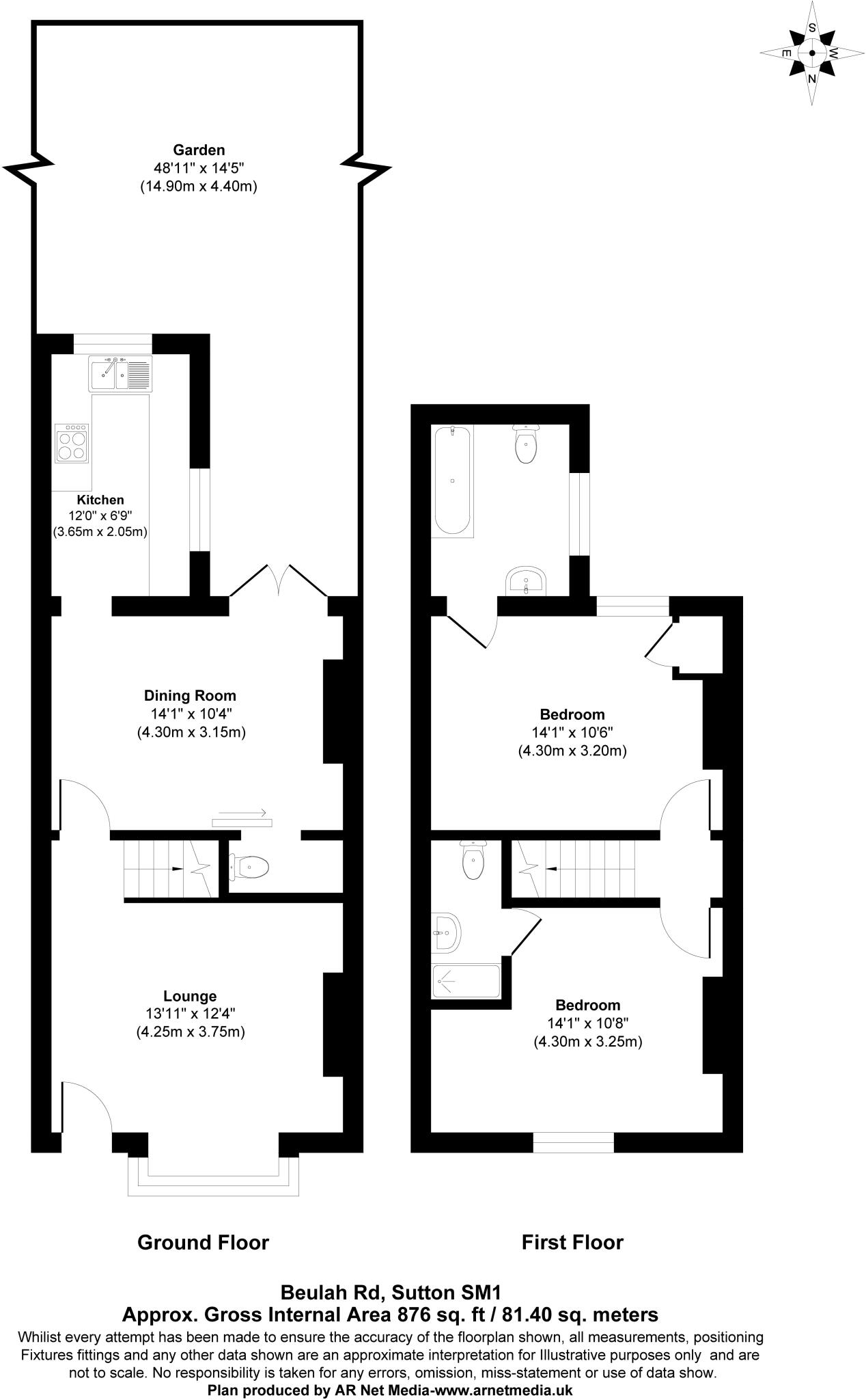
Character-filled home with long rear garden, top schools and fast rail links.
Two double bedrooms, each with its own ensuite or bathroom
South-facing rear garden approximately 48ft long
Separate living and dining rooms with period features
Compact overall footprint; small forecourt and garden
Freehold tenure with mains gas central heating
Double glazing installed before 2002; may need upgrading
Solid brick walls assumed with no cavity insulation
On-street parking only; typical for the street
This compact mid-terrace offers a practical family layout over two storeys, with two double bedrooms and two bathrooms. Period features such as a bay window and high ceilings give character, while the living and dining rooms provide separate reception spaces suited to family life or flexible working.
The south-facing rear garden is a standout for the size of property, providing outdoor space for children and entertaining. Local schooling is a strong draw, with several highly regarded state and independent schools within easy walking distance. Commuters benefit from fast services at Sutton and West Sutton stations and good local bus links.
The house is freehold and heated by a mains-gas boiler with radiators; double glazing is installed but predates 2002. Construction details suggest solid brick walls with no cavity insulation assumed, so buyers should factor potential energy-efficiency improvements. The overall plot is small and on-street parking is typical for the road.
Overall this is a well-located, characterful home for growing families or professional couples who value schools and transport links. It will suit purchasers happy to carry out minor modernisation or energy-efficiency upgrades to personalise the property and reduce running costs.
2 bedroom terraced house for sale in Harold Road, Sutton, SM1 — £375,000 • 2 bed • 1 bath • 860 ft²
2 bedroom terraced house for sale in Beulah Road, Sutton, Surrey, SM1 — £400,000 • 2 bed • 1 bath • 807 ft²
2 bedroom terraced house for sale in Oakhill Road, Sutton, SM1 — £425,000 • 2 bed • 2 bath • 700 ft²
2 bedroom end of terrace house for sale in Beulah Road, Sutton, Surrey, SM1 — £475,000 • 2 bed • 1 bath • 831 ft²
3 bedroom terraced house for sale in Beauchamp Road, Sutton, SM1 — £499,950 • 3 bed • 1 bath • 1109 ft²
4 bedroom terraced house for sale in Bishops Close, Sutton, SM1 — £585,000 • 4 bed • 2 bath • 1216 ft²


























































