Period charm near Sutton stations, ready for renovation and family life.
Approx 860 sq ft over two storeys
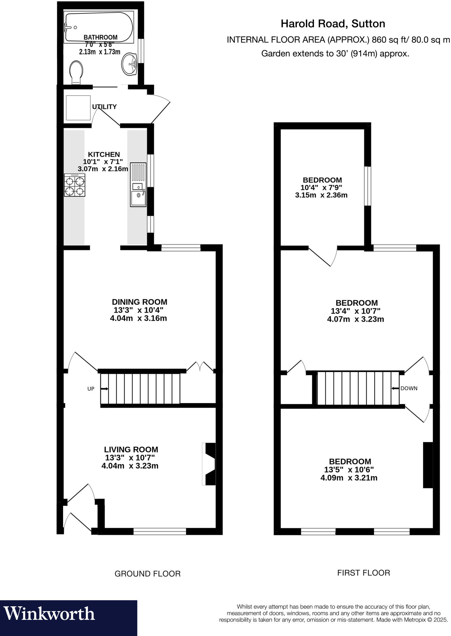
A late-Victorian mid-terrace with traditional period features and convenient commuter links. The property offers a practical two-storey layout with a front living room, separate dining room, kitchen, downstairs bathroom and two double bedrooms plus a smaller connecting room on the first floor. A manageable rear garden of approximately 30ft provides outdoor space without onerous upkeep.
The house retains character details such as exposed beams and a brick fireplace, but requires modernisation throughout — the kitchen, bathroom and general decor need updating. Double glazing is installed but dates from before 2002; heating is mains gas with a boiler and radiators. On-street parking is typical for the road and there is no off-street parking.
Located in a quiet cul-de-sac within walking distance of Sutton and Carshalton mainline stations, good bus routes and a wide range of local amenities. Several highly regarded primary and secondary schools are nearby, making this a sensible buy for young families wanting proximity to transport and schools. The freehold tenure and straightforward terrace footprint offer clear potential for a refurbishment project to add value.
Suitable for first-time buyers or families seeking a commuter-friendly home with period charm, and for investors looking to refurbish. Buyers should budget for modernization works and be prepared for limited external space and typical inner-suburban constraints.
2 bedroom end of terrace house for sale in Beulah Road, Sutton, Surrey, SM1 — £475,000 • 2 bed • 1 bath • 831 ft²
2 bedroom terraced house for sale in Oakhill Road, Sutton, SM1 — £425,000 • 2 bed • 2 bath • 700 ft²
3 bedroom semi-detached house for sale in Vernon Road, Sutton, SM1 — £550,000 • 3 bed • 1 bath • 974 ft²
2 bedroom terraced house for sale in Beulah Road, Sutton, Surrey, SM1 — £400,000 • 2 bed • 1 bath • 807 ft²
2 bedroom terraced house for sale in Beulah Road, Sutton, SM1 — £450,000 • 2 bed • 2 bath • 824 ft²
2 bedroom terraced house for sale in Collingwood Road, Sutton, Surrey, SM1 — £375,000 • 2 bed • 1 bath • 738 ft²














































