PE11 3QQ - 2 bedroom semidetached house for sale in Six House Bank, We…

View on Property Piper

2 bedroom semi-detached house for sale in Six House Bank, West Pinchbeck, PE11

Summary - 23 SIX HOUSE BANK WEST PINCHBECK SPALDING PE11 3QQ

2 bed 1 bath Semi-Detached

Generous plot and garage — a renovation opportunity in a peaceful village location..
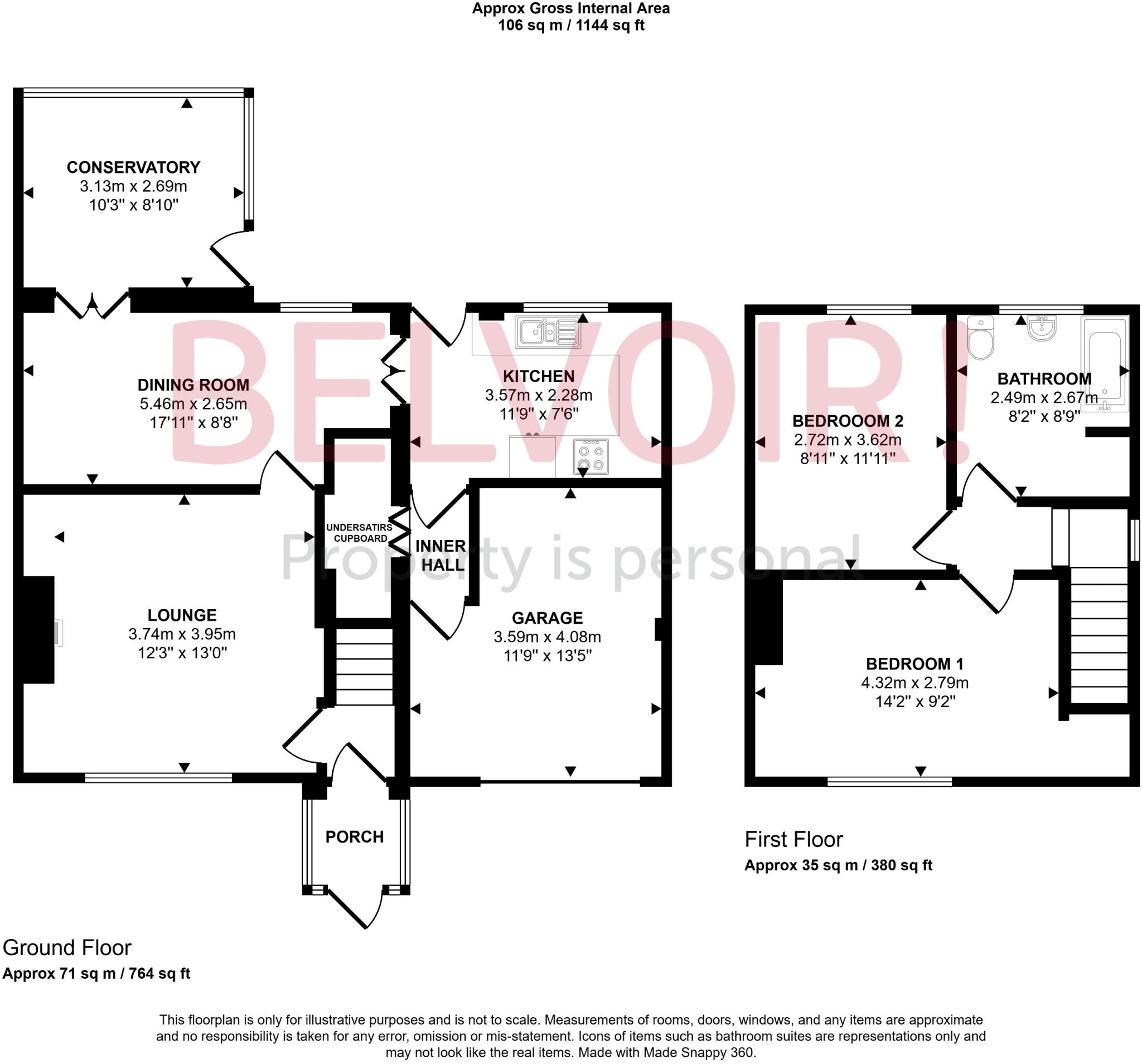
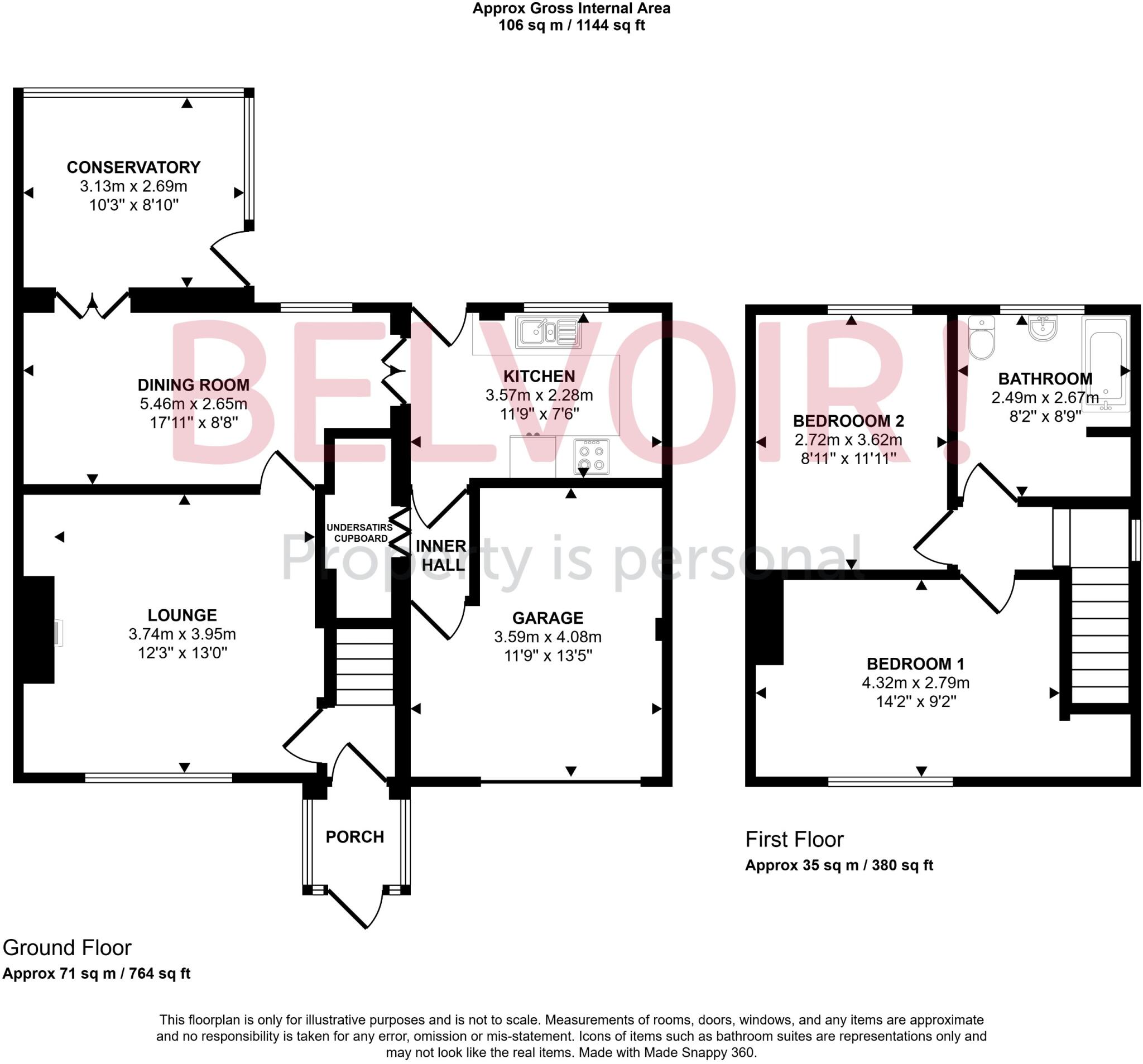
- Two bedrooms and two reception rooms plus conservatory
- Generous plot with off-road parking and detached garage
- Requires full updating; kitchen and interiors dated
- EPC rating F; oil boiler heating may increase running costs
- Medium flood risk — consider insurance and mitigation
- Freehold and very low council tax
- Average broadband and mobile signal in the village
- Single bathroom; potential to extend subject to planning
Set on a generous plot in village West Pinchbeck, this two-bedroom semi-detached house offers clear scope for improvement and uplift. The layout includes two reception rooms, a conservatory, kitchen and upstairs bathroom — useful living space for a first-time buyer or investor prepared to renovate. Parking and a detached garage add practical value, and the large rear garden provides scope to extend or create a low-maintenance outdoor area.

The accommodation is dated throughout: the kitchen is a small 1970s-style galley in need of replacement, and the property requires general updating. The EPC is F and heating runs from an oil-fired boiler to radiators, which may influence running costs and mortgage/insurer requirements. There is only one bathroom and some external areas are overgrown.

Practical positives include freehold tenure, low council tax, off-street parking and garage, and a sizeable plot that supports extension potential (subject to planning). The village setting suits buyers looking for a rural community with reasonable access to good local secondary schools and average broadband and mobile connectivity.

This house suits a buyer who wants a project: invest in modernisation to unlock immediate value, or hold as a rental in a low-crime, village location. Be aware of flood risk rated as medium and the likely immediate costs to bring heating, energy performance and interiors up to modern standards.

Property Details

Image Descriptions

Floorplan Description

Rooms

Textual Property Features

Target Audience

AI Tags

Detected Visual Features

EPC Details

Nearby Schools

Nearest Bars And Restaurants

,,,,}

Nearest General Shops

,,}

Nearest Grocery shops

,,}

Nearest Supermarkets

,,}

Nearest Religious buildings

,,}

Nearest Medical buildings

,,,}

Nearest Leisure Facilities

,,,,}

Nearest Tourist attractions

,,}

Nearest Train stations

,,,,}

Nearest Bus stations and stops

,,,,}

Nearest Hotels

,,}

Tags

Local Market Stats

Similar Properties

Meta

High Res Images

Compatible Images

Low res Images

Thumbnails

Raw Images

High Res Floorplan Images

Compatible Floorplan Images

Low res Floorplan Images

FloorplanImages Thumbnail

Raw Floorplan Images