**Standout Features:**
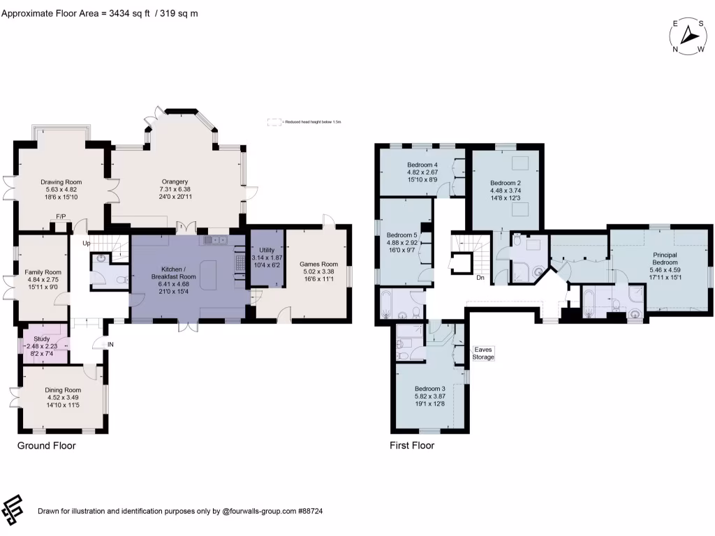
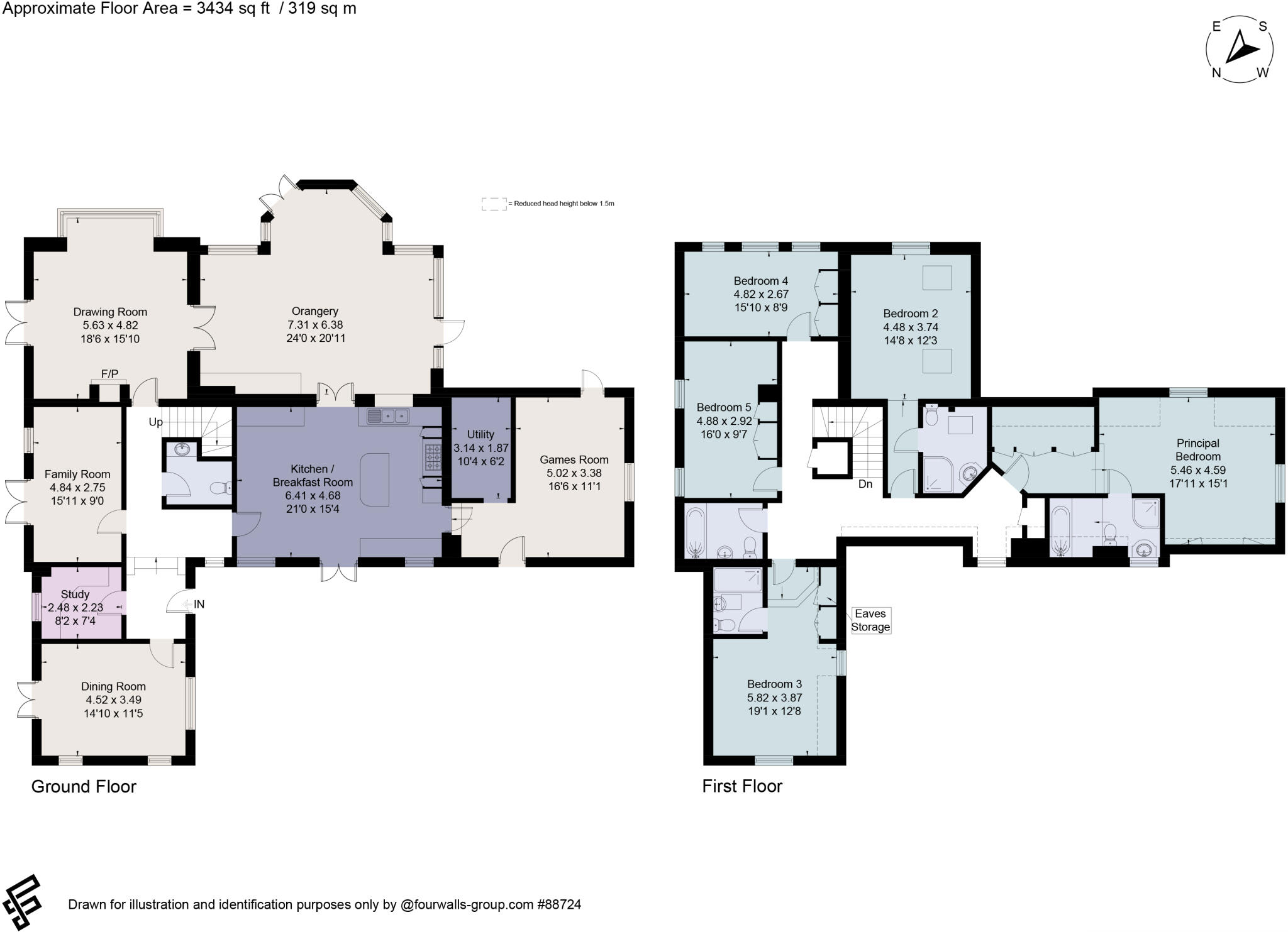
- Spacious 5-bedroom detached house with 3,434 sq ft of flexible living space.
- 6 reception rooms, including a formal drawing room with open fireplace and a generous orangery.
- Beautiful countryside views and a secluded terrace ideal for outdoor entertaining.
- Set in an affluent conservation area, close to Guildford and major transport links.
- Private off-street parking with ample space for several cars.
**Potential Concerns:**
- Very expensive council tax.
- Detached property may require some maintenance, typical for properties of this nature.
Discover Walnut House, a beautifully designed family home nestled within the picturesque hamlet of Wanborough. This stunning property offers a harmonious blend of modern and traditional elements, featuring multiple reception rooms that create a comfortable and inviting atmosphere. The heart of the home is the spacious kitchen/breakfast room, which flows into a magnificent orangery bathed in natural light and opens onto a private terrace.
With five generous bedrooms, including an impressive principal suite with an ensuite bathroom, this residence provides ample accommodation for families or those looking to entertain guests. Enjoy captivating countryside views from the level gardens, perfect for family gatherings or peaceful retreats. The property is conveniently located near top-rated schools and the vibrant cultural offerings of Guildford, while still providing a sense of tranquility and privacy.
Opportunities like Walnut House, with its expansive layout and idyllic setting, are rare. Don't miss your chance to secure this exceptional family home, where comfort meets countryside charm. Explore the potential to personalize the space to your taste, completely immersing yourself in the beauty of rural living while being just a short journey from urban conveniences.
5 bedroom detached house for sale in Manor Farm, Wanborough, Guildford, Surrey, GU3 — £1,500,000 • 5 bed • 4 bath • 3434 ft²
6 bedroom detached house for sale in Busbridge Lane, Godalming, GU7 — £1,695,000 • 6 bed • 4 bath • 3201 ft²
6 bedroom detached house for sale in Kings Drive, Midhurst, West Sussex, GU29 — £2,300,000 • 6 bed • 4 bath • 5000 ft²
4 bedroom farm house for sale in Wanborough, Guildford, Surrey, GU3 2JR, GU3 — £1,500,000 • 4 bed • 2 bath • 3385 ft²
6 bedroom detached house for sale in Wanborough Hill, Wanborough, Guildford, GU3 — £2,250,000 • 6 bed • 3 bath • 3328 ft²
4 bedroom detached house for sale in Wanborough, Guildford, Surrey, GU3 — £1,250,000 • 4 bed • 2 bath • 1941 ft²














































































































