Set steps from the New Forest and Lyndhurst High Street.
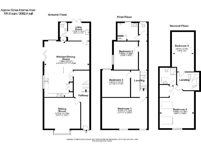
Five bedrooms across three floors, approximately 2,000 sq ft
Set on one of Lyndhurst’s most desirable roads, this newly renovated five-bedroom semi-detached house offers spacious, flexible living across three floors (circa 2,000 sq ft). The refurbished Neptune kitchen with polished quartz surfaces and aluminium bi-fold doors links easily to the sheltered terrace and Mediterranean-style rear garden — a practical layout for family meals and entertaining. Original Edwardian details sit alongside contemporary finishes, giving charm without the compromise.
Practical benefits include a long block-paved driveway with ample off-street parking, a newly built single garage (due for completion May 2025), and useful utility and cloakroom spaces. The principal bedroom and two further doubles on the first floor, plus two attic-level rooms including an en-suite, give plenty of bedroom options for family, home office or guest use.
Location is a clear strength: approximately 300 yards from the New Forest and a short walk to Lyndhurst High Street, local shops, and good primary schools. Transport links via the M27 and nearby Brockenhurst rail station broaden commuting and leisure options. The property is freehold and offered chain free.
Notable practical points to consider: the property sits in a medium flood-risk area and currently has a D energy rating (58) with potential to improve to B (83). Broadband speeds are limited compared with urban areas, and council tax sits in an expensive band. Buyers should factor routine maintenance for a property of this age, despite recent sympathetic renovations.
5 bedroom semi-detached house for sale in Princes Crescent, Lyndhurst, SO43 — £825,000 • 5 bed • 1 bath • 2240 ft²
5 bedroom semi-detached house for sale in Princes Crescent, Lyndhurst, Hampshire, SO43 — £850,000 • 5 bed • 4 bath • 2312 ft²
3 bedroom character property for sale in Princes Crescent, Lyndhurst, SO43 — £495,000 • 3 bed • 1 bath • 883 ft²
5 bedroom detached house for sale in Knightwood Close, Lyndhurst, SO43 — £950,000 • 5 bed • 2 bath • 1688 ft²
5 bedroom semi-detached house for sale in Princes Crescent, Lyndhurst, Hampshire, SO43 — £775,000 • 5 bed • 3 bath • 2000 ft²
4 bedroom link detached house for sale in The Meadows, Lyndhurst, SO43 — £599,950 • 4 bed • 2 bath • 1350 ft²














































































