Large garden and garage with clear scope to modernise and extend.
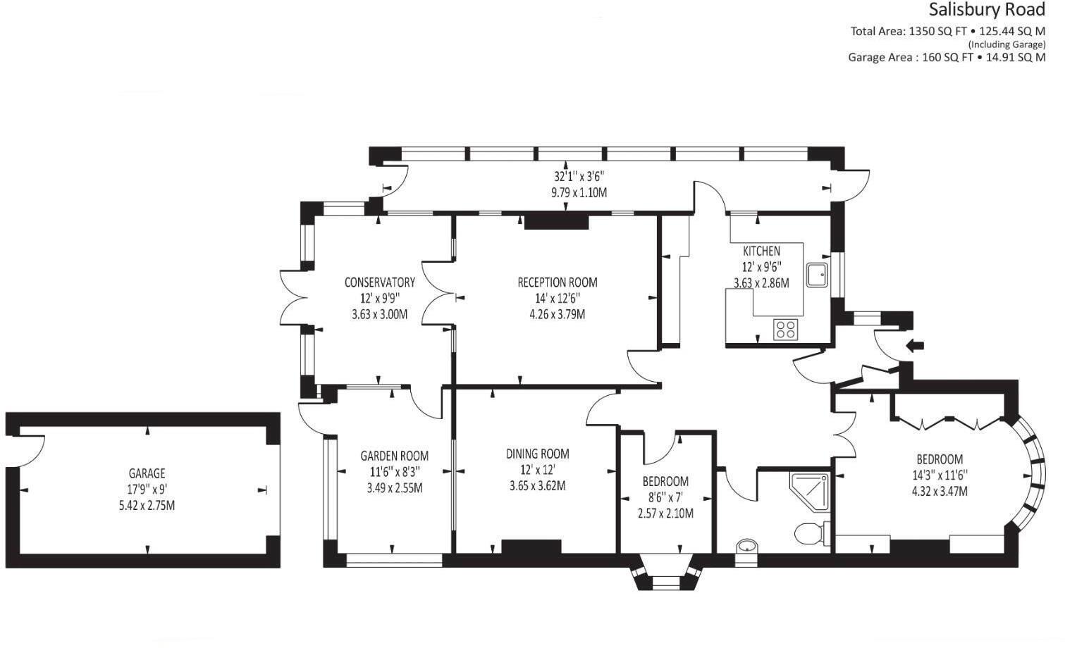
- Detached three-bedroom bungalow on a large plot with 70 ft rear garden
- Full-width conservatory and bay-fronted reception room
- Off-street parking for several cars plus detached garage
- Requires full refurbishment throughout; renovation needed
- Potential to extend to increase living space (STPP)
- Solid brick walls likely uninsulated; energy performance EPC D
- Single bathroom only; layout may limit immediate family use
- Chain-free sale for a quicker purchase process
Set on a quiet, tree-lined road in Worcester Park, this three-bedroom detached bungalow sits on a generous plot with a 70 ft rear garden and detached garage. The single-storey layout, bay-fronted reception and a full-width conservatory give immediate kerb appeal and straightforward single-level living for families or downsizers.
The property requires full refurbishment throughout, presenting clear scope to modernise the kitchen, bathroom and internal fittings. There is potential to extend subject to planning (STPP) for buyers wanting to increase living space. The home benefits from double glazing (fitted after 2002), mains gas heating and off-street parking on a wide driveway.
Buyers should note material points plainly: the bungalow needs renovation, walls are likely uninsulated solid brick (as built), EPC rating D, and there is only one bathroom. Council tax is described as expensive. The sale is chain-free, which can speed a practical refurbishment project or extension application.
This is a solid plot-and-position opportunity for someone prepared to invest in updating and remodelling. Its proximity to local shops, transport links, Auriol Park and several well-rated schools makes it appealing for families who want single-floor living with future expansion potential.
3 bedroom detached bungalow for sale in Salisbury Road, Worcester Park, KT4 — £650,000 • 3 bed • 1 bath • 1350 ft²
3 bedroom detached bungalow for sale in Salisbury Road, Worcester Park, KT4 — £675,000 • 3 bed • 1 bath • 1398 ft²
4 bedroom detached bungalow for sale in The Warren, Worcester Park, KT4 — £675,000 • 4 bed • 1 bath • 1044 ft²
4 bedroom detached bungalow for sale in The Warren, Worcester Park, KT4 — £800,000 • 4 bed • 3 bath • 1516 ft²
4 bedroom detached house for sale in The Grange, Worcester Park, KT4 — £995,000 • 4 bed • 2 bath • 1932 ft²
3 bedroom detached bungalow for sale in Cuddington Way, South Cheam, SM2 — £750,000 • 3 bed • 1 bath • 1209 ft²


















































































