Chain-free two-bedroom over-55s apartment near Portchester Castle with communal gardens..
Over-55s first-floor apartment, chain-free
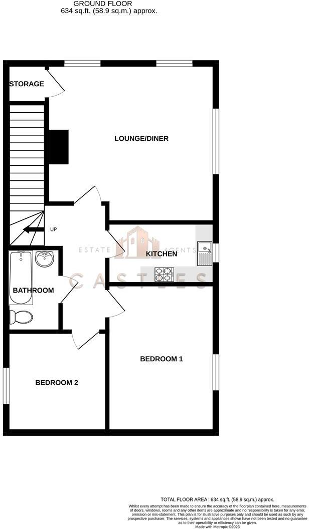
Spacious lounge/diner and modern fitted kitchen
Large primary bedroom; second bedroom suitable as guest room
Single family bathroom; compact overall living space
Communal gardens and low-maintenance outdoor areas
Residents parking — first-come, first-served (not allocated)
101-year lease; service charge ~£1,382.34 pa, ground rent £50 pa
Built late 1990s; double glazing and mains gas central heating
A comfortable first-floor apartment in the popular Boxtree Court over-55s development, offered chain-free and ready for immediate occupation. The home features a roomy lounge/diner, a modern fitted kitchen and a large primary bedroom, arranged over a compact but well-laid-out 634 sq ft. Double glazing and mains gas central heating provide efficient comfort, and the building dates from the late 1990s so construction and insulation are modern.
Outside, well-kept communal gardens and residents’ off-street parking provide low-maintenance outdoor space and easy access to Portchester village amenities. Portchester Castle and local shops are a short walk away, and the area benefits from low crime, good mobile and broadband coverage and a generally comfortable neighbourhood environment.
Practical costs and limitations are straightforward: a 101-year lease, an annual service charge of approximately £1,382 and a small ground rent of £50. Parking is available on a first-come, first-served basis rather than by allocated space. The apartment has a single bathroom and is compact in overall scale, so it best suits downsizers or retirees seeking a low-maintenance base rather than buyers needing large family accommodation.
This property offers a low-hassle retirement option with nearby conveniences and communal gardens. Buyers should check lease details and service charge arrangements with their solicitor during conveyancing to confirm suitability and ongoing costs.
2 bedroom flat for sale in Postern Close, Portchester,, PO16 — £200,000 • 2 bed • 1 bath • 700 ft²
2 bedroom retirement property for sale in Postern Close, Portchester , PO16 — £210,000 • 2 bed • 1 bath • 588 ft²
1 bedroom apartment for sale in Postern Close, Portchester,, PO16 — £160,000 • 1 bed • 1 bath • 497 ft²
2 bedroom flat for sale in Oysell Gardens, Portchester, PO16 — £210,000 • 2 bed • 2 bath • 647 ft²
2 bedroom flat for sale in Nelson Avenue, Portchester, PO16 — £200,000 • 2 bed • 2 bath • 604 ft²
1 bedroom apartment for sale in New Priory Gardens, Portchester, PO16 — £80,000 • 1 bed • 1 bath • 388 ft²






























































