Modern layout, large garden and parking ideal for growing households.
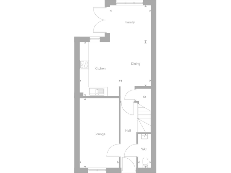
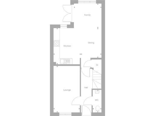
- Three-storey new-build with open-plan kitchen/dining/family area
- Principal bedroom with en-suite and built-in storage
- Generous garden and off-street parking
- Approximately 902 sqft — compact room proportions
- 10-year builder warranty included
- Broadband speeds reported as very slow locally
- Annual service charge applicable (example £157–£220)
- Area classified with signs of deprivation (may affect services)
This three-storey, new-build semi-detached house is designed for growing families who need flexible living space. The ground floor features an open-plan kitchen/dining/family area with French doors to a substantial garden, plus a separate lounge and downstairs WC for everyday convenience.
Upstairs offers two spacious first-floor bedrooms and a family bathroom, while the top-floor principal bedroom benefits from a dormer, built-in storage and an en-suite. Off-street parking is provided to the front and the home comes with a 10-year builder warranty for peace of mind.
Practical considerations: the home is modest in internal size (approximately 902 sqft) and broadband speeds in the area are reported as very slow. Annual service charges apply (examples shown £157.40–£220.26) and a reservation fee is required. The location sits within a hamlet/isolated-dwelling classification and the wider area shows signs of deprivation, which may influence local services and resale dynamics.
Overall this property suits families seeking a modern, low-maintenance home with flexible three-storey living and a large plot, but buyers should factor in connectivity limits and running costs when deciding to view.
3 bedroom detached house for sale in South Wokingham,
Berkshire,
RG40 3BZ, RG40 — £575,000 • 3 bed • 1 bath • 618 ft²
4 bedroom semi-detached house for sale in South Wokingham,
Berkshire,
RG40 3BZ, RG40 — £642,995 • 4 bed • 1 bath • 687 ft²
2 bedroom semi-detached house for sale in South Wokingham,
Berkshire,
RG40 3BZ, RG40 — £450,000 • 2 bed • 1 bath • 626 ft²
4 bedroom detached house for sale in South Wokingham,
Berkshire,
RG40 3BZ, RG40 — £635,000 • 4 bed • 1 bath • 595 ft²
3 bedroom detached house for sale in South Wokingham,
Berkshire,
RG40 3BZ, RG40 — £580,000 • 3 bed • 1 bath • 653 ft²
3 bedroom semi-detached house for sale in Chobham Road,
Surrey,
GU16 8QD, GU16 — £550,000 • 3 bed • 1 bath • 624 ft²














































