Move-in-ready three-bed with garden and NHBC cover — ideal for first-time buyers.
19ft lounge with French doors to garden
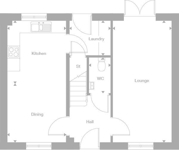
Open-plan kitchen/diner plus separate laundry room
Principal bedroom with en-suite; bedroom 3 suitable for study
Small overall internal size — approx 653 sq ft
10-year NHBC warranty; modern build with solar panels
Allocated off-street parking and very large plot
Very slow broadband speeds despite excellent mobile signal
Annual service charge £220.26; reservation fee applies
A compact three-bedroom detached new home in South Wokingham, designed for modern living. The ground floor provides a 19ft lounge with French doors to the garden, an open-plan kitchen/diner, a handy laundry room and a downstairs WC — practical spaces for everyday family life. Upstairs offers a principal bedroom with en-suite, two further bedrooms (bedroom 3 ideal as a study) and built-in landing storage.
This plot includes off-street allocated parking, a private garden and solar panels visible on the roof. The home is covered by a 10-year NHBC warranty and comes from a builder rated highly for customer satisfaction, which can reassure buyers who prefer new-build guarantees. Service charge is modest at £220.26 per year and a reservation fee applies.
Notable constraints are the property’s relatively small internal size (approximately 653 sq ft) — better suited to a couple, small family or first-time buyer rather than a larger household. Broadband speeds are reported very slow in the area, which may affect home working despite excellent mobile signal. The wider area shows signs of local deprivation; buyers should check local services and travel links to be confident of the location's fit.
Overall this is a low-maintenance new home with modern fittings and practical layout, appealing to buyers seeking a move-in-ready, energy-efficient house on a large plot. Be aware of the compact room sizes, annual service charge and reservation/optional purchase terms before proceeding.
3 bedroom detached house for sale in South Wokingham,
Berkshire,
RG40 3BZ, RG40 — £570,000 • 3 bed • 1 bath • 618 ft²
2 bedroom semi-detached house for sale in South Wokingham,
Berkshire,
RG40 3BZ, RG40 — £450,000 • 2 bed • 1 bath • 626 ft²
3 bedroom semi-detached house for sale in South Wokingham,
Berkshire,
RG40 3BZ, RG40 — £595,000 • 3 bed • 1 bath • 902 ft²
4 bedroom detached house for sale in South Wokingham,
Berkshire,
RG40 3BZ, RG40 — £635,000 • 4 bed • 1 bath • 595 ft²
3 bedroom detached house for sale in Lower Way,
Thatcham,
RG19 3RP, RG19 — £490,000 • 3 bed • 1 bath • 1440 ft²
3 bedroom detached house for sale in Harvest Ride,
Warfield,
Bracknell,
RG42 6AN, RG42 — £595,000 • 3 bed • 1 bath • 795 ft²


















































