BA1 5EX - 1 bedroom apartment for sale in Lansdown Crescent, Bath, BA1

View on Property Piper

1 bedroom apartment for sale in Lansdown Crescent, Bath, BA1

Summary - Flat 3, 12 Lansdown Crescent, Lansdown BA1 5EX

1 bed 1 bath Apartment

### Key Features:
- **Stunning Grade I Georgian Apartment**
- **Spacious First Floor Layout:** Over 1,200 sq ft
- **Impressive High Ceilings & Feature Fireplace**
- **Prestigious Lansdown Crescent Location**
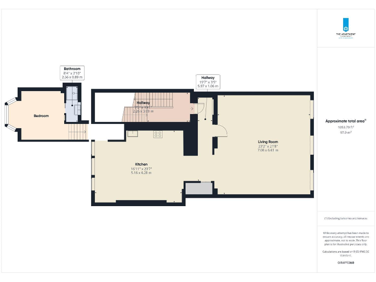
- **Generous Living Room (23'2" x 21'9") with Tall Sash Windows**
- **Bespoke Kitchen with Custom Teak Units**
- **Elegant Double Bedroom with Ensuite**
- **Significant Loft Storage**
- **EPC Rating D, Council Tax Band D**

This magnificent first-floor Georgian apartment located in the prestigious Lansdown Crescent presents a rare opportunity for those seeking luxury and character in Bath. Spanning over 1,200 square feet, the residence features an expansive living room that exudes grandeur, with ornate high ceilings and a stunning fireplace providing a captivating focal point. Bathed in natural light from three tall sash windows, the living area seamlessly transitions into a bespoke kitchen complete with custom teak cabinetry and upscale appliances, creating a harmonious blend of elegance and functionality.

While the property delights with its period charm, it is essential to note the EPC rating of D, suggesting that future buyers may want to consider potential improvements for energy efficiency. The spacious double bedroom with custom built-in wardrobes ensures storage is well-managed, and the contemporary ensuite bathroom continues the theme of quality throughout. Ideal for discerning professionals or couples, this stylish abode promises both comfort and exclusivity in an enviable location. Don’t miss out on this unique living experience—properties of this caliber are highly sought-after and won’t last long!

Property Details

Brochure Descriptions

Image Descriptions

Floorplan Description

Rooms

Textual Property Features

Detected Visual Features

EPC Details

Nearby Schools

Nearest Bars And Restaurants

,,,,}

Nearest General Shops

,,}

Nearest Grocery shops

,,}

Nearest Supermarkets

,,}

Nearest Religious buildings

,,}

Nearest Medical buildings

,,,}

Nearest Airports

}

Nearest Leisure Facilities

,,,,}

Nearest Tourist attractions

,,}

Nearest Train stations

,,,,}

Nearest Bus stations and stops

,,,,}

Nearest Hotels

,,}

Tags

Local Market Stats

AirBnB Data

Similar Properties

Meta

High Res Images

Compatible Images

Low res Images

Thumbnails

Raw Images

High Res Floorplan Images

Compatible Floorplan Images

Low res Floorplan Images

FloorplanImages Thumbnail

Raw Floorplan Images