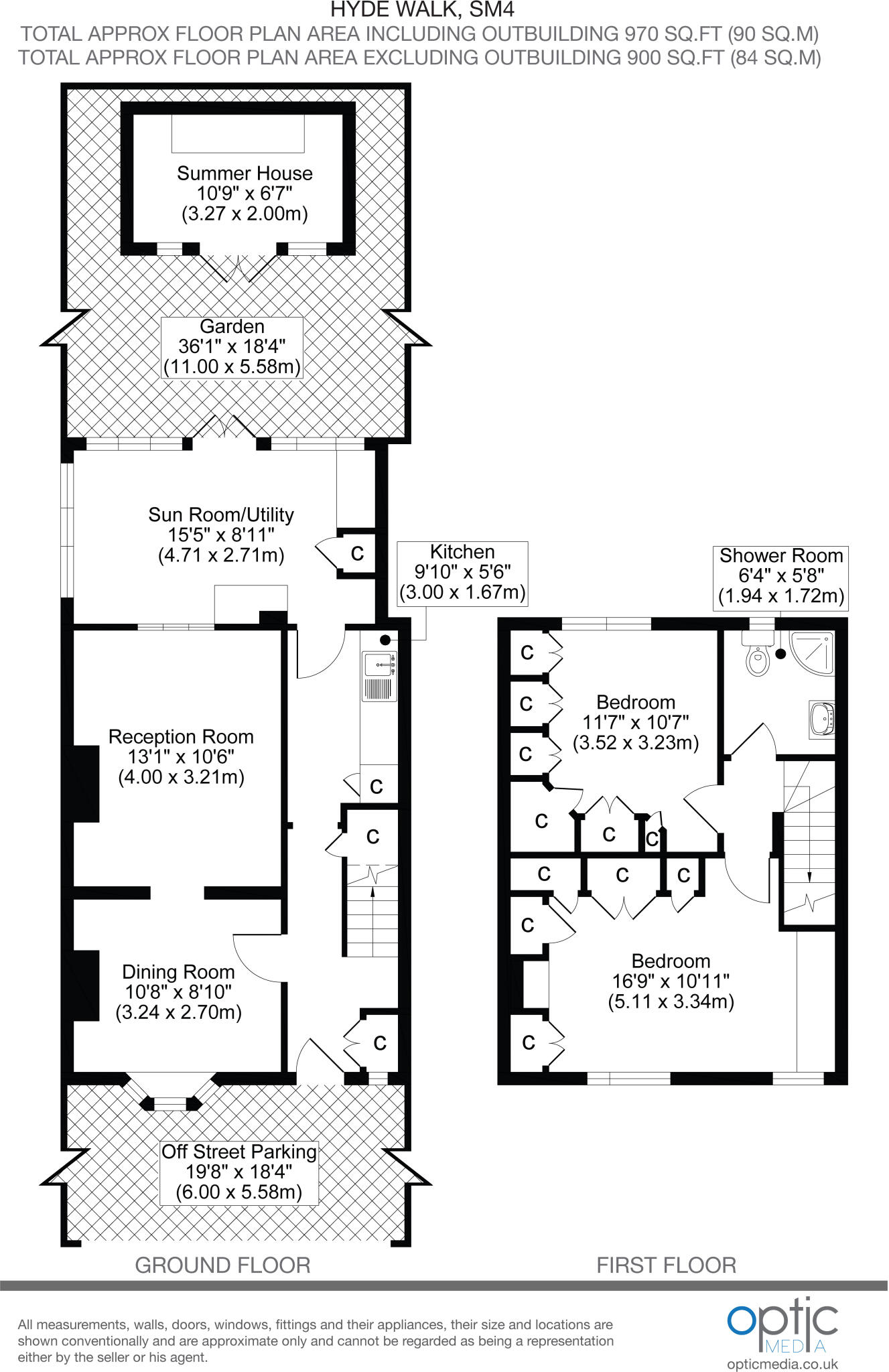
**Standout Features:**
- Beautifully presented mid-20th century terraced home
- Spacious living and separate dining room
- Modern kitchen with sun room/utility area
- Two generous double bedrooms
- Landscaped rear garden with versatile cabin (office/playroom)
- Off-street parking for multiple vehicles
- Prime location in St Helier with excellent transport links
**Summary:**
Discover the charm of this beautifully presented 2-bedroom terraced home nestled on a desirable residential road in St Helier. Ideal for young families or professionals, this property features a spacious living room, a separate dining area, and a modern kitchen that connects to a sun room/utility area — perfect for daily chores or leisure. Upstairs, find two generously sized double bedrooms complemented by a stylish shower room.
Step outside to a beautifully landscaped rear garden, offering a serene escape and a versatile cabin that can serve as a home office, studio, or playroom. With off-street parking for several vehicles and easy access to St Helier train station—providing direct transport links to Wimbledon—you'll enjoy excellent connectivity while relishing the tranquility of a suburban lifestyle. Local amenities, schools with good Ofsted ratings, and a vibrant community are all just a stroll away, making this an exciting opportunity for those seeking a well-rounded home in a sought-after location. Don't miss out on this unique gem!
4 bedroom terraced house for sale in Love Lane, Morden, SM4 — £575,000 • 4 bed • 1 bath • 1130 ft²
4 bedroom terraced house for sale in Glastonbury Road, Morden, SM4 — £575,000 • 4 bed • 2 bath • 1155 ft²
2 bedroom end of terrace house for sale in Darley Gardens, Morden, SM4 — £400,000 • 2 bed • 1 bath • 642 ft²
3 bedroom end of terrace house for sale in Tewkesbury Road, Carshalton, SM5 — £435,000 • 3 bed • 1 bath • 620 ft²
2 bedroom terraced house for sale in Easby Crescent, Morden, SM4 — £400,000 • 2 bed • 1 bath • 661 ft²
3 bedroom terraced house for sale in St Helier Avenue, Morden, Surrey, SM4 — £475,000 • 3 bed • 1 bath • 772 ft²


















































































