Generous garden, garage and school catchments — ideal renovation opportunity for families.
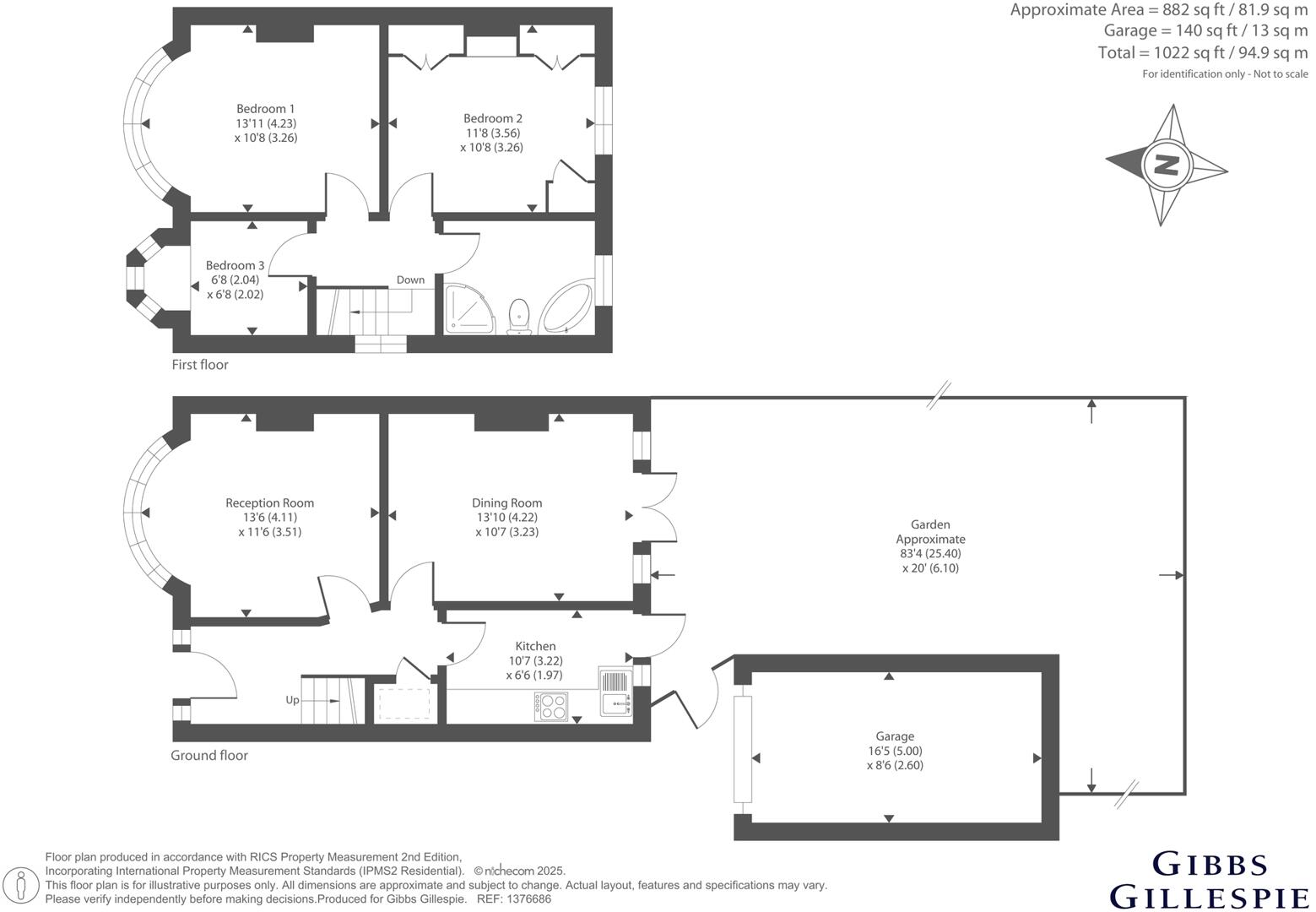
- Freehold three-bedroom semi with no upper chain
- Spacious bay-front reception and separate dining room
- Large rear garden, patio and detached single garage
- Good scope to extend (subject to planning permission)
- Requires full modernisation throughout, renovation needed
- Solid brick walls likely uninsulated; older double glazing
- Single family bathroom only; potential to add more bathrooms
- Driveway provides off-street parking for multiple vehicles
A traditional 1930s bay-fronted freehold home on a popular residential road, offered with no upper chain. The house provides a spacious reception room, separate dining room with patio doors, fitted kitchen and three bedrooms upstairs plus a family bathroom. A paved driveway and detached single garage give convenient off-street parking.
The plot is a real asset: a substantial rear garden and patio offer scope for outdoor living and sensible extension potential (subject to planning). The house retains period character such as bay windows and fireplaces but is presented in largely original condition, so it’s ready for upgrading to a contemporary family layout.
Practical considerations: the property requires modernisation throughout, likely has solid uninsulated walls and double glazing dating from before 2002, and there is only one family bathroom. Council tax is above average for the area. Excellent local transport links and several highly regarded schools make this a strong location for families looking to add value with refurbishment or extension (STPP).
3 bedroom semi-detached house for sale in Bromefield, Stanmore, HA7 — £575,000 • 3 bed • 1 bath • 856 ft²
3 bedroom semi-detached house for sale in Taunton Way, Stanmore, HA7 — £527,500 • 3 bed • 1 bath • 755 ft²
3 bedroom semi-detached house for sale in Bellamy Drive, Stanmore, HA7 — £550,000 • 3 bed • 1 bath • 965 ft²
3 bedroom semi-detached house for sale in Peareswood Gardens, Stanmore, HA7 — £640,000 • 3 bed • 1 bath • 1091 ft²
3 bedroom semi-detached house for sale in Morley Crescent East, Stanmore, HA7 — £585,000 • 3 bed • 1 bath • 632 ft²
3 bedroom semi-detached house for sale in Curzon Avenue, Stanmore, HA7 — £600,000 • 3 bed • 1 bath • 995 ft²






















































































