**Standout Features:**
- 2 spacious bedrooms and a modern bathroom
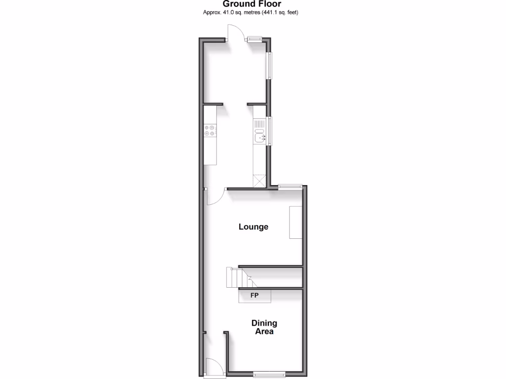
- Separate dining room, ideal for entertaining
- Large kitchen with utility room
- Enclosed rear garden with patio
- Freehold tenure, offering flexibility for renovations
- Excellent transport links and proximity to amenities and schools
**Potential Concerns:**
- Average-sized rooms, suitable for small families or first-time buyers
- High crime rate in the area may be a consideration
Welcome to this charming Victorian terraced home in the sought-after area of Cosham. Perfectly designed for first-time buyers, small families, or investors, this property boasts a spacious separate dining room for family meals and entertaining, a large kitchen with a utility area, and a comfortable modern bathroom. With excellent transport links just a stone’s throw away and local amenities within easy reach, your daily convenience is ensured.
Enjoy the tranquility of the enclosed rear garden, perfect for outdoor relaxation, while the freehold status provides you with renovation flexibility to make this space uniquely yours. Although situated in an area with a high crime rate, this community offers access to highly-rated schools and quick commuting options, making it an appealing choice. Priced competitively at £240,000, this home balances comfort and future potential. Don’t miss out—schedule your viewing today!
2 bedroom terraced house for sale in Havant Road, Portsmouth, Hampshire, PO2 — £210,000 • 2 bed • 1 bath • 895 ft²
2 bedroom terraced house for sale in Magdala Road, Cosham, PO6 — £230,000 • 2 bed • 1 bath • 807 ft²
2 bedroom end of terrace house for sale in Windsor Road, PORTSMOUTH, Hampshire, PO6 — £170,000 • 2 bed • 1 bath • 687 ft²
2 bedroom terraced house for sale in Sutherland Road, Southsea, Hampshire, PO4 — £230,000 • 2 bed • 1 bath • 689 ft²
2 bedroom house for sale in Albert Road, Cosham, Portsmouth, PO6 — £250,000 • 2 bed • 1 bath • 840 ft²
2 bedroom terraced house for sale in Goodwood Road, Southsea, Hampshire, PO5 — £270,000 • 2 bed • 1 bath • 765 ft²






































