Spacious three-bed semi with studio, landscaped garden and rear parking in popular Yaxley village.
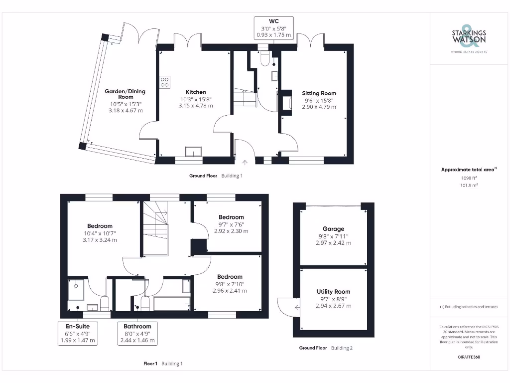
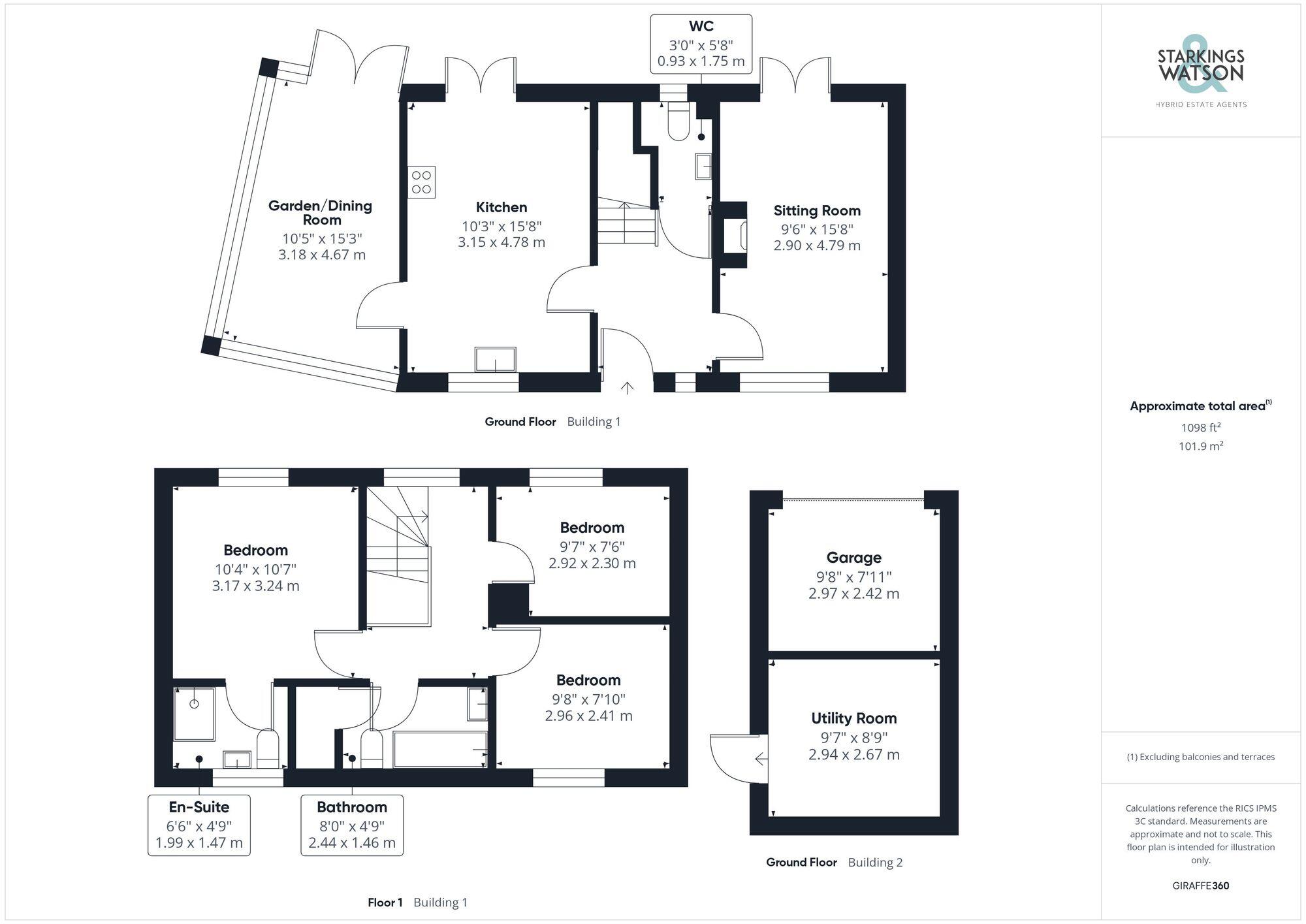
Extended accommodation over 1,000 sqft (approx. 1,097 sqft)
Three good-sized bedrooms and two bathrooms (ensuite refitted)
Landscaped low-maintenance rear garden with patio and lawn
External studio/office plus garage/store for hobby or homeworking
Off-street parking for two vehicles accessed from rear development
Oil-fired central heating (private oil tank) — renewed boiler 2023
Double glazing installed before 2002; EPC rating D
Parking access via small development road may be less direct
Set on Mellis Road in the popular village of Yaxley, this extended three-bedroom semi-detached home offers over 1,000 sqft of well-presented living space ideal for family life. The layout includes two reception rooms, a kitchen/breakfast room and a bright garden room that opens onto a landscaped rear garden. An external studio/office and garage/store add practical workspace and storage. The property is freehold and presented in excellent order throughout.
Practical upgrades include a recently renewed oil boiler, oil tank and hot water cylinder (2023) and double glazing already installed. The house provides two bathrooms, including a re-fitted ensuite to the main bedroom, and off-street parking for two vehicles to the rear. Fast broadband and good nearby schools make this a convenient choice for homeworking families and commuters who value rural village life.
Be aware of a few material points: heating is oil-fired (private supply) which can mean different running costs and servicing compared with gas; the EPC rating is D; and access to parking is from a small rear development road, which may feel less direct than on-plot driveways. The house dates from the late 1990s–early 2000s and is modern in character rather than a period property.
Overall this is a comfortable, low-maintenance family home in an affluent village setting with flexible space for home office use and attractive, easy-care gardens. It will suit buyers seeking a move-in-ready property with scope to personalise rather than a major renovation project.
2 bedroom semi-detached house for sale in Mellis Road, Eye, IP23 — £240,000 • 2 bed • 1 bath • 667 ft²
3 bedroom detached house for sale in The Street, Yaxley, EYE, IP23 — £370,000 • 3 bed • 1 bath • 984 ft²
3 bedroom detached house for sale in The Street, Yaxley, IP23 — £370,000 • 3 bed • 1 bath • 1191 ft²
5 bedroom town house for sale in Old Ipswich Road, Yaxley, Eye, IP23 — £350,000 • 5 bed • 2 bath • 1238 ft²
4 bedroom detached house for sale in Lyon Close, Yaxley, IP23 — £575,000 • 4 bed • 2 bath • 1686 ft²
3 bedroom semi-detached house for sale in Burns Close, Yaxley, IP23 — £325,000 • 3 bed • 2 bath • 903 ft²






















































































