Contemporary two-bed with parking and low running costs near local amenities.
Large open-plan lounge/kitchen with bi-fold doors and private balcony
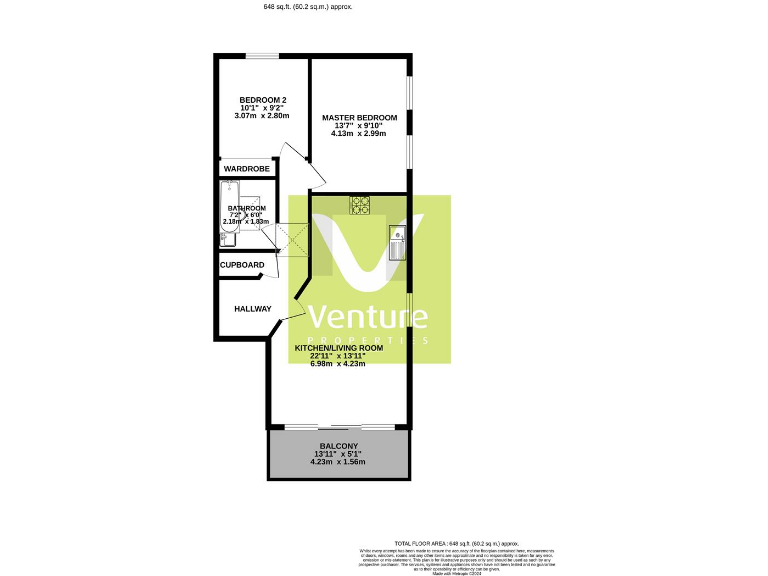
Set on the second floor of a mixed-use modern block in Cockerton, this two-bedroom apartment offers an open-plan living space and a private balcony with village views. The large lounge/kitchen benefits from bi-fold doors that flood the room with light and a compact, contemporary kitchen with integrated appliances — a low-maintenance, move-in-ready feel for first-time buyers.
Both bedrooms are doubles with built-in storage in the second room, and the bathroom includes a P-shaped bath with an overhead shower and roof light. Practical details are in place: double glazing, gas boiler central heating and an allocated off-street parking bay. EPC grade C and council tax Band B support relatively modest running costs.
Buyers should note the apartment is leasehold with an average annual service charge of around £1,790 and a ground rent of £100. The building sits above commercial premises in an urban area with above-average crime statistics and higher local deprivation — factors to consider for long-term resale and lifestyle.
Overall this home suits first-time buyers or downsizers who want a modern, low-upkeep base near local shops, schools and transport, but who are comfortable with leasehold costs and the mixed-use neighbourhood setting.
2 bedroom flat for sale in Green Chare, Darlington, DL3 — £225,000 • 2 bed • 2 bath • 1626 ft²
2 bedroom apartment for sale in Appleby Close, Darlington, DL1 — £80,000 • 2 bed • 1 bath • 561 ft²
2 bedroom apartment for sale in Forsyth House, Stanhope Road South, Darlington, DL3 — £220,000 • 2 bed • 2 bath • 815 ft²
2 bedroom apartment for sale in Victoria Road, Darlington, DL1 — £100,000 • 2 bed • 2 bath • 821 ft²
2 bedroom apartment for sale in Abbey Springs, Darlington, DL3 — £165,000 • 2 bed • 1 bath
2 bedroom apartment for sale in Westcliffe Court, Darlington, DL3 — £120,000 • 2 bed • 1 bath • 614 ft²


































