Tastefully updated, bright apartment with balcony and allocated parking nearby.
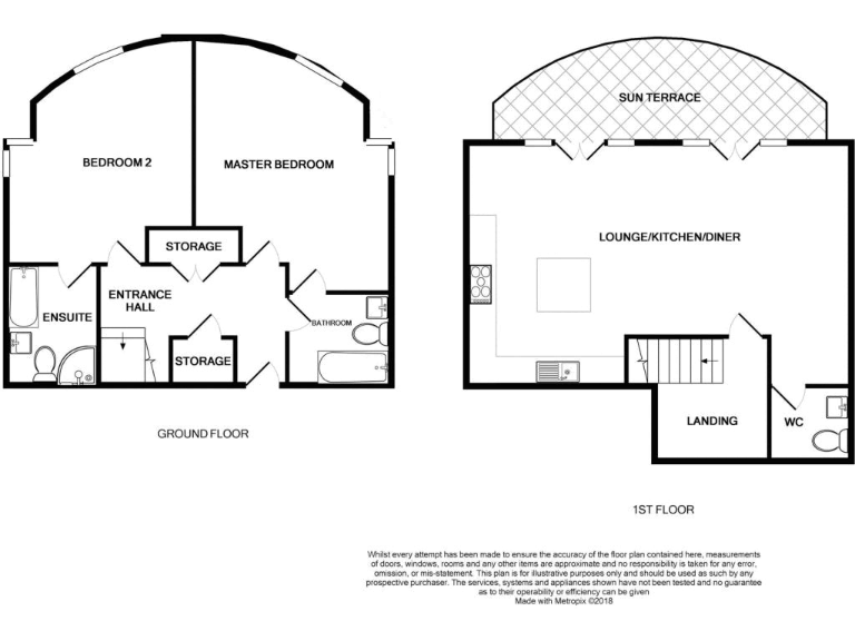
Large 2-bed penthouse duplex with generous rooms (approx. 1,626 sq ft)
This penthouse duplex offers remarkably spacious, light accommodation across two levels, with an open-plan living area that opens onto a private balcony overlooking Cockerton Village. The accommodation has been tastefully updated, with engineered oak flooring, a contemporary kitchen with integrated appliances, and two bathrooms including a refitted en-suite.
Practical advantages include an allocated off-street parking bay, secure gated access, lift access to floors, and a long lease (approx. 132 years remaining). The property sits within a well-maintained communal development close to local shops, cafés and good primary and secondary schools, making everyday life convenient.
Buyers should note the apartment is leasehold with an average service charge of about £1,160 per year and Council Tax Band D. Heating is electric via Rointe/room heaters rather than gas central heating, which may increase running costs. Broadband speeds are reported slow, and the area has a medium flood risk and above-average crime levels — factual factors to consider alongside the strong internal space and private outdoor terrace.
Overall this contemporary penthouse suits first-time buyers or professionals seeking roomy, low-maintenance accommodation with outdoor space and parking, and also appeals to investors looking for a well-presented two-bedroom in a convenient Cockerton location.
2 bedroom apartment for sale in West Beck House, Darlington, DL3 — £179,990 • 2 bed • 2 bath • 1637 ft²
2 bedroom flat for sale in Glaisdale Court, Darlington, DL3 — £120,000 • 2 bed • 1 bath • 671 ft²
2 bedroom flat for sale in Green Chare, Darlington, DL3 — £124,995 • 2 bed • 2 bath • 851 ft²
2 bedroom penthouse for sale in 11 Ropner Gardens, Middleton St. George, Darlington, DL2 — £295,000 • 2 bed • 2 bath • 1555 ft²
2 bedroom flat for sale in Northumberland Street, Westpoint Northumberland Street, DL3 — £150,000 • 2 bed • 1 bath • 716 ft²
2 bedroom flat for sale in Hubback Square, West Park, Darlington, DL2 2FH, DL2 — £95,000 • 2 bed • 1 bath • 453 ft²






















































