Energy-efficient new build with parking and solar features for first-time buyers.
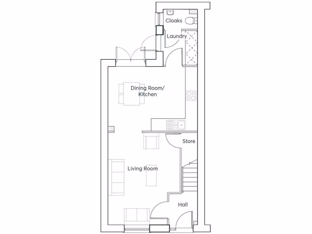
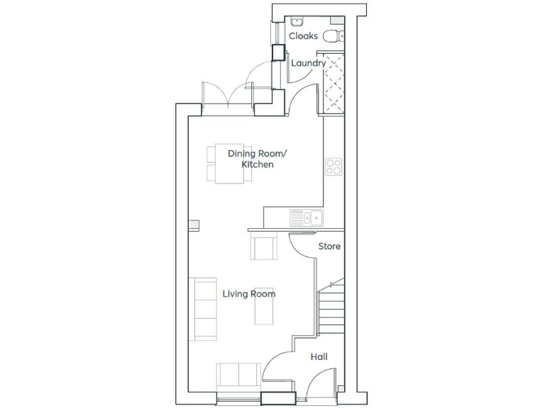
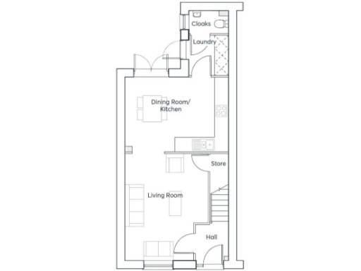
Open-plan kitchen/dining/living room with utility
A bright, modern three-bedroom semi-detached new build offering generous open-plan kitchen/dining/living space and a separate utility. The ground floor is designed for everyday family life and social cooking, while the large first-floor master includes an en-suite and fitted wardrobe for private convenience.
Energy-efficient specification is a clear selling point: full gas central heating, high-performance insulation, double glazing, EV charger and PV solar panels provided as standard. The home comes with a 10-year new-build warranty and dedicated off-street parking, helping reduce running costs and offering immediate peace of mind.
Practical details to note: this development sits in an area graded as very deprived with an overall “multi-ethnic hardship / hampered neighbourhood” local profile and average crime levels. An annual service charge of £269.70 applies (reviewed yearly) and council tax sits at band C. These factors should be weighed alongside the strong energy specification and new-home guarantee.
This property will suit first-time buyers or small families seeking a low-maintenance, energy-efficient starter home with modern open-plan living and good local amenities and transport links. Viewing is recommended to judge space, finishes and the neighbourhood fit for your needs.
4 bedroom semi-detached house for sale in Bristol Road South,
Longbridge,
B45 9UA, B45 — £405,000 • 4 bed • 1 bath • 981 ft²
2 bedroom mews property for sale in Bristol Road South,
Longbridge,
B45 9UA, B45 — £307,500 • 2 bed • 1 bath
2 bedroom semi-detached house for sale in Bristol Road South,
Longbridge,
B45 9UA, B45 — £307,500 • 2 bed • 1 bath
4 bedroom mews property for sale in Bristol Road South,
Longbridge,
B45 9UA, B45 — £430,000 • 4 bed • 1 bath
2 bedroom mews property for sale in Bristol Road South,
Longbridge,
B45 9UA, B45 — £365,000 • 2 bed • 1 bath
4 bedroom semi-detached house for sale in Bristol Road South,
Longbridge,
B45 9UA, B45 — £399,950 • 4 bed • 1 bath • 981 ft²






























































