Energy-efficient family living with private top-floor master suite and garage.
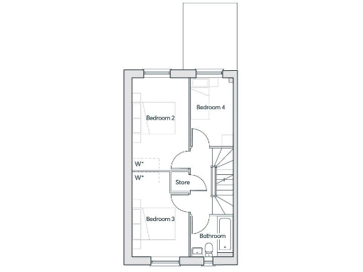
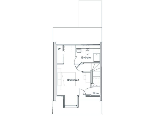
• Four bedrooms including whole-floor master with en-suite
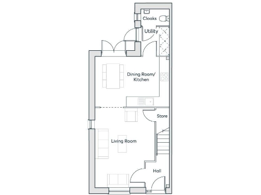
• Open-plan kitchen-dining-family room; separate living room
• Solar panels and EV charger standard for lower energy costs
• Garage plus off-street parking; large plot externally
• 10-year new-build warranty; freehold tenure
• Compact internal size (approx 981 sq ft) for four bedrooms
• Annual service charge £269.70; council tax band D
• Local area classified very deprived; average local crime levels
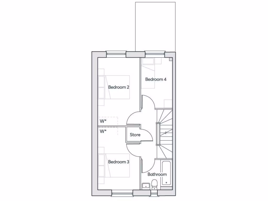
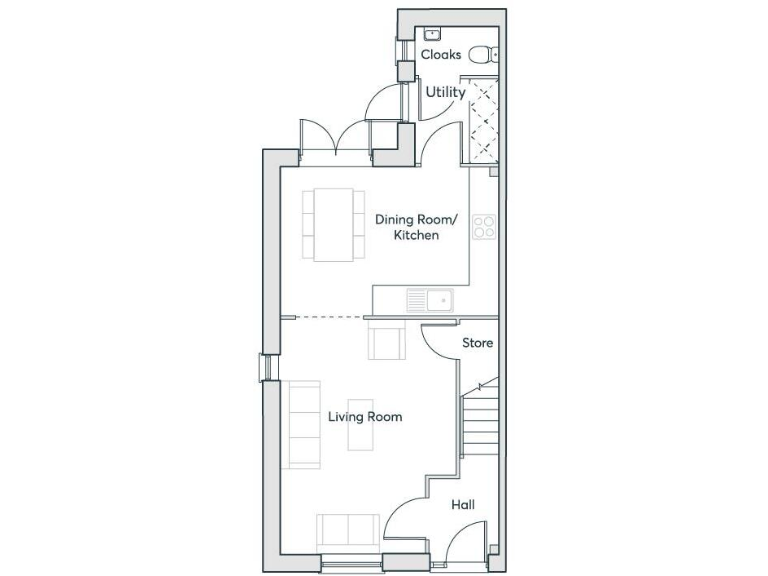
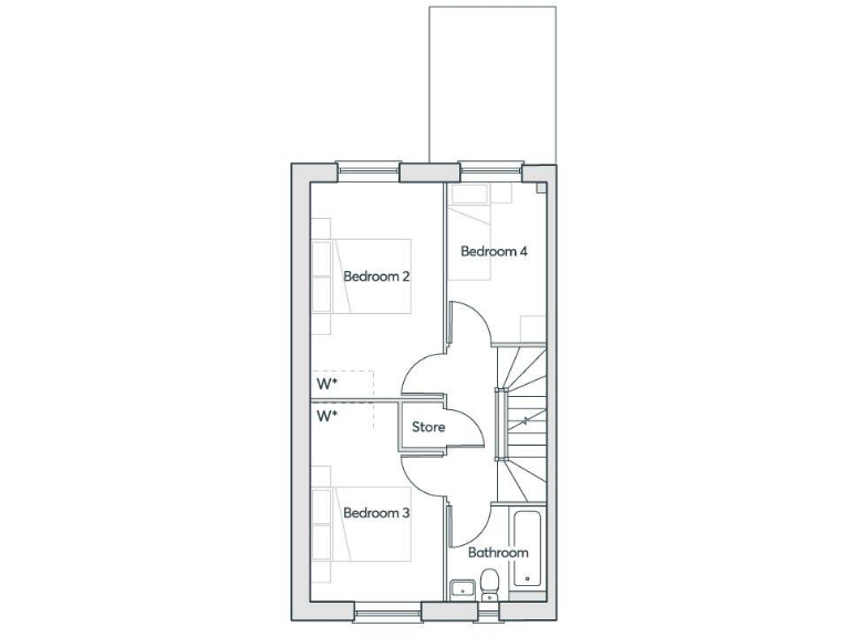
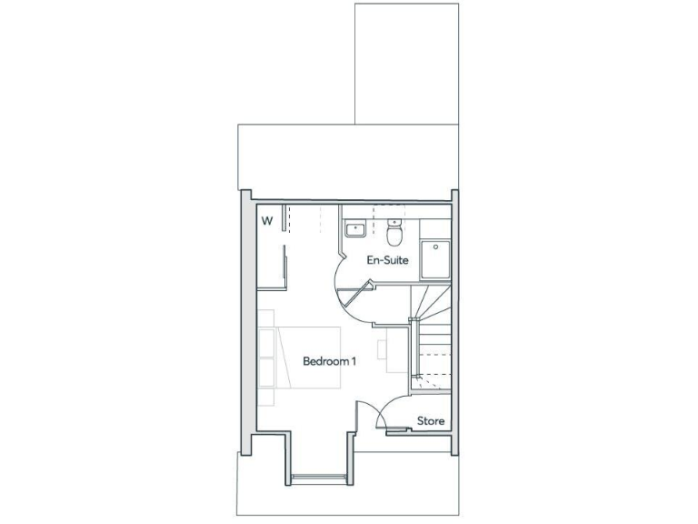
This three-storey, four-bedroom semi-detached house is a modern new-build designed for family living. The Becket layout puts an open-plan kitchen-dining-family room at the heart of the home, with a separate living room, ground-floor laundry and WC for everyday convenience. The entire second floor is given over to a private master suite with en-suite bathroom.
Energy-efficient specification is a clear selling point: solar panels, an EV charger, full gas central heating, double glazing and high-performance insulation help reduce running costs. The home comes with a 10-year new-build warranty and freehold tenure, giving long-term security and lower holding costs compared with leasehold alternatives.
Internally the house totals about 981 sq ft — compact for a four-bedroom layout — but rooms are well arranged across three floors. A garage and off-street parking add practical benefits for families. Local primary schools have Good Ofsted ratings, and transport links, mobile signal and broadband are strong for commuting and home working.
Buyers should note material local-market factors: the area is classified as very deprived with hampered neighbourhood characteristics and average crime levels. There is an annual service charge of £269.70 and the property sits in council tax band D. The modest internal square footage means space is efficient rather than expansive; viewings will best suit families seeking modern, low-maintenance living rather than large period rooms or extensive gardens.
4 bedroom semi-detached house for sale in Bristol Road South,
Longbridge,
B45 9UA, B45 — £405,000 • 4 bed • 1 bath • 981 ft²
4 bedroom mews property for sale in Bristol Road South,
Longbridge,
B45 9UA, B45 — £420,000 • 4 bed • 1 bath
3 bedroom mews property for sale in Bristol Road South,
Longbridge,
B45 9UA, B45 — £365,000 • 3 bed • 1 bath • 706 ft²
2 bedroom semi-detached house for sale in Bristol Road South,
Longbridge,
B45 9UA, B45 — £307,500 • 2 bed • 1 bath
4 bedroom detached house for sale in Bristol Road South,
Longbridge,
B45 9UA, B45 — £479,950 • 4 bed • 1 bath • 1061 ft²
4 bedroom mews property for sale in Bristol Road South,
Longbridge,
B45 9UA, B45 — £430,000 • 4 bed • 1 bath






























































