Secluded farmhouse with 2 acres, versatile outbuildings and mountain views.
Approximately 2 acres of flat grazing pasture with pond and dry‑stone boundaries
Range of powered outbuildings: insulated garage, workshop, portal frame, stable block
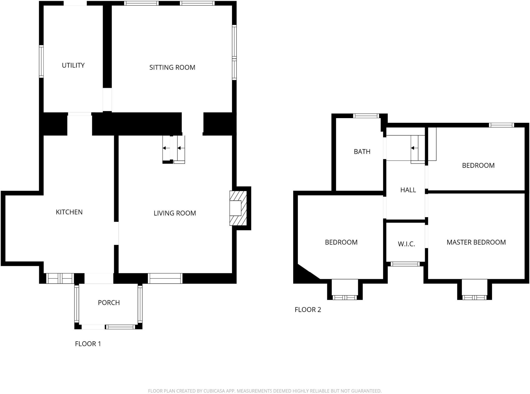
Detached 3‑bed cottage with original beams, slate roof and UPVC windows
Private water supply; mains electricity; cesspool drainage (no mains sewer)
Oil-fired boiler with radiators; log stove back-boiler for supplementary heat
Very slow broadband despite excellent mobile signal; remote location
Stone walls likely uninsulated; no full building survey in past 12 months
Located in Snowdonia NP; Article 4 restrictions and outside development boundary
A rare traditional Welsh smallholding set in the heart of Eryri, Bwlch Gwyn Uchaf combines genuine character with useful agricultural land. The detached three‑bed cottage sits amid about 2 acres of grazing pasture and a range of versatile outbuildings, offering immediate scope for hobby farming, equestrian use or a lifestyle change for those seeking seclusion and panoramic mountain views. The house retains original features such as exposed timber beams and natural slate roofing, with later UPVC windows and a functioning oil boiler.
Practical strengths include mains electricity, a private water supply, a productive vegetable plot with greenhouse, and several powered outbuildings (garage, workshop with water). The plot is mostly dry‑stone walled and fenced, with a small pond and public rights of way along the boundary. Parking is available off‑road beside the property and there is a manicured patio and front courtyard for sheltered outdoor sitting.
Buyers should note this is a remote, rural hamlet location inside Snowdonia National Park. Broadband speeds are very slow and the property uses oil-fired heating with a cesspool drainage system. The stone walls are likely uninsulated and no recent full building survey has been completed, so thermal performance and fabric maintenance (stonework, slate roof) should be checked. The dwelling sits outside the local development boundary and changes of use to second-home or short-term-let require planning permission under the Article 4 direction for the National Park.
This holding will suit purchasers who value landscape, privacy and usable land over urban convenience: hobby farmers, those seeking an authentic rural home, or buyers prepared to invest in upgrading services and fabric. The combination of substantial pasture, functional outbuildings and a character cottage presents practical potential and long‑term appeal within a protected landscape.
4 bedroom detached house for sale in Weirglodd Las, Penisarwaun, Gwynedd, LL55 — £625,000 • 4 bed • 2 bath • 1421 ft²
5 bedroom farm house for sale in Maes Caradog, Nant Ffrancon, LL57 — £825,000 • 5 bed • 1 bath • 862 ft²
3 bedroom detached house for sale in Groeslon, Caernarfon, Gwynedd, LL54 — £375,000 • 3 bed • 1 bath • 786 ft²
1 bedroom detached house for sale in Llanllyfni, Caernarfon, Gwynedd, LL54 — £395,000 • 1 bed • 1 bath • 924 ft²
3 bedroom detached house for sale in LLwyneinion Fechan, Dyffryn Ardudwy, LL44 — £699,500 • 3 bed • 1 bath • 1346 ft²
3 bedroom house for sale in Nebo, LL26 — £585,000 • 3 bed • 1 bath • 1098 ft²






























































































































