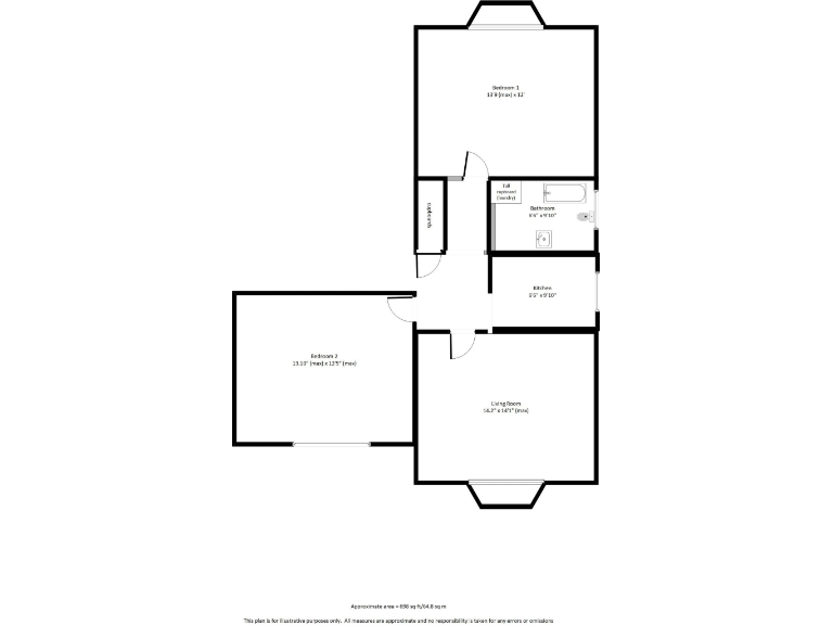
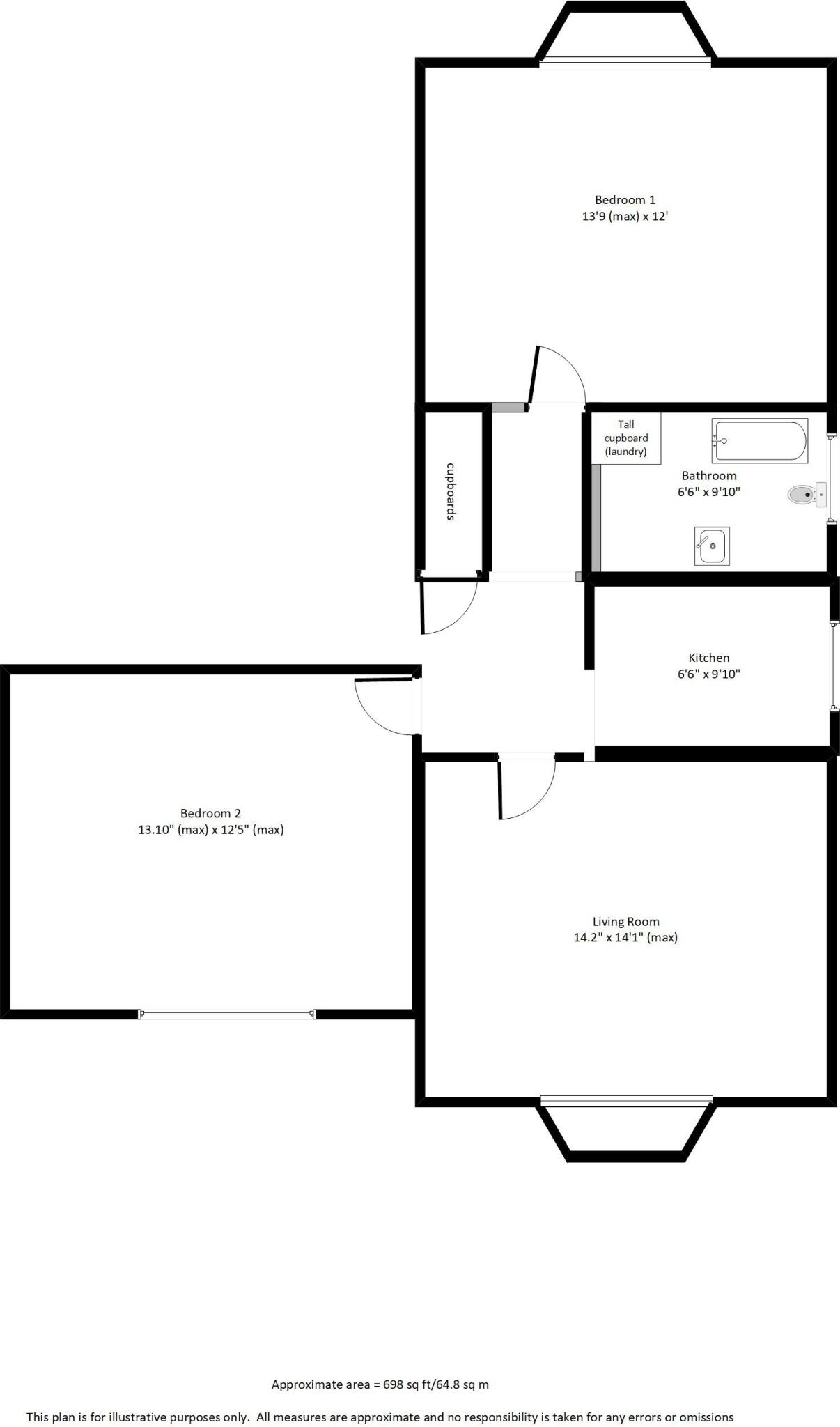
**Standout Features:**
- Newly renovated 2-bedroom ground flat in prestigious Bedford area
- Share of freehold ownership with low service charge of £912 annually
- Extended lease of 160 years
- High ceilings and large windows for bright spaces
- Modern bathroom with optimized space for laundry appliances
- Proximity to parks, restaurants, shops, and rail links to St Pancras
**Summary:**
Discover the charm of this newly renovated two-bedroom ground flat, ideally located in one of Bedford's most desirable neighborhoods. With high ceilings and large windows, the living space is filled with natural light, creating a warm and inviting atmosphere. Enjoy the peace of mind that comes with a share of freehold ownership, translating into a low service charge and a lease extending beyond 160 years, which adds to its overall value.
The location is exceptional, just a short stroll to Russell Park and the Embankment, featuring a variety of amenities, including restaurants, cafes, and shops—all within a ten-minute walk to the town center and a quick commute to London via fast rail links. Families will appreciate the nearby outstanding schools.
Though compact, the kitchen is well-equipped for modern living, and the bathroom has been tastefully refurbished. With low crime rates and an affluent community, this property is set for both comfortable living and future growth potential. This is an exclusive opportunity you don't want to miss—perfect for families, professionals, or investors!
2 bedroom flat for sale in De Parys Avenue, Bedford, MK40 — £215,000 • 2 bed • 1 bath • 1063 ft²
2 bedroom flat for sale in St Andrews Road, Bedford, MK40 — £200,000 • 2 bed • 1 bath • 544 ft²
1 bedroom flat for sale in De Parys Avenue, Bedford, MK40 — £180,000 • 1 bed • 1 bath • 559 ft²
2 bedroom flat for sale in Waterloo Road, Bedford, MK40 — £220,000 • 2 bed • 1 bath • 668 ft²
2 bedroom apartment for sale in Rothsay Road | Bedford | Beds | MK40 | generous rooms, MK40 — £300,000 • 2 bed • 1 bath • 1170 ft²
2 bedroom flat for sale in Clarendon Street, Bedford, MK41 — £190,000 • 2 bed • 1 bath • 678 ft²






































