**Standout Features:**
- Approximately 1.8 acres of residential development land.
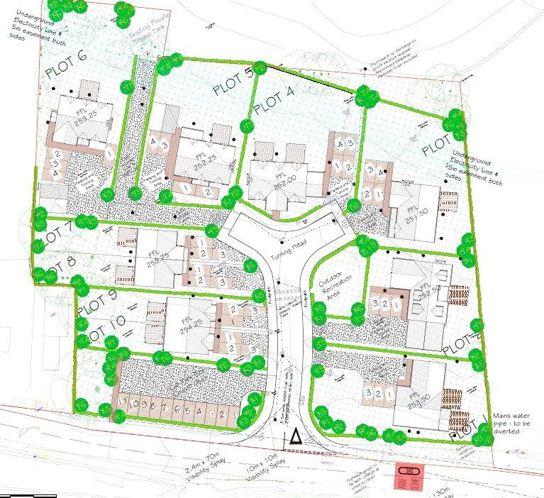
- Full planning permission for 10 dwellings, including 1 affordable unit.
- Ideal for detached and semi-detached family homes with average to large gardens.
- Located in the tranquil village of Beguildy, surrounded by countryside.
- Direct access to a council-maintained road and main utility supplies.
- Very low crime rate, promoting a safe community environment.
**Potential Concerns:**
- The area is classified as very deprived, which may affect investment returns.
- Currently undeveloped land requiring construction planning and oversight.
**Property Summary:**
This expansive 1.8-acre residential development land in the serene village of Beguildy presents a unique opportunity for developers and investors. With full planning permission for 10 residential dwellings, including an affordable unit, this plot is primed for a cul-de-sac style housing project. The layout allows for spacious homes set in a picturesque rural backdrop, perfect for families seeking a country lifestyle. Surrounded by greenery and village views, the site is easily accessible via a council-maintained road, benefiting from fast broadband and essential utilities within reach.
While the location does present some socio-economic challenges, the inherent value lies in its potential for comfortable family living away from urban sprawl. Invest in this promising opportunity to create a desirable community in an area with low crime rates and a peaceful ambiance. With future flexibility for individual home designs and layouts, don't miss out on this rare chance to shape a residential development that caters to the needs of modern living in a tranquil setting.
Plot for sale in Development Land at Llanfair Caereinion, Powys, SY21 — £295,000 • 1 bed • 1 bath
Plot for sale in Adfa, Newtown, SY16 — £139,950 • 1 bed • 1 bath
Plot for sale in Rhayader, Powys, LD6 — £800,000 • 1 bed • 1 bath
Plot for sale in Pant-Y-Dwr, Rhayader, LD6 — £225,000 • 1 bed • 1 bath
Land for sale in Kington, Herefordshire, HR5 — £60,000 • 1 bed • 1 bath • 8276 ft²
Land for sale in Land At Wotherton, Wotherton, Chirbury, Montgomery, SY15 — £55,000 • 1 bed • 1 bath • 7841 ft²






