Single-level living with tailored finishes and a large private plot.
Three-bedroom single-storey layout ideal for downsizing comfort
10-year NHBC Buildmark warranty included for new-build peace of mind
Energy-saving materials and Secured by Design features fitted
Large garage and driveway provide secure parking and storage
Freehold plot is unusually large for the development
Modest service charge £418 for communal area upkeep
Finishes are selectable but CGI images and dimensions may vary
Semi-detached construction and room sizes subject to change during build
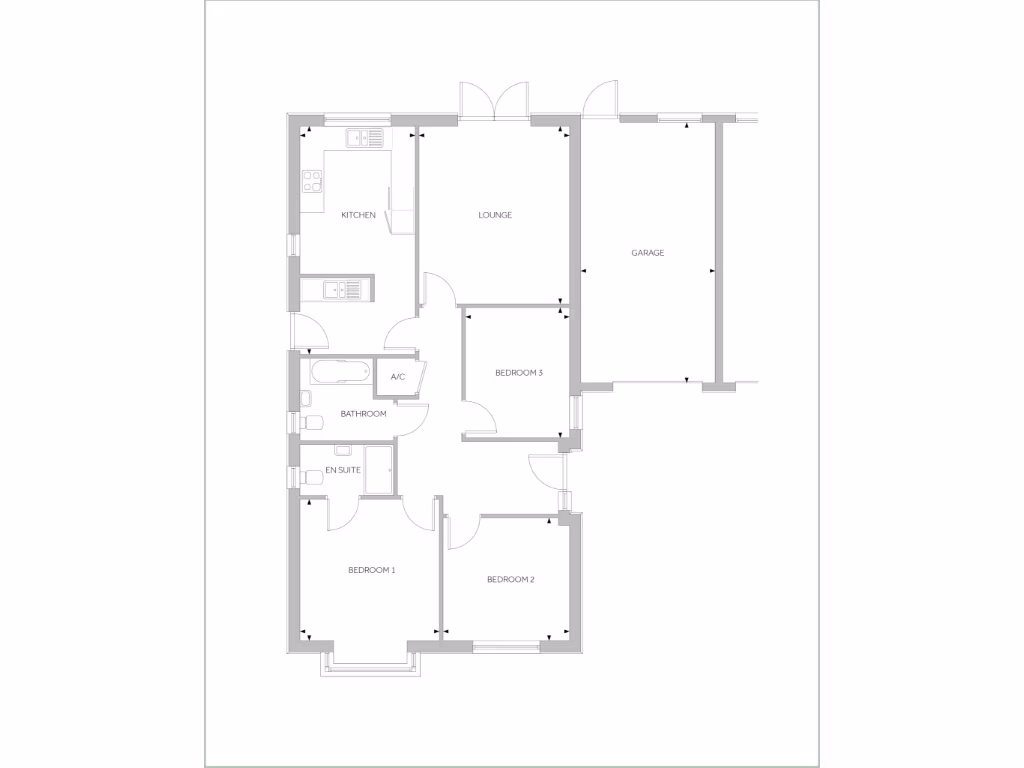
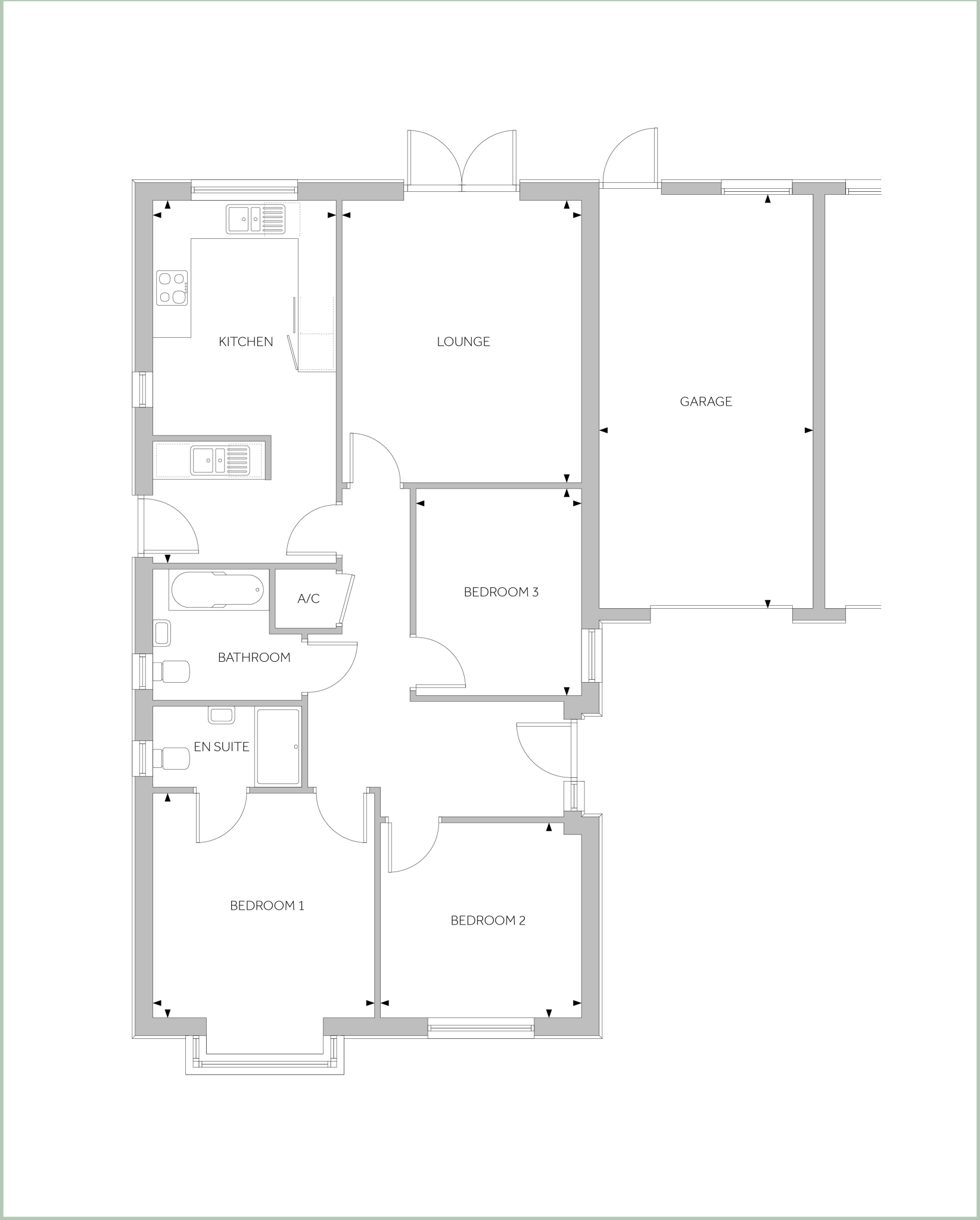
This three-bedroom semi-detached bungalow at José Powell Gardens is aimed at anyone looking to downsize without compromising on space or specification. The single-storey layout places a generous lounge, a large kitchen with utility and an ensuite main bedroom all on one level, while a lengthy garage and driveway provide secure parking and storage.
Built by Scott Residential to a high standard, the home benefits from energy-saving materials, Secured by Design features and a 10-year NHBC Buildmark warranty. Buyers can choose finishes including flooring, tiles and worktops as standard, allowing a degree of tailoring to personal taste.
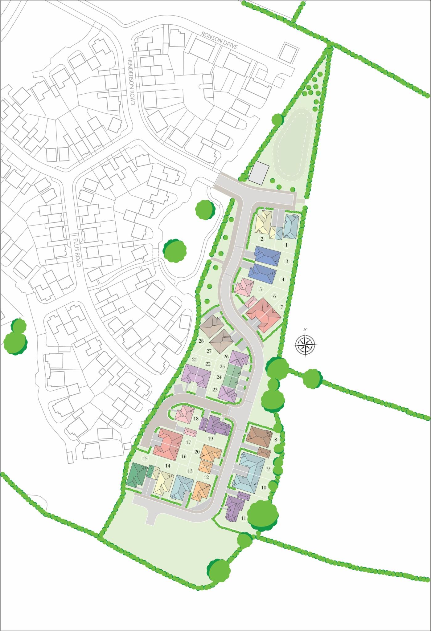
Set on the edge of Thorpe-le-Soken, the development offers easy access to coastal and countryside walks, village facilities and several well-rated local schools, making it comfortable and convenient for quieter living. The property is freehold and situated on a notably large plot, providing scope for external landscaping or garden enjoyment.
Buyers should note a modest service charge of £418 for maintenance of communal areas, and that marketing images include CGI and example interiors so external finishes and internal dimensions may vary during construction. Room sizes are provided for guidance and are subject to minor alteration as works progress.
3 bedroom detached bungalow for sale in 2 José Powell Gardens, CO16 — £425,000 • 3 bed • 2 bath • 1073 ft²
3 bedroom detached bungalow for sale in 4 José Powell Gardens , CO16 — £425,000 • 3 bed • 2 bath • 1073 ft²
3 bedroom semi-detached bungalow for sale in 17 José Powell Gardens, Thorpe le Soken, CO16 — £475,000 • 3 bed • 2 bath • 1084 ft²
1 bedroom terraced bungalow for sale in 8 José Powell Gardens, CO16 — £275,000 • 1 bed • 1 bath • 597 ft²
3 bedroom detached bungalow for sale in 32 José Powell Gardens, Thorpe le Soken, CO16 — £465,000 • 3 bed • 2 bath • 756 ft²
3 bedroom detached bungalow for sale in 19 José Powell Gardens, Thorpe le Soken, CO16 — £510,000 • 3 bed • 2 bath • 1117 ft²










































