Spacious three-bedroom home near top schools and leafy parkland.
Approx. 1,800 sq ft of two-level living space
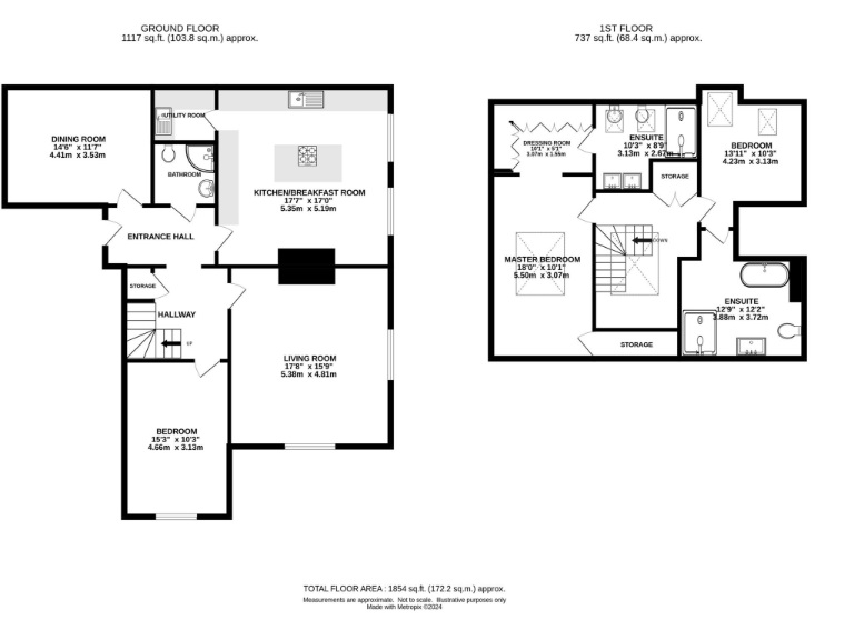
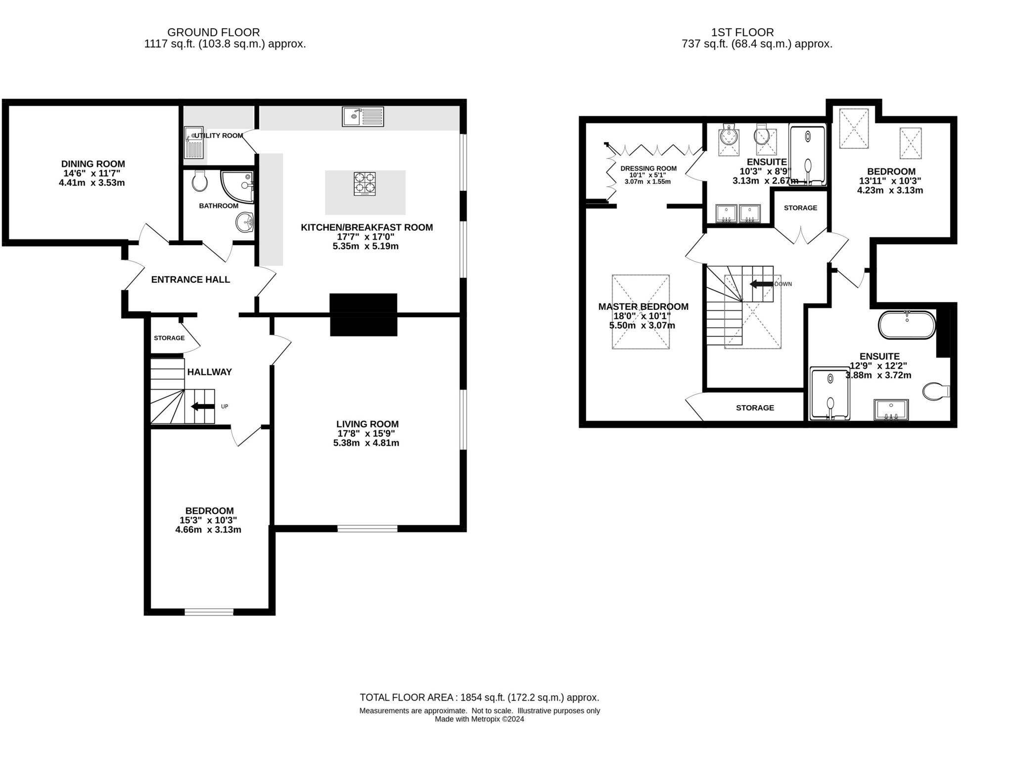
Set within a gated period conversion on Suffolk Road, this two-level first-floor apartment delivers just over 1,800 sq ft of exceptionally large living space. The layout includes three double bedrooms, three bathrooms, two allocated parking spaces and extensive storage — a rare size for a central Altrincham apartment. High ceilings, bay windows and original detailing combine with a high-spec kitchen and utility to blend period character with contemporary living.
The home sits within walking distance of Altrincham centre and several highly rated schools, with Dunham Massey countryside also close by — ideal for families seeking space, schools and green access. Secure gated entry and maintained communal gardens provide privacy and kerb appeal. The two-storey arrangement, galleried landing and large lantern skylight create bright, versatile living areas suitable for formal entertaining or family life.
Practical considerations: the property is leasehold (long lease of 976 years), council tax is described as quite expensive and local broadband speeds are slow. Buyers seeking a turnkey digital setup may need to budget for upgraded broadband options. An internal inspection is recommended to appreciate the scale and layout; the building appears well maintained but buyers should satisfy themselves on service charges and any communal maintenance arrangements.
This apartment will suit buyers prioritising generous, characterful accommodation close to amenities and schools. It offers immediate family practicality with entertaining space and off-street parking, while also presenting scope for personalising finishes if desired.
3 bedroom flat for sale in Woodville Road, Altrincham, WA14 — £500,000 • 3 bed • 2 bath • 1486 ft²
2 bedroom apartment for sale in Grey Road, Altrincham, WA14 — £575,000 • 2 bed • 2 bath • 1715 ft²
3 bedroom flat for sale in Booth Road, Altrincham, Greater Manchester, WA14 — £675,000 • 3 bed • 2 bath • 2300 ft²
3 bedroom flat for sale in Harthill Court, Woodville Road, Altrincham, WA14 — £500,000 • 3 bed • 2 bath • 1700 ft²
2 bedroom flat for sale in St. Margarets Road, Altrincham, WA14 — £425,000 • 2 bed • 1 bath • 1810 ft²
3 bedroom apartment for sale in Suffolk Road, Altrincham, WA14 4QX, WA14 — £550,000 • 3 bed • 2 bath • 1377 ft²


































































































































