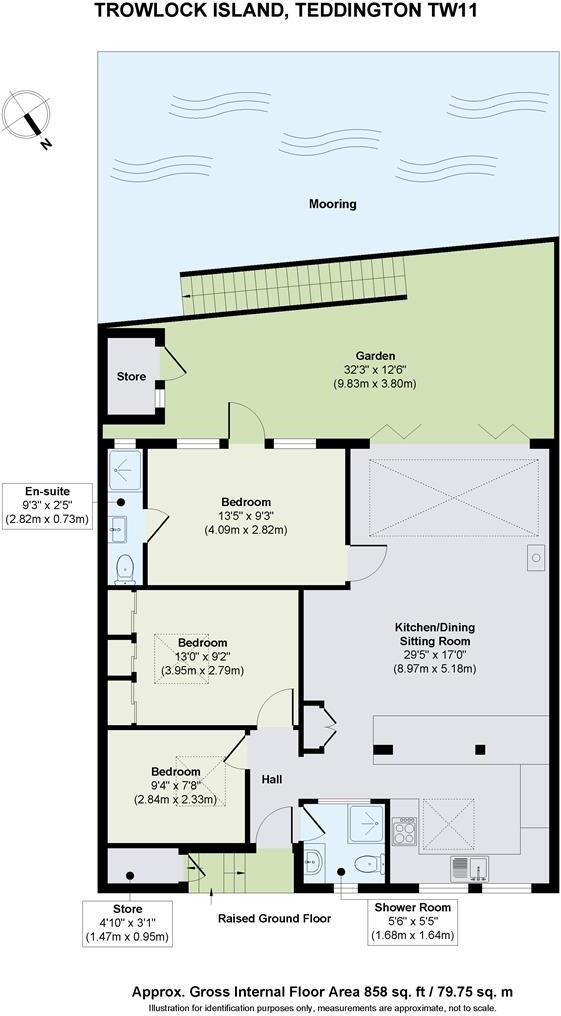
**Standout Features:**
- Recently renovated three-bedroom detached cottage
- Spacious south-east facing covered deck with river views
- Large private garden with ten-meter mooring for direct river access
- High specification contemporary finishes throughout
- Excellent transport links to central London via Hampton Wick and Teddington stations
- Quiet, exclusive location on Trowlock Island
**Concerns:**
- Average-sized plot, with an average living space of 858 sq ft
- Council tax band E, higher than average
**Summary:**
Discover the serene lifestyle offered by this recently renovated three-bedroom detached cottage on Trowlock Island, a unique haven only accessible by a traditional chain ferry. The home features a bright, open-plan living space that flows seamlessly onto a spacious, south-east facing covered deck—perfect for enjoying riverside breakfasts. A generous garden provides ample outdoor space, complete with a ten-meter mooring for the boating enthusiast.
The well-appointed master en-suite bedroom upstairs exudes tranquility, while two additional bedrooms and a contemporary kitchen cater to families or guests. With excellent transport links to London and proximity to Teddington's vibrant high street, this property offers a perfect blend of peaceful retreat and modern convenience. Benefit from idyllic water views, ample natural light, and the unique tranquility of island living—opportunities like this don’t last long!
3 bedroom detached house for sale in Trowlock Island, Teddington, TW11 — £900,000 • 3 bed • 2 bath • 883 ft²
3 bedroom detached house for sale in Trowlock Island, Teddington, TW11 — £1,000,000 • 3 bed • 2 bath • 1132 ft²
3 bedroom detached house for sale in The Island, Thames Ditton, KT7 — £935,000 • 3 bed • 2 bath • 1023 ft²
2 bedroom detached house for sale in Sunbury Court Island, Sunbury-on-Thames, TW16 — £950,000 • 2 bed • 2 bath • 1263 ft²
3 bedroom bungalow for sale in Hamhaugh Island, Shepperton, TW17 — £900,000 • 3 bed • 2 bath • 1940 ft²
3 bedroom detached house for sale in Sunbury Court Island, Sunbury-On-Thames, Surrey, TW16 — £950,000 • 3 bed • 2 bath • 1296 ft²


























































































































































































