Extended three-bedroom house with large kitchen diner and south garden, ideal for families.
Three-bedroom extended semi-detached house with period bay window feature
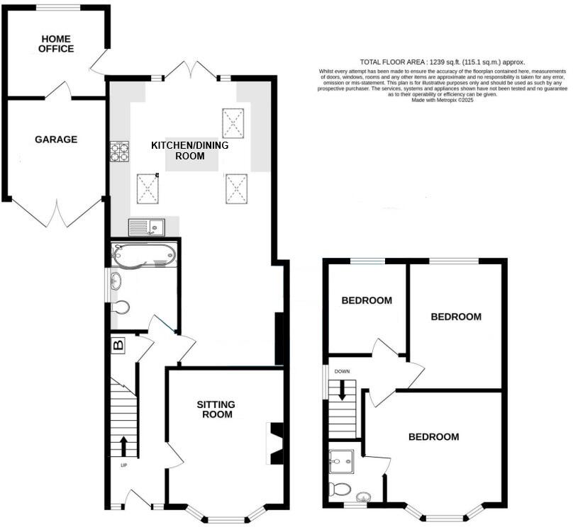
Impressive 27' kitchen/dining room with island and electric underfloor heating
Sitting room includes multi-fuel burner and front-facing bay window
Master bedroom with modern en-suite shower room
Low-maintenance south-facing rear garden with privacy and patio area
Detached garage with powered home office; garage exterior requires maintenance
PVC double glazing and mains gas boiler for central heating
Energy rating D (58) — potential for efficiency improvements
This extended three-bedroom semi-detached house on Shafto Road combines period character with contemporary living spaces, making it a practical family home in central Ipswich. The property’s standout 27' kitchen/dining room, fitted island and electric underfloor heating create a bright social hub, while the sitting room’s bay window and multi-fuel burner add warmth and charm.
Upstairs offers three good-size bedrooms, the principal with a modern en-suite, and a bright landing. The low-maintenance, south-facing rear garden provides privacy and year-round sun, and the detached garage includes a powered home office — useful for remote working or storage.
Practical details are clear and straightforward: PVC double glazing, mains gas central heating and a gas combination boiler housed in the understairs cupboard. The house is freehold and well placed for schools, regular bus routes, the A14/A12 and Ipswich town centre and rail links, so it suits growing families wanting easy commuting and local amenities.
Notable negatives: the property has an energy rating of D (58), and the garage exterior shows signs of neglect and will need external maintenance. Overall the house has been looked after and offers immediate move-in condition with sensible pockets of improvement possible to personalise the home.
3 bedroom semi-detached house for sale in Bernard Crescent, Ipswich, Suffolk, IP3 — £290,000 • 3 bed • 2 bath • 1144 ft²
3 bedroom semi-detached house for sale in Westholme Road, Ipswich, Suffolk, IP1 — £335,000 • 3 bed • 1 bath • 1304 ft²
3 bedroom semi-detached house for sale in Nursery Gardens, Ipswich, IP4 — £305,000 • 3 bed • 3 bath • 982 ft²
3 bedroom end of terrace house for sale in Lovetofts Drive, Ipswich, Suffolk, IP1 — £299,000 • 3 bed • 2 bath • 1353 ft²
4 bedroom semi-detached house for sale in Jovian Way, Ipswich, Suffolk, IP1 — £265,000 • 4 bed • 2 bath • 1158 ft²
3 bedroom semi-detached house for sale in Nacton Road, Ipswich, IP3 — £300,000 • 3 bed • 2 bath • 883 ft²






























































































