**Standout Features:**
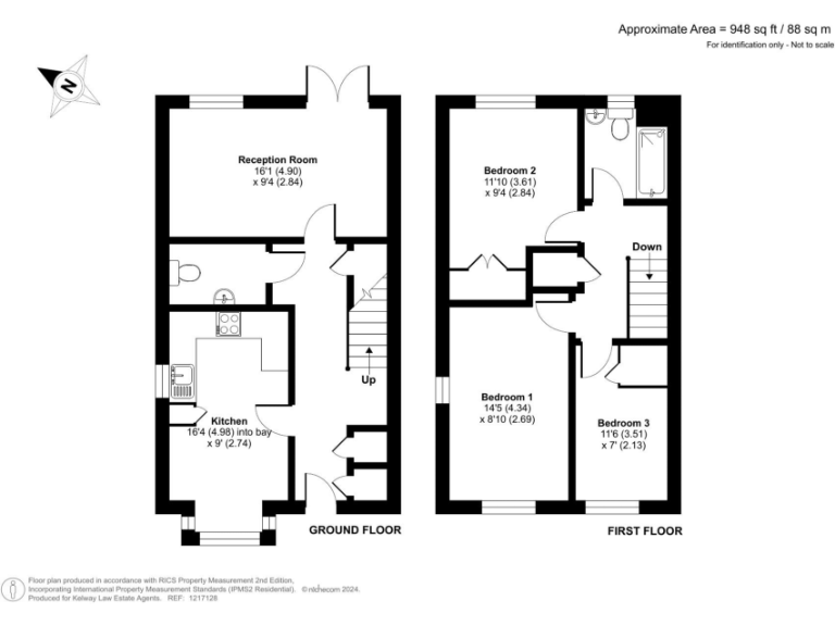
- 3-bedroom semi-detached house with 45% shared ownership
- Neutrally decorated with a modern design and natural light
- Fully fitted kitchen/breakfast room and spacious sitting room with garden access
- Rear garden featuring a paved patio, astro turf, and raised bedding
- Off-street parking for two vehicles
- Convenient location near village amenities, schools, and the railway station
**Property Summary:**
Discover a fantastic opportunity to step onto the property ladder or upsize in the peaceful setting of Liphook. This charming semi-detached house boasts three bedrooms, a modern fitted kitchen/breakfast room, and a bright sitting room that opens to a lovely rear garden—perfect for family gatherings or summertime relaxation.
The property is neutrally decorated throughout, ensuring a blank canvas ready for your personal touch. With built-in storage in two of the bedrooms and a family bathroom featuring a shower over the bath, this home offers both comfort and convenience.
While the shared ownership is at 45%, the property presents a manageable maintenance profile with low service charges. However, take note of the leasehold tenure with 115 years remaining, and be mindful of ongoing rental costs.
Liphook itself is a vibrant village, well connected by transport links and surrounded by stunning countryside, perfect for nature enthusiasts. Local schools, including several with outstanding Ofsted ratings, add to the family-friendly appeal of this property. Whether you’re a first-time buyer or looking for room to grow, act quickly—homes like this in such a desirable area won't be available for long!
3 bedroom semi-detached house for sale in Liphook, GU30 — £440,000 • 3 bed • 1 bath • 948 ft²
2 bedroom terraced house for sale in Kiln Road, Liphook, Hampshire, GU30 — £183,600 • 2 bed • 1 bath • 744 ft²
1 bedroom end of terrace house for sale in Kiln Road, Liphook, Hampshire, GU30 — £220,000 • 1 bed • 1 bath • 585 ft²
1 bedroom end of terrace house for sale in Kiln Road, Liphook, Hampshire, GU30 — £66,000 • 1 bed • 1 bath • 585 ft²
2 bedroom flat for sale in Furlonger Place, Liphook, Hampshire, GU30 — £102,000 • 2 bed • 1 bath • 617 ft²
3 bedroom end of terrace house for sale in Plough Lane, Petersfield, Hampshire, GU31 — £144,000 • 3 bed • 2 bath • 752 ft²






























































