No onward chain — immediate purchase possible
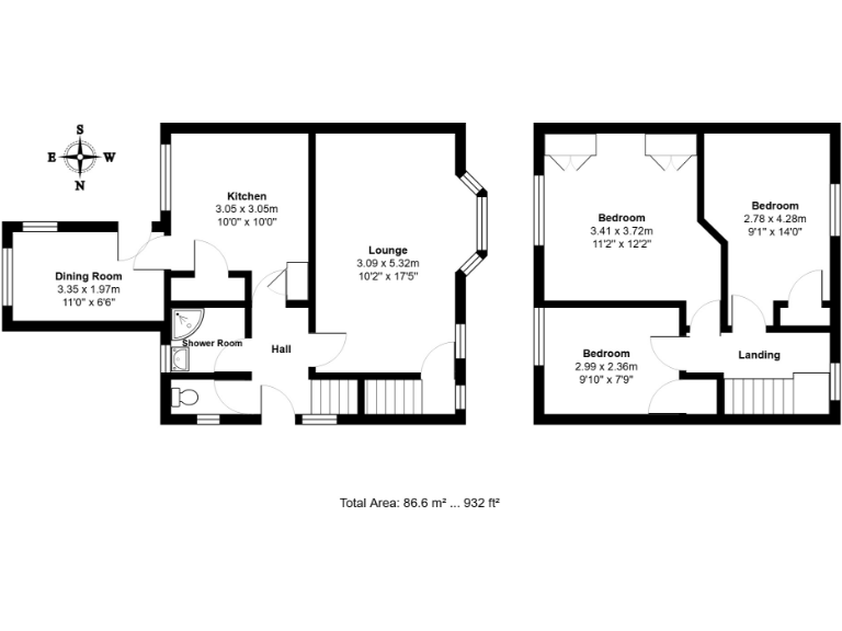
Three double bedrooms; 932 sq ft of living space
Ground-floor shower room plus separate cloakroom
Dated 1980s kitchen; requires modernisation
Predominantly double glazed; gas central heating
Wall-mounted Vaillant boiler located in bedroom three
Driveway parking and detached garage; enclosed gardens
Close to schools, shops, surgery and bus routes
This three-bedroom semi-detached house in Ipswich offers a straightforward, chain-free purchase in a comfortable, well-served neighbourhood. The layout includes a bay-front lounge, separate dining room, kitchen/breakfast room and ground-floor shower room with an additional cloakroom — practical for family life. Outside there is off-road parking, a detached garage and enclosed front and rear gardens.
The property is predominantly double glazed and gas centrally heated, with a wall-mounted Vaillant boiler currently located in bedroom three. The interior retains many original and 1980s fittings: the kitchen and some windows are dated and will benefit from updating to modern standards. There is scope to reconfigure or refurbish to add value given the 932 sq ft footprint and typical suburban plot.
This home suits families or buyers looking for a manageable refurbishment project in a well-connected part of north-west Ipswich — walking distance to schools, shops, a doctors’ surgery and regular bus services. Practical positives include driveway parking and a detached garage; practical drawbacks to budget for include kitchen replacement, general updating and the single shower room on the ground floor.































































