Spacious corner-plot residence with large garden and garages.
Six bedrooms, two with en suites
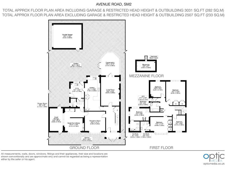
Set on a generous corner plot in desirable Avenue Road, this six-bedroom detached house is arranged across two main storeys and offers substantial family living space. Original Tudor Revival details – bay windows, exposed timber and prominent chimneys – give the house strong period character, while the conservatory and multiple reception rooms provide flexible living and entertaining areas. A modern kitchen/diner, utility room and two en-suite bedrooms suit large households or multigenerational living.
The mature, landscaped gardens and paved patios create private outdoor space for children and summer entertaining; a decorative pond and tall cypress screening add privacy. A double garage at the end of the garden plus driveway parking answer practical needs. Fast broadband, excellent mobile signal and low local crime make the home well suited to professionals and families who work from home.
There are clear upgrade and value opportunities: the large plot offers scope to extend (subject to planning permission) and reconfiguration could increase living space. The house dates from the early 20th century and has solid brick walls with assumed no added insulation; glazing installation date is unknown. The EPC is D and the property is in Council Tax band G, so buyers should allow for running costs and potential energy-efficiency work if prioritising lower bills.
Nearby schools include outstanding and well-regarded options at primary and secondary levels, and local amenities are within walking distance. Overall this substantial period family home is ideal for buyers seeking space, character and the prospect of sympathetic updating to add value.
6 bedroom detached house for sale in Avenue Road, Cheam, Surrey, SM2 — £1,100,000 • 6 bed • 4 bath • 2497 ft²
7 bedroom detached house for sale in The Causeway, South Sutton, SM2 — £2,000,000 • 7 bed • 3 bath • 4334 ft²
4 bedroom detached house for sale in Chiltern Road, South Sutton, SM2 — £1,000,000 • 4 bed • 2 bath • 1884 ft²
5 bedroom detached house for sale in Southway, Carshalton Beeches, SM5 — £1,500,000 • 5 bed • 4 bath • 2720 ft²
5 bedroom detached house for sale in Furzedown Road, Sutton, SM2 — £1,100,000 • 5 bed • 2 bath • 2162 ft²
5 bedroom detached house for sale in Chalgrove Road, South Sutton, SM2 — £1,200,000 • 5 bed • 2 bath • 2524 ft²










































































































































































