G41 5DA - 5 bedroom semidetached house for sale in Larch Road, Dumbre…

View on Property Piper

5 bedroom semi-detached house for sale in Larch Road, Dumbreck, Glasgow, G41

Summary - 3, LARCH ROAD, GLASGOW G41 5DA

5 bed 2 bath Semi-Detached

**Standout Features:**
- Five spacious bedrooms (including a top-floor suite)
- Newly renovated with preserved Victorian charm
- Private enclosed rear garden and garage
- High ceilings and original period details
- Excellent mobile signal and fast broadband
- Prime location near parks, schools, and transport links
- Freehold tenure

**Concerns:**
- Council tax band is relatively high
- Area overall classified as very deprived

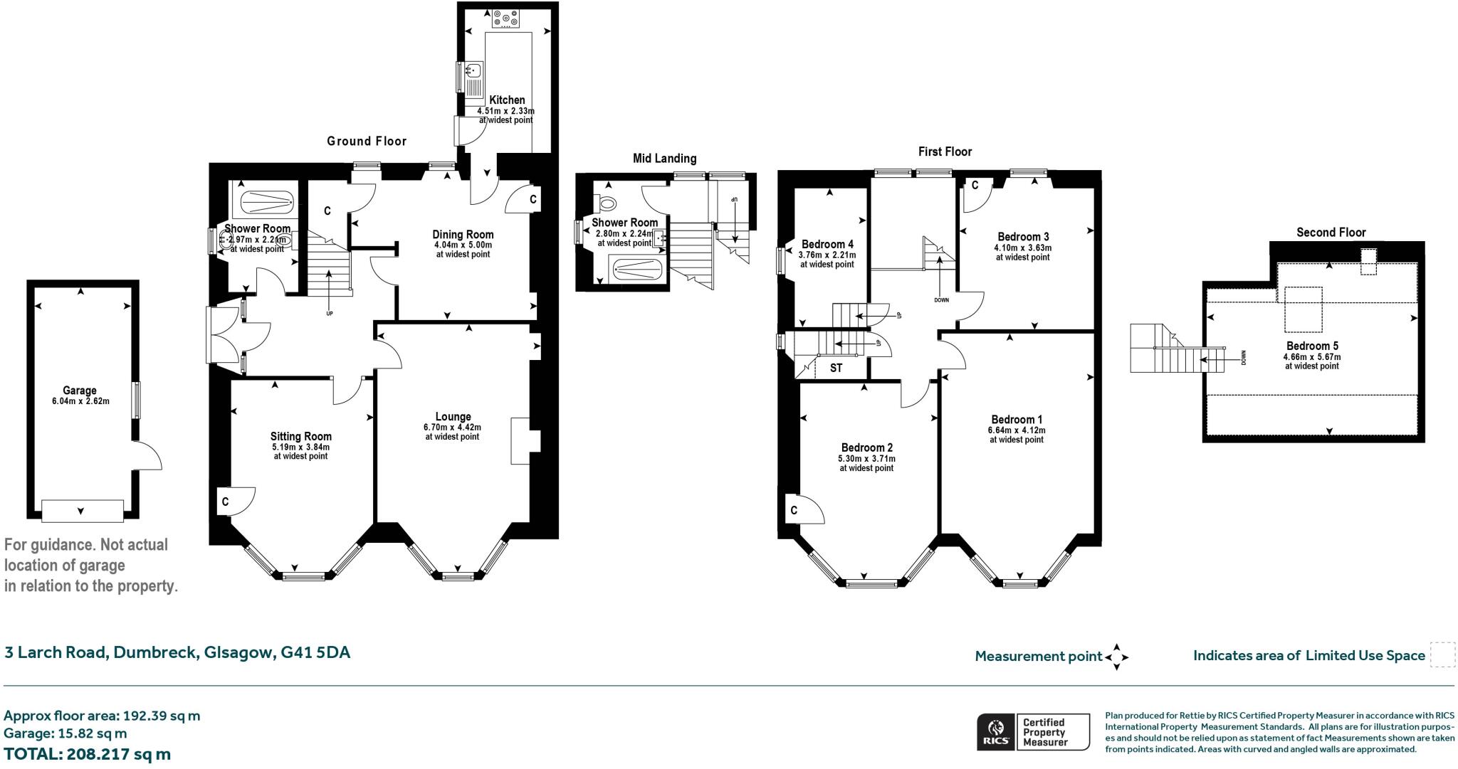
Discover the charm of this stunning five-bedroom Victorian semi-detached villa on Larch Road, a rare gem nestled in the peaceful residential area of Dumbreck. Boasting a generous 2,072 square feet, this newly renovated home features magnificent bay windows, high ceilings, and an array of traditional details, providing an elegant backdrop for family living. The property includes multiple entertaining spaces, including a formal lounge, a dining room that flows into a bright kitchen, and a beautifully landscaped rear garden, perfect for family gatherings.

With convenient access to local amenities and transport options, including quick links to the M8 for trips to the City Centre and beyond, this home strikes the ideal balance of comfort and accessibility. The generous layout is perfect for families or those needing extra space, and the option for further renovations opens the door for personalization. While the council tax is on the higher side and the area is classified as very deprived, the home's exceptional features and location make it an enticing opportunity. Don’t miss your chance to claim this beautiful family residence; early viewing is highly recommended!

Property Details

Image Descriptions

Floorplan Description

Rooms

Textual Property Features

Detected Visual Features

Nearest Bars And Restaurants

,,,,}

Nearest General Shops

,,}

Nearest Grocery shops

,,}

Nearest Supermarkets

,,}

Nearest Religious buildings

,,}

Nearest Medical buildings

,,,}

Nearest Airports

,}

Nearest Leisure Facilities

,,,,}

Nearest Tourist attractions

,,}

Nearest Train stations

,,,,}

Nearest Bus stations and stops

,,,,}

Nearest Hotels

,,}

Tags

Local Market Stats

AirBnB Data

Similar Properties

Meta

High Res Images

Compatible Images

Low res Images

Thumbnails

Raw Images

High Res Floorplan Images

Compatible Floorplan Images

Low res Floorplan Images

FloorplanImages Thumbnail

Raw Floorplan Images