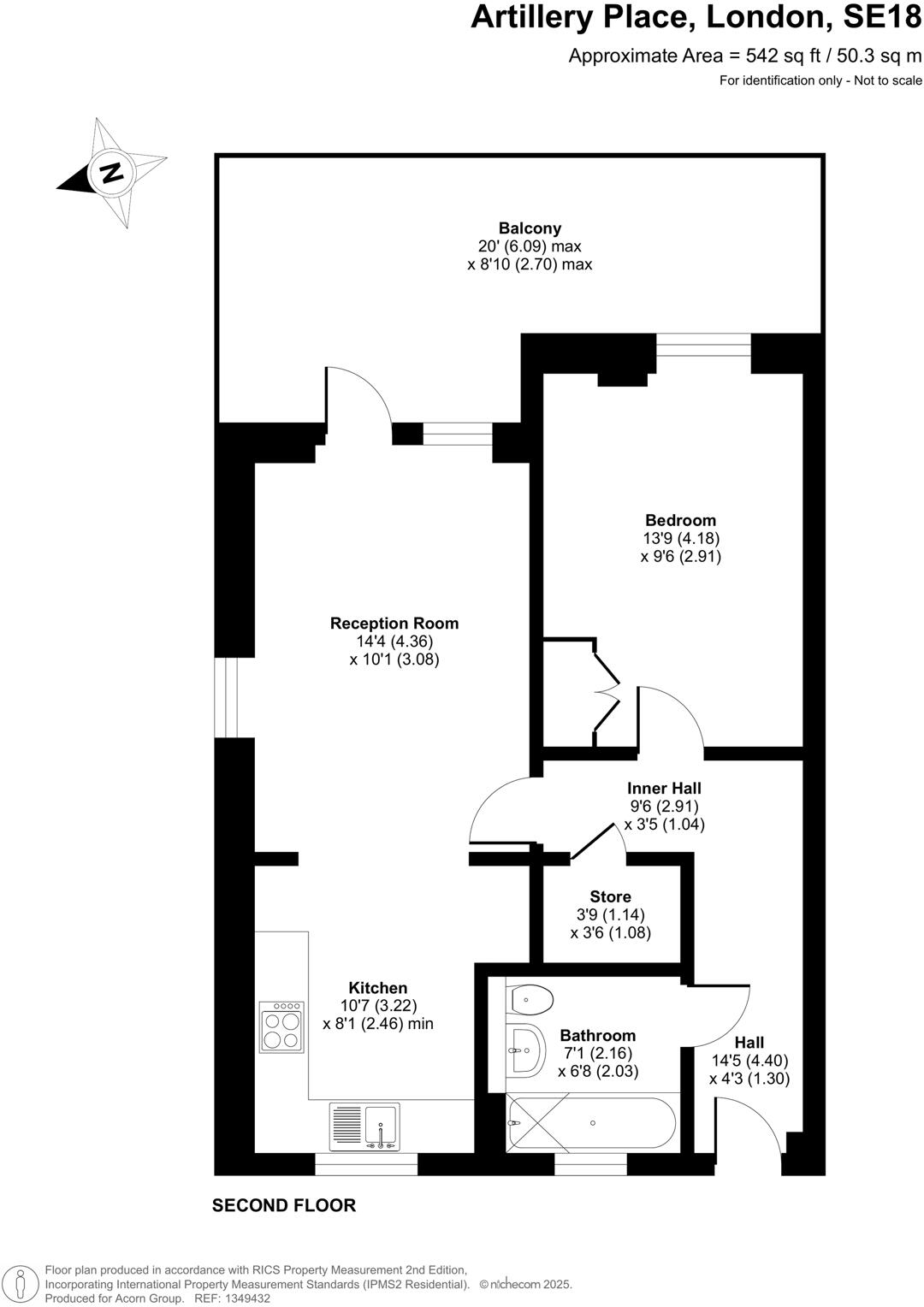
Second-floor one-bedroom with long lease and excellent transport links.
Chain free one-bedroom, approx 542 sq ft
Large 20ft balcony extends living space outdoors
Open-plan reception with modern fitted kitchen
Long lease: approximately 105 years remaining
Service charge c. £1,400 per annum
Ground rent £200 per annum
Electric room heating — potentially higher running costs
Located in area with higher crime and deprivation indicators
Chain-free and ready to move into, this second-floor one-bedroom apartment in Artillery Place delivers practical urban living with a generous external terrace. The open-plan reception and separate fitted kitchen make the most of 542 sq ft, and the large 20ft balcony adds valuable outdoor space for dining or relaxing. The block is modern and well-presented, with features including video entry, an on-site gym and NHBC warranty.
The apartment is comfortable and low-maintenance, finished to a contemporary standard with double glazing and built-in bedroom wardrobes. It will suit first-time buyers seeking a well-connected base or buy-to-let investors attracted by proximity to Woolwich Arsenal station, the Elizabeth line and local amenities. Council tax is low and broadband and mobile signals are strong.
Buyers should note a service charge of around £1,400 pa and a ground rent of £200 pa. Heating is electric room heaters, which can increase running costs compared with gas central heating. The development sits in an area with higher-than-average crime statistics and local deprivation indicators, which may influence resale or rental demand in some segments.
Overall, this compact apartment offers convenience, a generous balcony and a long lease (circa 105 years), with clear positives for practical city living alongside understandable urban-area compromises.
1 bedroom flat for sale in Wellington Street, Woolwich, SE18 — £310,000 • 1 bed • 1 bath • 585 ft²
1 bedroom apartment for sale in Artillery Place, Woolwich, SE18 — £325,000 • 1 bed • 1 bath • 632 ft²
1 bedroom apartment for sale in Brixham Building, 8, Artillery Place, SE18 — £270,000 • 1 bed • 1 bath • 537 ft²
1 bedroom apartment for sale in Rolfe Terrace, Woolwich, London, SE18 — £300,000 • 1 bed • 1 bath • 555 ft²
1 bedroom flat for sale in Argyll Road, Woolwich, SE18 — £325,000 • 1 bed • 1 bath
1 bedroom apartment for sale in Artillery Place, Woolwich, SE18 — £325,000 • 1 bed • 1 bath • 559 ft²


































































