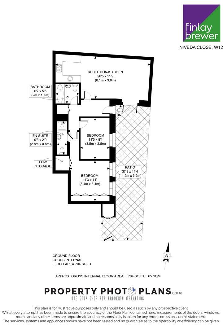
Ground-floor living with private paved patio and very long lease.
Two double bedrooms, principal with en suite and large built-in wardrobes
This ground-floor two-bedroom maisonette offers a bright, well-configured living space with direct outside access — ideal for first-time buyers or buy-to-let investors. The generous 26'5 x 11'9 open-plan reception/kitchen provides flexible living and entertaining space, with full-height glazing leading onto a paved private patio that feels large relative to the flat.
The principal bedroom sits opposite the living area and benefits from wall-to-wall built-in wardrobes and an en suite. A second double bedroom and an additional bathroom complete the accommodation; overall footprint is compact but efficiently arranged. The apartment is presented in good decorative order with recently finished hardwood flooring, recessed lighting and modern wiring throughout.
Practical strengths include a very long lease (c.987–988 years) with share of freehold, an EPC rating of B (81) and fast broadband/mobile signal. The location is tucked behind Askew Road in a private cul-de-sac, minutes from independent shops, gastropubs and green space at Wendell Park and Ravenscourt Park, with good bus links and nearby District line stations.
Material points to note: the property sits in an area with higher crime and elevated area deprivation statistics, and council tax is above average (Band E). The garden is a paved courtyard rather than a lawn and is relatively small compared with houses. Overall this is a compact, low-maintenance flat offering immediate occupation or straightforward letting potential, but buyers should factor local area conditions into their decision.
1 bedroom flat for sale in Gayford Road, W12 — £445,000 • 1 bed • 1 bath • 517 ft²
2 bedroom flat for sale in Bassein Park Road, Askew Village, London, W12 — £625,000 • 2 bed • 1 bath • 679 ft²
1 bedroom maisonette for sale in Willow Vale, London, W12 — £450,000 • 1 bed • 1 bath • 643 ft²
2 bedroom flat for sale in Eynham Road, London, W12 — £625,000 • 2 bed • 1 bath • 786 ft²
2 bedroom apartment for sale in Askew Road, London, W12 — £550,000 • 2 bed • 2 bath • 959 ft²
2 bedroom flat for sale in Bassein Park Road, Shepherd's Bush, W12 — £500,000 • 2 bed • 1 bath • 670 ft²






































