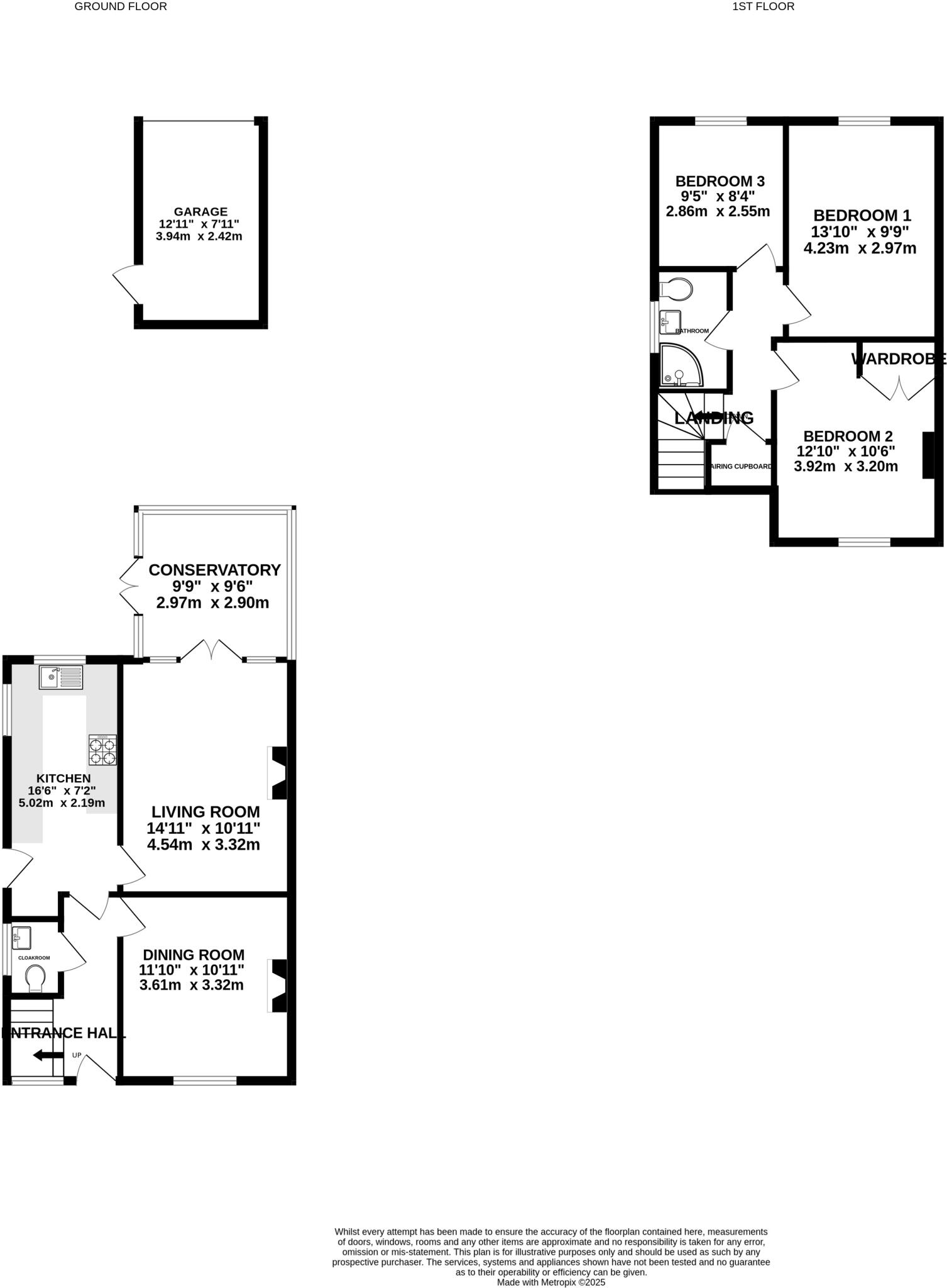
Chain free three-bedroom semi-detached house in cul-de-sac location
Two reception rooms plus conservatory opening to south-facing garden
Driveway parking, gated side access and detached garage at garden end
Long, private, low-maintenance rear garden suitable for families
Kitchen/breakfast room is lengthy; scope for modest modernisation
Family bathroom is a shower-room (no full bath) — note for families
EPC D (65); mains gas boiler and double glazing (install dates unknown)
Walking distance to town centre, mainline station and good local schools
Tucked in a quiet cul-de-sac within walking distance of Basingstoke town centre and the mainline station, this three-bedroom semi offers practical family living with excellent commuter convenience. The ground floor has two reception rooms, a long kitchen/breakfast room and a bright conservatory opening onto a private, south-facing garden — a good layout for everyday life and entertaining.
Outside provides useful parking options with a front driveway, gated side access and a detached garage at the garden end. The rear garden is long, private and low-maintenance, well suited to children’s play or relaxed outdoor use. The property is chain free, making it straightforward for a buyer wanting a quicker move.
Internally the house is in sound order but presents scope for modest updating to modernise finishes and increase value; the current family bathroom is a shower-room layout rather than a bath. The EPC is D (65) and heating is mains gas with boiler and radiators; glazing is double but installation date is unknown. Overall this is a comfortable, well-located mid-sized family home with clear potential for improvement.
Nearby schools are highly regarded, local amenities are within easy reach and transport links make commuting to London feasible. This home will suit families seeking space, privacy and convenient town-centre access, or investors looking for a straightforward buy-to-let in a low-crime, well-connected area.



























































