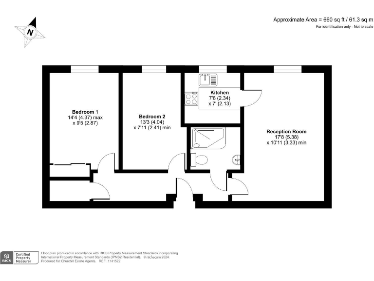
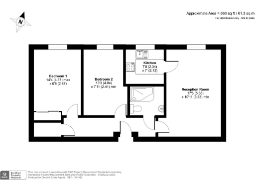
Two-bedroom first-floor apartment overlooking communal garden
This well-presented two-bedroom first-floor retirement apartment in Tudor Lodge offers comfortable, low-maintenance living overlooking the communal garden. At about 660 sq ft, the apartment is arranged in a traditional layout with a generous lounge, kitchen, two good-sized bedrooms and a large shower room — ready to move into.
Designed for independent older owners, Tudor Lodge provides practical on-site support: a lodge manager five days a week, a 24-hour Careline system, secure video entry and communal safety systems. Owners benefit from a private car park, an Owners’ lounge and access to a Guest Suite on site (plus reciprocal use of Guest Suites across Churchill developments).
Practical considerations include electric room heaters rather than gas central heating and an above-average service charge of £4,660.78pa plus a ground rent of £933.34pa. The apartment is leasehold with approximately 109 years remaining and was built in 2008. These running costs and the tenure should be weighed alongside the convenience and security offered.
Positioned close to local shops, bus routes and the Dove House precinct, the location is especially convenient for amenities. Olton Railway Station and wider transport links are within easy reach, making visits to family or trips out straightforward.
2 bedroom retirement property for sale in Tudor Lodge, Solihull, B92 — £210,000 • 2 bed • 1 bath • 746 ft²
2 bedroom retirement property for sale in Tudor Lodge, Solihull, B92 — £200,000 • 2 bed • 1 bath • 786 ft²
1 bedroom retirement property for sale in Tudor Lodge, Solihull, B92 — £120,000 • 1 bed • 1 bath • 484 ft²
2 bedroom retirement property for sale in Tudor Lodge, Warwick Road, Solihull, B92 — £205,000 • 2 bed • 1 bath • 625 ft²
2 bedroom retirement property for sale in St Francis Lodge, Solihull, B91 — £149,950 • 2 bed • 1 bath • 693 ft²
2 bedroom retirement property for sale in St Francis Lodge, Solihull, B91 — £147,000 • 2 bed • 1 bath • 658 ft²






























































