**Standout Features:**
- Well-presented retirement apartment
- Conveniently located near high street shops and mainline railway station
- Access to communal facilities, including residents' lounge and roof terrace
- Chain-free sale
- Double glazing and efficient electric heating
- Affordable council tax band A
- Ideal for retirees seeking a vibrant community
**Potential Concerns:**
- Leasehold with only 57 years remaining, which may limit mortgage options
- High crime rate in the area
- Apartment has a dated appearance and may require cosmetic updates
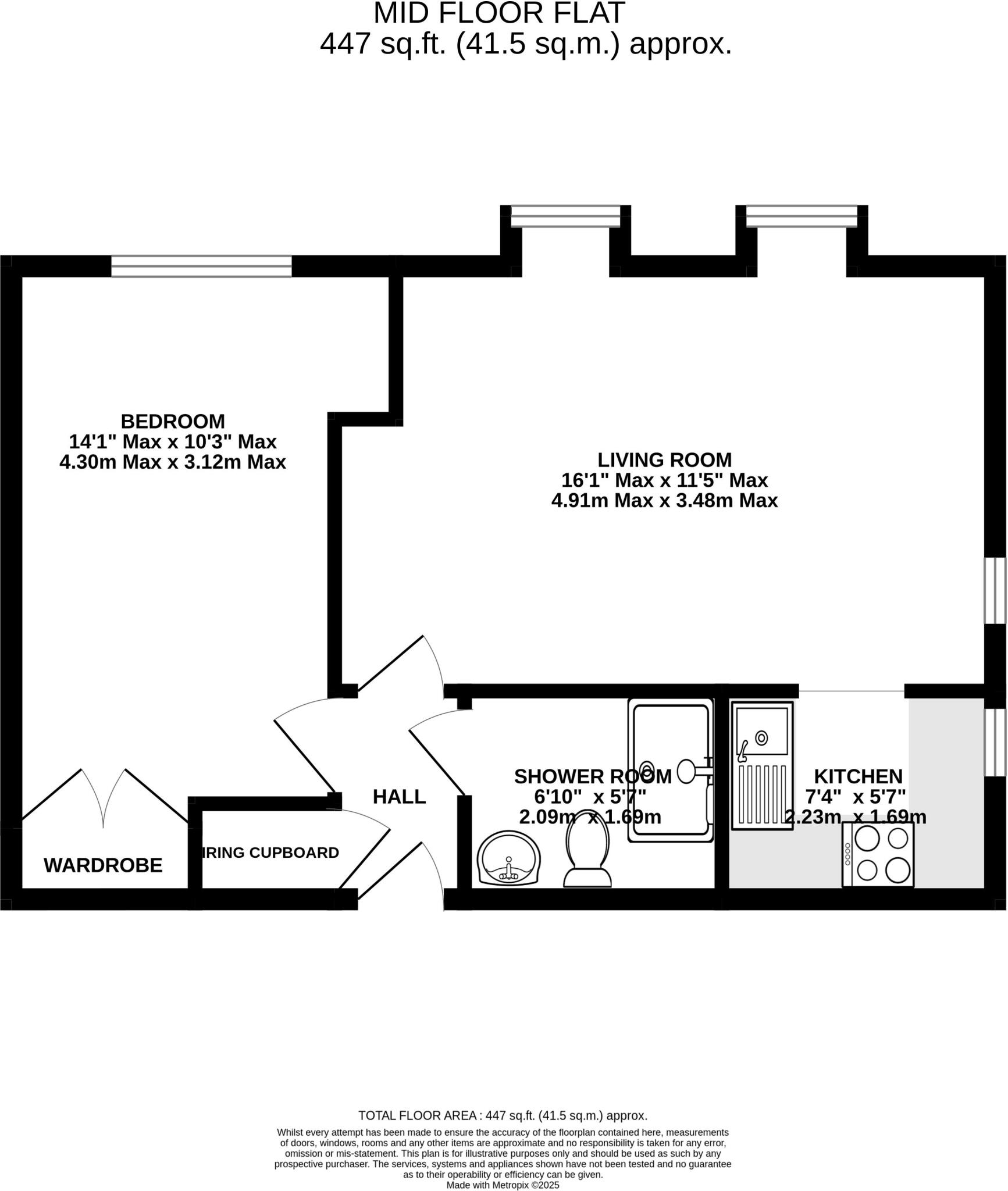
This delightful retirement apartment offers a blend of comfort and community, perfect for those looking to enjoy a peaceful lifestyle. Spanning 447 square feet, the one-bedroom property features a spacious living room filled with natural light, a modern kitchenette, and a cozy double bedroom. Residents benefit from lovely communal amenities, including a welcoming lounge and a roof terrace—ideal for socializing or enjoying some fresh air.
Situated conveniently close to New Milton's high street and mainline railway access, this location ensures easy shopping and travel. However, potential buyers should note the leasehold's limited duration of 57 years, which may affect financing options. Despite the need for some renovation and rising crime statistics, the community-oriented environment and the enhanced access to local amenities present a unique opportunity for retirees seeking value and lifestyle within a vibrant setting. Don’t miss out on the chance to make this apartment your new home!
1 bedroom retirement property for sale in Homemill House Station Road BH25 6HX, BH25 — £75,000 • 1 bed • 1 bath • 359 ft²
1 bedroom apartment for sale in Homemill House, Station Road, New Milton, Hampshire, BH25 — £50,000 • 1 bed • 1 bath • 473 ft²
1 bedroom apartment for sale in Homemill House Phase I, New Milton, BH25 — £69,950 • 1 bed • 1 bath • 463 ft²
1 bedroom flat for sale in Station Road, New Milton, Hampshire. BH25 6HX, BH25 — £62,000 • 1 bed • 1 bath • 442 ft²
1 bedroom apartment for sale in Whitefield Road, New Milton, Hampshire, BH25 — £97,500 • 1 bed • 1 bath • 398 ft²
2 bedroom apartment for sale in Homemill House Phase II, New Milton, BH25 — £100,000 • 2 bed • 1 bath • 631 ft²


























