Character home with south garden, garage conversion potential and rooftop sea views.
Four double bedrooms with flexible ground-floor bedroom option
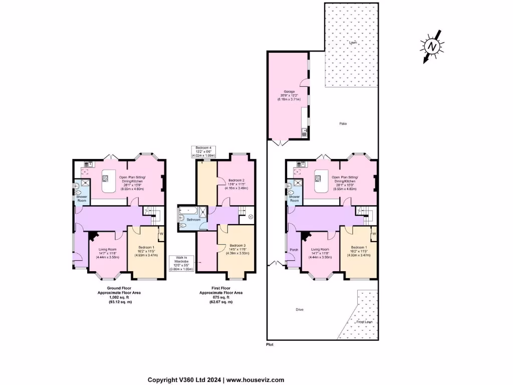
This handsome four-bedroom semi-detached bungalow sits on a sunny south-facing plot with far-reaching rooftop and sea views — ideal for a family seeking space and light. The house combines early 20th-century character (bay windows, high-line fireplace) with a large, modern open-plan kitchen/living area, two bathrooms and practical ground-floor bedroom provision.
The extended garage with previous planning for a pitched roof and skylights is a standout asset: plumbing, drains and electrics are in place, making conversion to an annexe, home office or gym straightforward (subject to consents). The generous paved patio and lawn face south, offering all-day sun and easy outdoor entertaining.
Practical notes: glazing was upgraded post-2002 and heating is mains gas with a boiler and radiators, but the property’s solid brick walls are assumed uninsulated and the EPC is D. Tenure is not confirmed and appliances/heating have not been independently tested, so buyers should factor in survey and energy-improvement costs. Overall, this roomy, well-updated home offers scope to personalise and increase value while living comfortably from day one.
4 bedroom semi-detached house for sale in Uppingham Road, Wallasey, CH44 — £350,000 • 4 bed • 2 bath • 1575 ft²
4 bedroom semi-detached house for sale in Southbourne Road, Wallasey Village, CH45 — £399,995 • 4 bed • 3 bath • 1684 ft²
4 bedroom semi-detached house for sale in Broadway Avenue, Wallasey, CH45 — £360,000 • 4 bed • 3 bath • 1439 ft²
4 bedroom semi-detached house for sale in Uppingham Road, Wallasey, CH44 — £325,000 • 4 bed • 1 bath • 1380 ft²
4 bedroom detached bungalow for sale in Marlowe Road, Wallasey, CH44 — £389,995 • 4 bed • 2 bath • 1569 ft²
3 bedroom semi-detached house for sale in Lynton Road, Wallasey, CH45 — £290,000 • 3 bed • 1 bath • 1166 ft²


















































































































































































































