ST14 8LW - 4 bedroom detached house for sale in Jacks Lane, Marchingto…

View on Property Piper

4 bedroom detached house for sale in Jacks Lane, Marchington, ST14

Summary - 32 JACKS LANE MARCHINGTON UTTOXETER ST14 8LW

4 bed 1 bath Detached

**Standout Features:**
- Spacious four-bedroom detached home in the village of Marchington
- Generous open-plan kitchen diner with central island and integrated appliances
- Bright conservatory leading to a beautifully maintained, large rear garden
- Cozy lounge with a multi-fuel log burner
- Off-road parking with a car port
- Fully insulated studio ideal for a home office
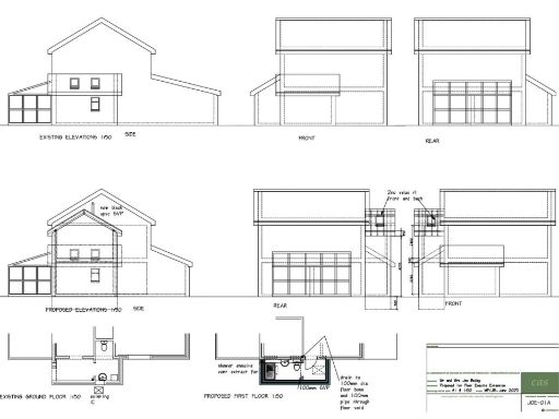
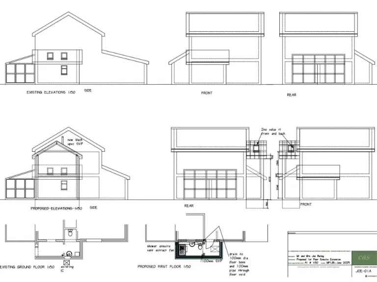
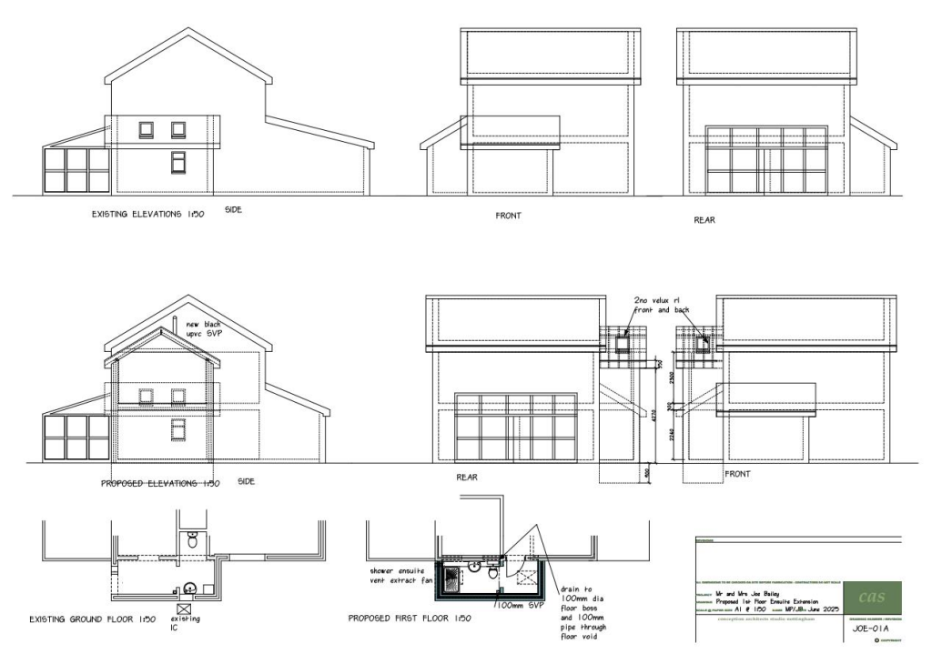
- Planning permission for a master bedroom ensuite extension available on request
- Enclosed garden with mature borders, pergola seating area, greenhouse, and established apple trees

**Potential Downsides:**
- Average mobile signal and broadband speeds
- Local crime rate is above average

Experience the charm of rural living in this delightful four-bedroom detached family home, nestled in the heart of Marchington. With a spacious open-plan kitchen diner that serves as the true heart of the home, entertaining and family gatherings are a breeze. The inviting lounge, complete with a multi-fuel log burner, offers comfort during the cooler months, while the bright conservatory opens up to a stunningly maintained garden—perfect for relaxation and outdoor entertaining.

Each of the four well-proportioned bedrooms upstairs provides ample space for comfortable family living, complemented by a recently fitted family bathroom. Additional features such as off-road parking, a car port, and a fully insulated studio present ideal opportunities for working from home or pursuing hobbies. With planning already drawn up for an ensuite extension, this home presents an exciting opportunity for future customization.

Located in a peaceful village setting, families will appreciate the charming community lifestyle while enjoying the balance of convenience and tranquility. Don't miss your chance to make this exceptional property your own—schedule a viewing now!

Property Details

Brochure Descriptions

Image Descriptions

Floorplan Description

Rooms

Textual Property Features

Detected Visual Features

Nearby Schools

Nearest Bars And Restaurants

,,,,}

Nearest General Shops

,,}

Nearest Grocery shops

,,}

Nearest Supermarkets

,,}

Nearest Religious buildings

,,}

Nearest Medical buildings

,,,}

Nearest Leisure Facilities

,,,,}

Nearest Tourist attractions

,,}

Nearest Train stations

,,,,}

Nearest Bus stations and stops

,,,,}

Nearest Hotels

,,}

Tags

Local Market Stats

Similar Properties

Meta

High Res Images

Compatible Images

Low res Images

Thumbnails

Raw Images

High Res Floorplan Images

Compatible Floorplan Images

Low res Floorplan Images

FloorplanImages Thumbnail

Raw Floorplan Images