Spacious, ready-to-live apartment near shops and transport links.
Preferred first-floor flat with lift access and secure entry
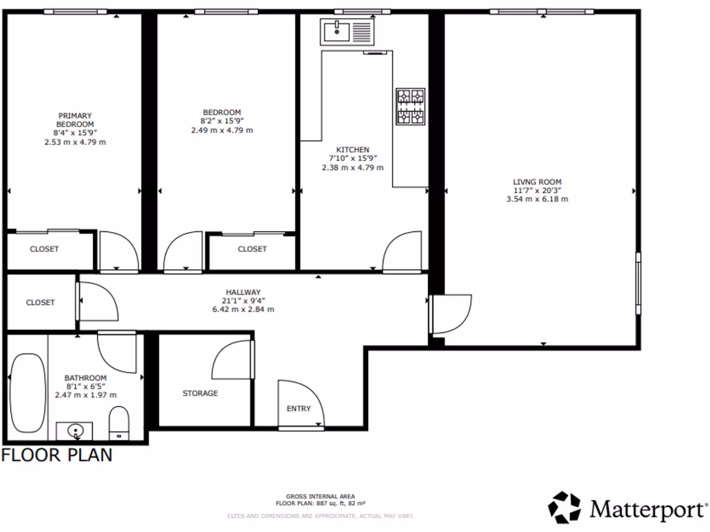
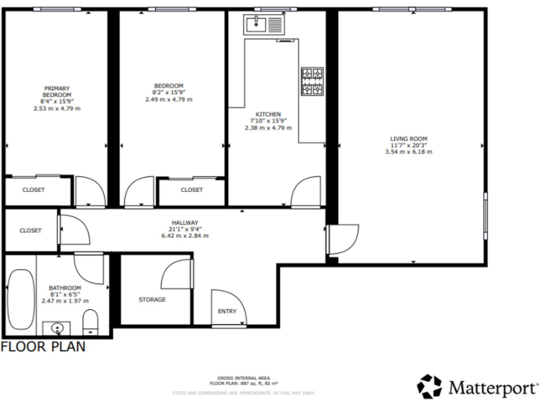
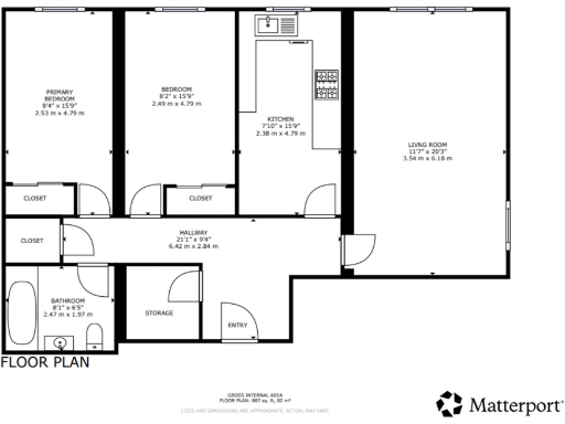
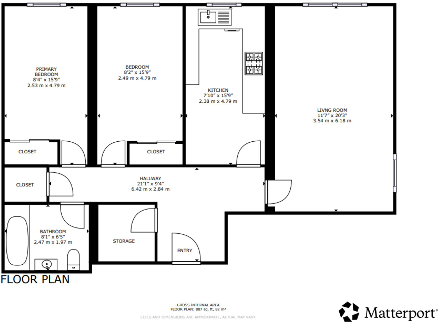
Generous dual-aspect lounge, lots of natural light
Modern fitted kitchen with integrated appliances and dining space
Two double bedrooms with built-in storage
Well-kept communal gardens and ample residents/visitor parking
Freehold tenure and no flood risk
Council tax band above average for the area
EPC D; area classified as deprived (may affect demand)
Set on the preferred first-floor of a well-kept 1980s development, this two-bedroom flat offers a bright, practical home with easy access to local shops and transport. The dual-aspect lounge, modern fitted kitchen and built-in bedroom storage make for comfortable everyday living without immediate work required.
The flat is presented in good condition with double glazing, lift access and secure entry. Shared gardens and ample residents’/visitor parking add convenience for car owners, while 883 sq ft of accommodation gives genuinely spacious rooms for a first home or a buy-to-let purchase.
Important practical points: the council tax band is above average for the area and the EPC is rated D. The wider neighbourhood is classified as deprived, which may affect resale/rental demand but also keeps prices relatively accessible for buyers seeking value in a popular Shawlands/Langside location.
This property suits buyers looking for a straightforward, move-in-ready flat: first-time buyers wanting space and transport links, downsizers who value convenience, or investors after a well-located two-bed with good amenities nearby.
2 bedroom flat for sale in 18 Durward Court, Flat 3/1, Shawlands, Glasgow, G41 3RZ, G41 — £179,000 • 2 bed • 1 bath • 732 ft²
2 bedroom flat for sale in 45 Riverford Road, Flat 1/1, Shawlands, Glasgow, G43 1RX, G43 — £159,000 • 2 bed • 2 bath • 775 ft²
2 bedroom flat for sale in Bemersyde Avenue, Mansewood, G43 — £149,000 • 2 bed • 2 bath • 691 ft²
2 bedroom flat for sale in 81 Shawbridge Street, Flat 3/1, Pollokshaws, Glasgow, G43 1SB, G43 — £99,000 • 2 bed • 1 bath • 678 ft²
2 bedroom apartment for sale in Barrland Street, Glasgow, G41 — £150,000 • 2 bed • 2 bath • 764 ft²
2 bedroom flat for sale in 17 Ruel Street, Flat 1/2, Cathcart, Glasgow, G44 4AR, G44 — £169,000 • 2 bed • 1 bath • 689 ft²


































































