**Standout Features:**
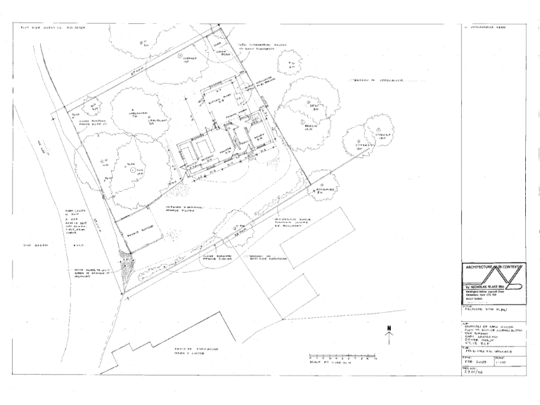
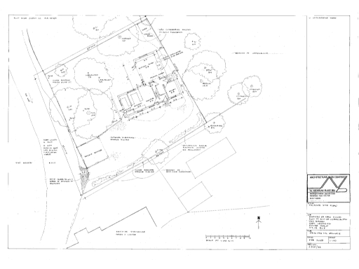
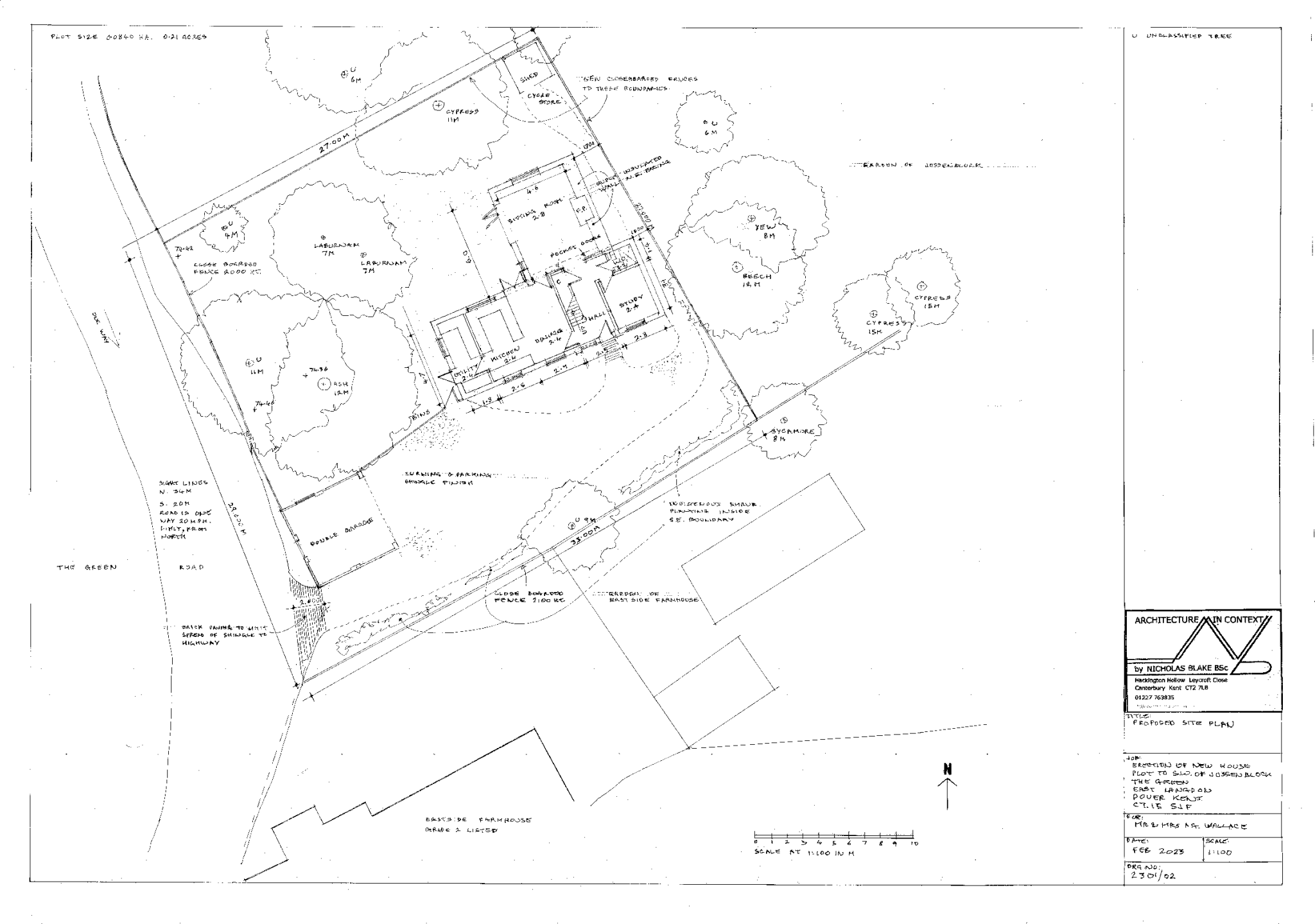
- Spacious building plot of approximately 80' x 80' (25m x 25m).
- Planning permission granted for a substantial traditional-style detached house (3,860 square feet) with modern design elements.
- Scenic views overlooking the village green and church, offering a serene setting.
- Located within the grounds of a Grade II* listed property, adding historical value.
- Chain-free sale, offering flexibility.
**Summary:**
Discover a rare opportunity to build your dream home in the picturesque village of East Langdon, CT15. This expansive plot offers an attractive 80' x 80' footprint, already blessed with planning permission (Dover District Planning Department ref no;23/00473) for a traditional style detached house totaling 3,860 square feet. The proposed home, Skylark Lodge, boasts a well-thought-out layout with four bedrooms, three bathrooms, and a detached double garage.
Nestled within the charming grounds of a Grade II* listed house, the location provides tranquil views over the village green and church while being just a short drive to coastal attractions and local amenities. Families will appreciate the nearby well-rated schools, including an Ofsted-rated ‘Outstanding’ primary, and the community feel of this beautiful village. Although renovations may be challenging due to the historic listing, this unique property represents immense potential for those willing to invest their vision and creativity.
With prices in this area expected to remain stable, don't miss your chance to secure this delightful plot—opportunities like this are rare. Embrace the comfort and exclusivity of country living while being close to essential conveniences in nearby Dover and Deal. Schedule your viewing today!
Detached house for sale in Land At St Marys Grove, Tilmanstone, Deal, Kent, CT14 — £500,000 • 1 bed • 1 bath • 6253 ft²
Plot for sale in Densole, Folkestone, CT18 — £200,000 • 1 bed • 1 bath
Plot for sale in The Avenue, Temple Ewell, Dover, CT16 — £325,000 • 3 bed • 2 bath
Plot for sale in Mill Lane, Eastry, CT13 — £195,000 • 4 bed • 1 bath
Land for sale in Minnis Terrace, Dover, Kent, CT17 — £80,000 • 1 bed • 1 bath
4 bedroom detached house for sale in Plot 1, 2 Nursery field, Downs Road, East Studdal, Dover CT15 5BX, CT15 — £750,000 • 4 bed • 2 bath • 2186 ft²






















































