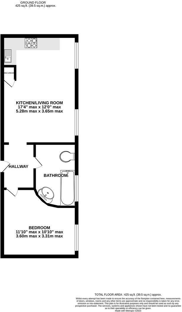
**Standout Features:**
- Characterful one-bedroom apartment in historic Pridays Mill (1800s)
- Open-plan kitchen and living area with dual sash windows
- Stunning views of Gloucester Cathedral and Docks
- Tenant in situ currently paying £650 pcm, potential rent £890 pcm
- Chain-free sale
- Central location within walking distance to Gloucester Quays and train station
**Concerns:**
- Leasehold with 75 years remaining; possible mortgage challenges
- High crime rate in the area
- Solid brick walls with no insulation
Step into the charm of this unique one-bedroom apartment located in the iconic Pridays Mill, offering both historic character and modern living. This fourth-floor flat boasts stunning views over Gloucester Cathedral and Docks while providing a bright, open-plan layout that maximizes natural light. With a reliable tenant already in place paying £650 per month, this property is an excellent opportunity for investors seeking strong rental income or perfect for first-time buyers eager to start their homeownership journey.
While the property's current lease of 75 years may pose a challenge for some mortgage lenders, the seller is open to discussions regarding lease extension options. The apartment features modern comforts complemented by character elements from its mill conversion heritage, along with the added convenience of being centrally located—just a stone's throw from local shops, eateries, and transport links.
This rare offering encapsulates the essence of urban living infused with a rich history. Current market conditions suggest swift interest, so early viewings are strongly recommended to seize this exclusive opportunity before it slips away!
2 bedroom flat for sale in Pridays Mill, Gloucester Docks, GL1 — £197,500 • 2 bed • 2 bath • 732 ft²
1 bedroom apartment for sale in Pridays Mill, Gloucester Docks, GL1 — £165,000 • 1 bed • 2 bath • 722 ft²
1 bedroom duplex for sale in Pridays Mill, Gloucester Docks, GL1 — £152,500 • 1 bed • 2 bath • 732 ft²
1 bedroom apartment for sale in Commercial Road, GLOUCESTER, GL1 — £125,000 • 1 bed • 1 bath • 455 ft²
2 bedroom flat for sale in Pridays Mill, Commercial Road, Gloucester Docks, GL1 — £185,000 • 2 bed • 2 bath • 958 ft²
1 bedroom apartment for sale in Biddle & Shipton, Gloucester Docks, GL1 — £160,000 • 1 bed • 1 bath • 474 ft²


































