NE47 8AA - 2 bedroom barn conversion for sale in Carrshield, Allendale…

View on Property Piper

2 bedroom barn conversion for sale in Carrshield, Allendale, Hexham, Northumberland, NE47 8AA, NE47

Summary - Down View Barn, Carrshield NE47 8AA

2 bed 1 bath Barn Conversion

**Key Features:**
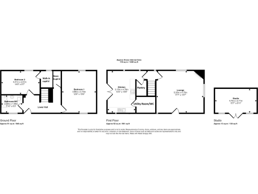
- Characterful stone-built converted Bastle/Barn from 1875
- Spacious accommodation: Two double bedrooms (possibility to reinstate a third), large lounge with stunning views
- Newly renovated with modern country kitchen and high ceilings
- Expansive gardens, including a studio/office space and ample off-street parking
- Located in the North Pennines Area of Outstanding Natural Beauty
- Fast broadband and LPG central heating
- Close to local amenities and good-rated schools

Nestled in the serene countryside of Carrshield, this charming converted Bastle offers a perfect blend of historic character and modern comfort. The open-plan living spaces, with their tall ceilings and exposed beams, create an inviting atmosphere. The upper level lounge is a highlight, providing panoramic views of the stunning North Pennines landscape. With two spacious double bedrooms and a newly renovated kitchen featuring a walk-in pantry, this property is designed for both comfort and practicality.

Set on a large plot, the extensive gardens are perfect for family gatherings or a peaceful retreat, and the addition of a studio/office space makes it ideal for remote working. This tranquil hamlet is a stone’s throw from Allendale and Hexham for local amenities and schools, making it suitable for families, retirees, or those seeking a peaceful lifestyle.

While the property boasts a well-maintained condition, interested buyers should note the potential need for upkeep of outdoor spaces. With properties in this picturesque location rarely available, this unique opportunity to own a piece of history won’t last long—early viewing is strongly advised!

Property Details

Image Descriptions

Floorplan Description

Rooms

Textual Property Features

Detected Visual Features

EPC Details

Nearby Schools

Nearest Bars And Restaurants

,,,,}

Nearest General Shops

,,}

Nearest Grocery shops

,,}

Nearest Supermarkets

,,}

Nearest Religious buildings

,,}

Nearest Medical buildings

,,,}

Nearest Leisure Facilities

,,,,}

Nearest Tourist attractions

,,}

Nearest Train stations

,,,,}

Nearest Bus stations and stops

,,,,}

Nearest Hotels

,,}

Tags

Local Market Stats

Similar Properties

Meta

High Res Images

Compatible Images

Low res Images

Thumbnails

Raw Images

High Res Floorplan Images

Compatible Floorplan Images

Low res Floorplan Images

FloorplanImages Thumbnail

Raw Floorplan Images