**Standout Features:**
- Modern two-bedroom flat in a gated development.
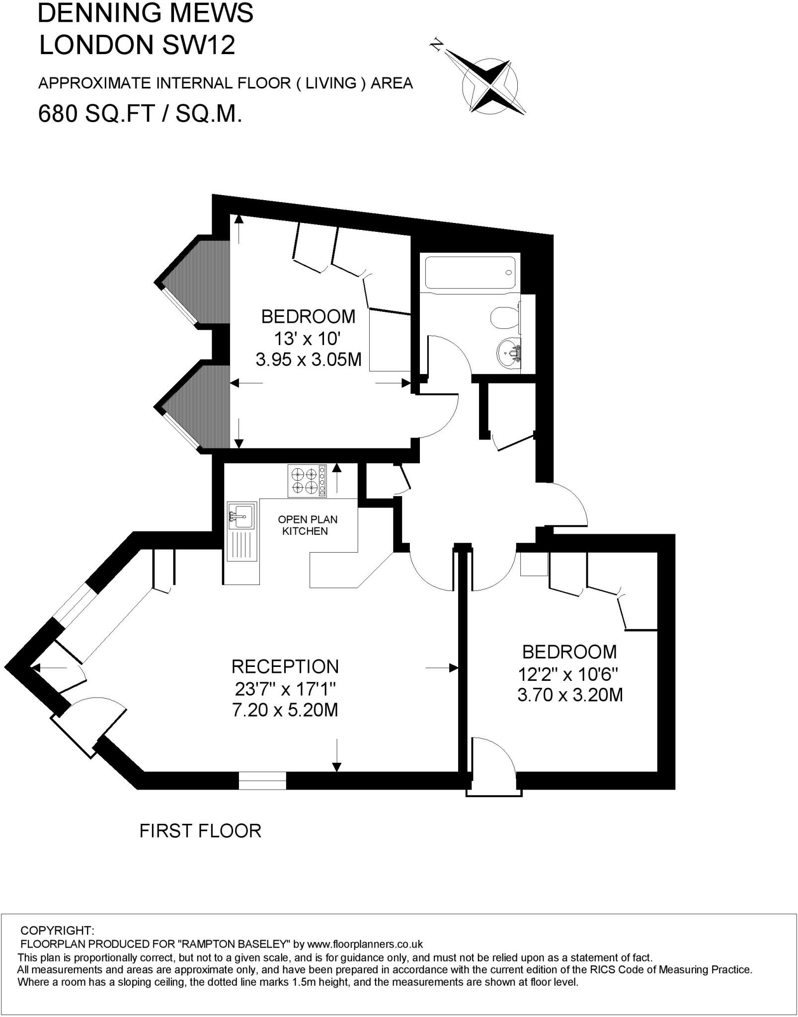
- Open-plan kitchen and reception room.
- Bright interiors with dual aspect windows.
- Close proximity to public transport and local amenities.
- 107 years remaining on leasehold.
  
**Concerns:**
- Above-average crime rate in the area.
This stylish two-bedroom apartment in Denning Mews offers modern urban living in the sought-after Nightingale Triangle. Spanning almost 700 sq ft, this first-floor residence features a bright open-plan kitchen and living area that creates an inviting space for relaxation and entertaining. The well-appointed kitchen comes equipped with ample storage and integrated appliances, while the generous reception room benefits from large windows that flood the space with natural light. Both double bedrooms include fitted wardrobes, enhancing the overall functionality of the layout.
Perfect for young professionals or small families, this property is ideally situated just a short walk to Clapham South and Balham Stations, providing excellent transport links to the city. With popular amenities like Northcote Road and Bellevue Village nearby, you can enjoy vibrant local culture and conveniences. While the area does have an above-average crime rate, the gated development adds a layer of security. Don’t miss out on this gem in an affluent neighborhood—schedule your viewing today and envision your new urban lifestyle!
 2 bedroom flat for sale in Denning Mews, Balham, SW12 — £525,000 • 2 bed • 2 bath • 686 ft²
 2 bedroom flat for sale in Denning Mews, Balham, SW12 — £525,000 • 2 bed • 2 bath • 686 ft² 1 bedroom apartment for sale in Denning Mews, London, SW12 — £475,000 • 1 bed • 1 bath • 481 ft²
 1 bedroom apartment for sale in Denning Mews, London, SW12 — £475,000 • 1 bed • 1 bath • 481 ft² 2 bedroom flat for sale in Denning Mews, Balham, London, SW12 — £650,000 • 2 bed • 2 bath • 760 ft²
 2 bedroom flat for sale in Denning Mews, Balham, London, SW12 — £650,000 • 2 bed • 2 bath • 760 ft² 5 bedroom terraced house for sale in Denning Mews, London, SW12 — £1,595,000 • 5 bed • 3 bath • 2018 ft²
 5 bedroom terraced house for sale in Denning Mews, London, SW12 — £1,595,000 • 5 bed • 3 bath • 2018 ft² 2 bedroom apartment for sale in Nightingale Lane, SW12 — £548,000 • 2 bed • 1 bath • 657 ft²
 2 bedroom apartment for sale in Nightingale Lane, SW12 — £548,000 • 2 bed • 1 bath • 657 ft² 2 bedroom apartment for sale in Nightingale Lane, London, SW12 — £600,000 • 2 bed • 1 bath • 589 ft²
 2 bedroom apartment for sale in Nightingale Lane, London, SW12 — £600,000 • 2 bed • 1 bath • 589 ft²






























