Spacious family home with annexe and extensive mature gardens.
Very large private plot with mature gardens and countryside views
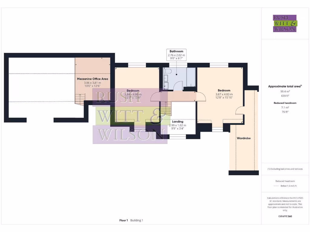
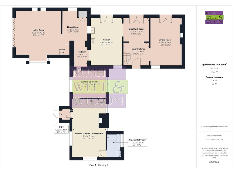
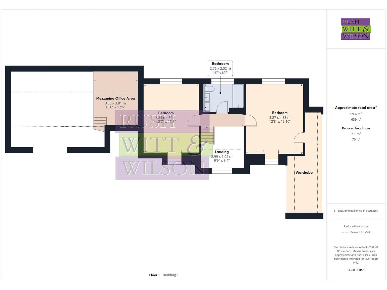
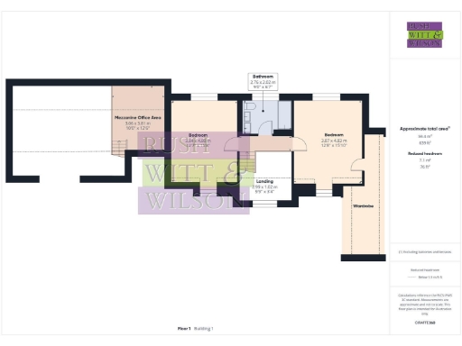
Three-bedroom detached house plus self-contained one-bedroom annexe
Impressive main reception room with vaulted beams and arched windows
Garage plus off-road parking for multiple vehicles
Freehold; mains gas boiler and radiators; double glazing
EPC D and Council Tax Band E — budget for energy and tax costs
Average broadband speeds; excellent mobile signal
Scope for modernisation and possible extension subject to consent
Set on a very large, secluded plot in Friars Hill, this detached three-bedroom cottage-style house offers substantial family accommodation and a self-contained one-bedroom annexe. High, beamed living spaces and an expansive main reception room create an immediate sense of character and scale, while the kitchen, dining and breakfast rooms provide practical daily living space and flow for entertaining.
The grounds are a standout: mature gardens, specimen trees and elevated countryside (and sea-adjacent) views give privacy and scope for outdoor living or future landscaping projects. Off-road parking for multiple vehicles and a large garage are practical assets for a family with several cars or for hobby storage.
Practical detail is upfront: the property is freehold, has mains gas central heating to radiators, double glazing, no flood risk and excellent mobile signal. Energy efficiency is modest (EPC D) and council tax sits in Band E, so buyers should budget for running costs and potential improvements. Broadband speeds are average for the area.
This home will suit buyers seeking rural character with plenty of internal and external space — families wanting room to grow, or purchasers who value an annexe for guests, home office use or rental income. The house presents clear scope for modernisation and selective updating to realise its full potential.
3 bedroom chalet for sale in Fairlight Road, Hastings, TN35 — £850,000 • 3 bed • 3 bath • 1604 ft²
3 bedroom detached house for sale in Rosemary Lane, Fairlight, Hastings, East Sussex, TN35 — £1,500,000 • 3 bed • 2 bath • 1664 ft²
3 bedroom detached house for sale in Tilekiln Lane, Hastings, TN35 — £1,495,000 • 3 bed • 2 bath • 2799 ft²
2 bedroom detached house for sale in Butchers Lane, Three Oaks, East Sussex TN35 4NH, TN35 — £525,000 • 2 bed • 1 bath • 662 ft²
4 bedroom detached house for sale in Bourne Lane, Robertsbridge, TN32 — £1,495,000 • 4 bed • 3 bath • 2493 ft²
3 bedroom detached house for sale in Sandrock Hill, Sedlescombe, TN33 — £469,000 • 3 bed • 1 bath • 1298 ft²






























































































































































































































