Chain‑free three-bed with conservatory, garage and strong school links — ideal to modernise.
Three bedrooms plus conservatory connecting indoor and outdoor space
Chain-free sale — available for a quicker completion
Needs modernisation throughout; scope to increase value
Small rear garden with paved area and established planting
Garage plus off-street parking with rear access
Cavity walls assumed uninsulated; insulation likely required
Single family bathroom only; no en suite facilities
Close to outstanding and good-rated local schools and Elizabeth Line
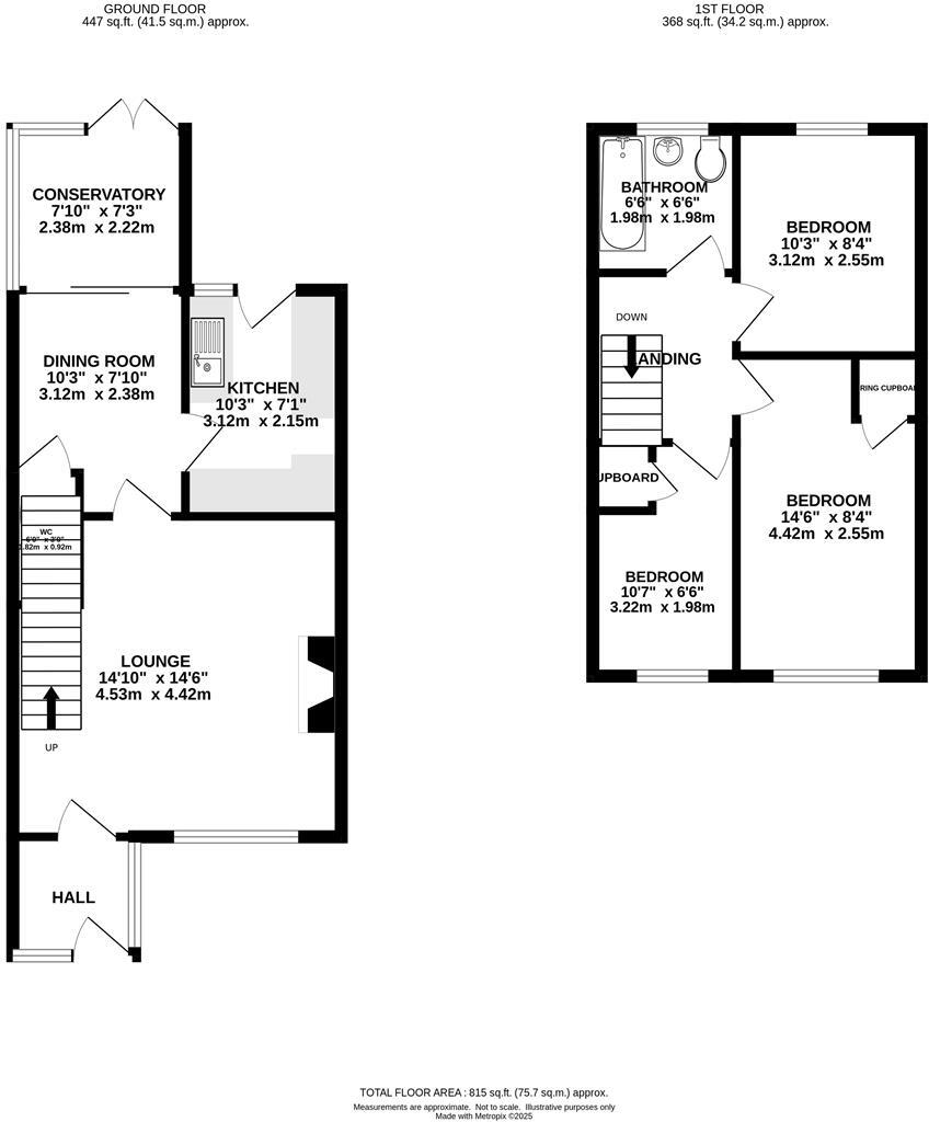
This three-bedroom mid-terrace on Heather Close is a practical family home in the popular Flowers Development, offered chain-free and ready for someone to modernise. Situated opposite a pleasant green and close to highly regarded primary and secondary schools, the location suits families seeking convenience and community. Brentwood High Street and the station (Elizabeth Line links) are within easy reach for commuting and amenities.
Internally the layout is straightforward: entrance porch, lounge, separate dining room and conservatory that opens onto a small rear garden. The kitchen and ground-floor WC are functional but dated, and the house would benefit from a programme of updating throughout to bring it in line with contemporary expectations. The principal bedroom is a generous double with two further bedrooms and a single family bathroom upstairs.
Outside there is a paved rear garden with established planting, rear access to a parking space and a garage. The front overlooks a green and has a small planted forecourt. Practical details: freehold tenure, double glazing (unknown installation date), mains gas central heating via boiler and radiators. The property dates from the 1950–66 period and has cavity walls with no confirmed added insulation.
This house is best for buyers who want a family home in a well-connected suburb and are willing to invest in renovation to increase comfort and value. Notable positives are the school catchments, transport links and chain-free sale; trade-offs include the need for updating, modest plot size and only a single bathroom.
3 bedroom terraced house for sale in Heather Close, Pilgrims Hatch, Brentwood, CM15 — £375,000 • 3 bed • 1 bath • 863 ft²
3 bedroom semi-detached house for sale in Magnolia Way, Pilgrims Hatch, Brentwood, CM15 — £450,000 • 3 bed • 2 bath • 901 ft²
3 bedroom end of terrace house for sale in Wistaria Close, Pilgrims Hatch, Brentwood, Essex, CM15 — £375,000 • 3 bed • 1 bath • 750 ft²
3 bedroom terraced house for sale in Wistaria Close, Pilgrims Hatch, Brentwood, CM15 — £350,000 • 3 bed • 1 bath • 732 ft²
3 bedroom semi-detached house for sale in Honeysuckle Close, Pilgrims Hatch, CM15 — £475,000 • 3 bed • 1 bath • 873 ft²
3 bedroom semi-detached house for sale in Poppy Close, Pilgrims Hatch, Brentwood, Essex, CM15 — £500,000 • 3 bed • 1 bath • 814 ft²


































































