Single-level living with large garden and strong commuter links.
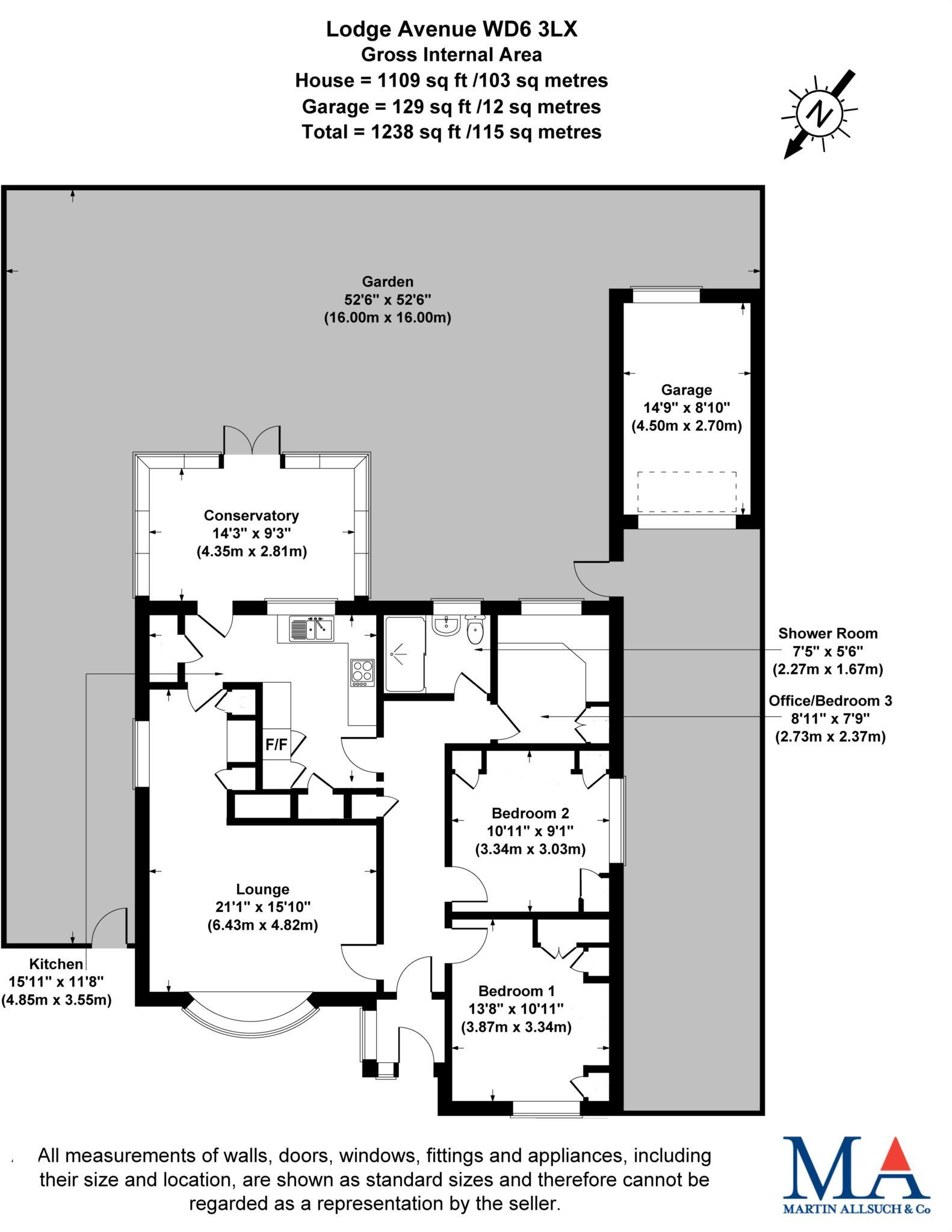
Detached three-bedroom bungalow on a large private plot
Set on a generous plot in one of Elstree’s most sought-after roads, this three-bedroom detached bungalow offers comfortable single-level living with strong commuter appeal. The living space is bright and modern, with recessed lighting and contemporary built-ins, while the kitchen overlooks a large, well-kept rear garden — a private outdoor space suited to family life or relaxed entertaining.
Practical conveniences include a driveway, detached garage and fast broadband and mobile signal, making the house well-suited to home working or hybrid commutes. The property is freehold and sits in an affluent, very low-crime neighbourhood with easy access to Elstree & Borehamwood station and local amenities.
There are a few points to note for buyers: the home has one bathroom only, which may require consideration for larger households; double glazing dates from before 2002 and some systems may benefit from updating. The bungalow was built in the 1950s–1960s and, while presented well, offers potential for further modernisation or extension subject to planning.
Nearby schooling includes a mix of state and highly rated independent options, and local leisure facilities and transport links are within easy reach. Council tax is high, so running costs should be factored into budgets. Overall this property will suit families seeking single-floor ease, downsizers wanting space and garden, or buyers looking for an established home with scope to personalise.
3 bedroom detached house for sale in Lodge Avenue, Elstree, WD6 — £1,000,000 • 3 bed • 2 bath • 1566 ft²
3 bedroom detached bungalow for sale in Elmfield Road, Potters Bar, EN6 — £649,750 • 3 bed • 1 bath • 863 ft²
3 bedroom semi-detached bungalow for sale in Northfield Road, Borehamwood, WD6 — £575,000 • 3 bed • 2 bath • 900 ft²
3 bedroom bungalow for sale in Elm Avenue, Bushey, Watford, WD19 — £775,000 • 3 bed • 2 bath • 1473 ft²
4 bedroom link detached house for sale in Cavendish Crescent, Elstree, WD6 — £975,000 • 4 bed • 2 bath • 1679 ft²
3 bedroom bungalow for sale in The Limberlost, Welwyn, AL6 — £775,000 • 3 bed • 2 bath • 1453 ft²






















































































































