Quiet cul-de-sac location with large garden and garage parking.
Newly renovated throughout with modern kitchen and utility room
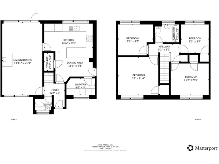
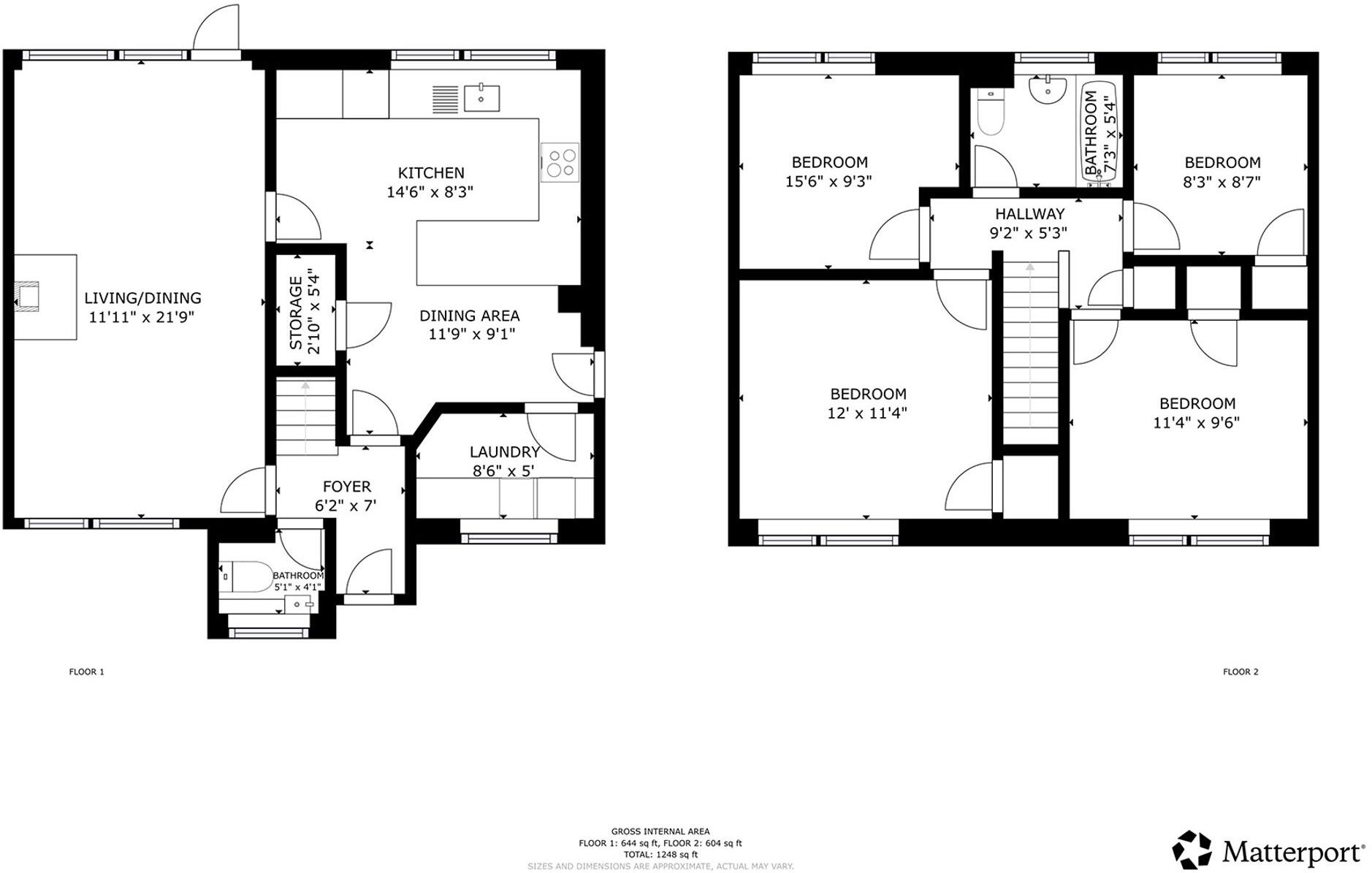
Set on a quiet cul-de-sac in a popular IP2 pocket, this four-bedroom detached home has been newly renovated throughout and offers a straightforward family layout across two floors. The living room centres on a log burner, creating a cosy focal point, while the updated kitchen with island and utility room provides practical, modern cooking and storage space. A driveway and garage give useful off-road parking and additional storage or flexible space.
The plot is noticeably large for the area, with a private rear garden and well-proportioned rooms that suit growing families or those who need a home office. The property is freehold, double glazed and runs on mains gas with radiator heating. Broadband speeds and mobile signal are both strong, which supports home-working and streaming.
Practical considerations: there is one bathroom for four bedrooms and council tax is above average for the area. The property sits within a wider locality classified as deprived with a local classification of hampered neighbourhoods; nearby schools include a mix of state and independent options and some schools with Requires Improvement Ofsted ratings. EPC is C. These factors are important for buyers to weigh alongside the clear renovation and space benefits.
Overall, this recently refreshed detached house offers ready-to-move-in accommodation, generous outdoor space and parking in a quiet cul-de-sac. It will suit families seeking extra space and modern finishes, or buyers looking for a well-presented, long-term home in Ipswich IP2.
4 bedroom detached house for sale in Kiln Close, Ipswich, Suffolk, IP4 — £600,000 • 4 bed • 2 bath • 1890 ft²
4 bedroom detached house for sale in Hervey Street, Ipswich, Suffolk, IP4 — £375,000 • 4 bed • 2 bath • 1038 ft²
4 bedroom detached house for sale in Grantham Crescent, Ipswich, Suffolk, IP2 — £425,000 • 4 bed • 2 bath • 1375 ft²
4 bedroom detached house for sale in Lummis Vale, Kesgrave, IP5 — £475,000 • 4 bed • 2 bath • 533 ft²
4 bedroom detached house for sale in The Chestnuts, Ipswich, Suffolk, IP2 — £350,000 • 4 bed • 1 bath • 1452 ft²
3 bedroom semi-detached house for sale in Dorset Close, Ipswich, IP4 — £410,000 • 3 bed • 2 bath • 1075 ft²


































































