Lower-ground studio close to green space and transport, ideal for first buyers or investors.
Bright lower-ground studio with space for a double bed
Smart fitted kitchen and contemporary bathroom, move-in ready
Period end-terrace (c.1900–1929) with double glazing
Long lease: 240 years remaining
Service charge circa £2,498 pa — notable running cost
Slow broadband speeds; solid brick walls likely lack insulation
No flood risk; excellent mobile signal and low local crime
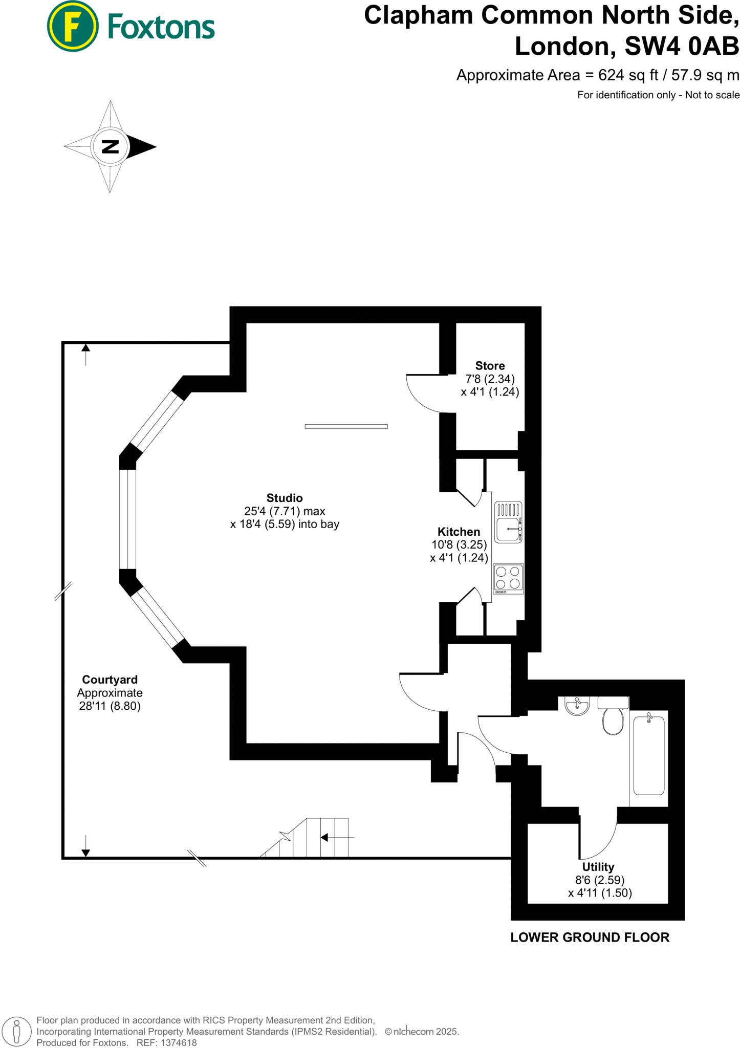
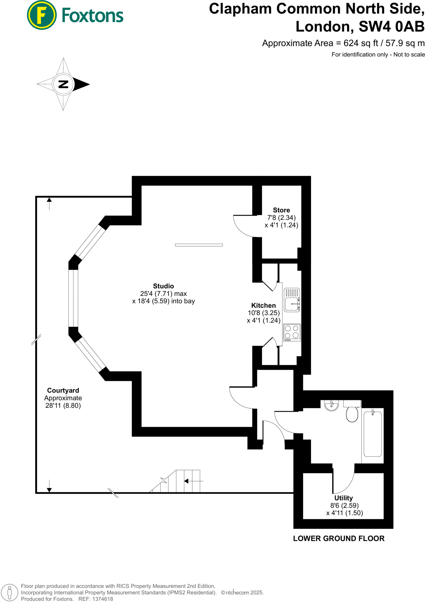
Bright and well-presented lower-ground studio moments from Clapham Common, arranged as one generous open-plan room with space for a double bed. The smart fitted kitchen and modern bathroom make this ready to occupy, while bay-window light and wood flooring add contemporary character.
The flat sits in a period end-terrace (c.1900–1929) with double glazing and gas central heating via boiler and radiators. It benefits from a long lease (240 years) and no flood risk — practical positives for buyers prioritising tenure security and location.
Notable practical points include a relatively high annual service charge and slow broadband speeds, and the building’s solid-brick construction likely offers limited wall insulation. These facts are relevant for running costs and any buyer considering energy upgrades.
This home suits first-time buyers or investors seeking a central Clapham address close to green space and strong transport links. The setting is inner-city cosmopolitan with abundant local amenities, while nearby good and outstanding schools add wider appeal.
Studio flat for sale in Wandsworth Road, London, SW8 — £325,000 • 1 bed • 1 bath • 348 ft²
1 bedroom flat for sale in Clapham Common North Side, London, SW4 — £425,000 • 1 bed • 1 bath • 584 ft²
Studio flat for sale in Abbeville Road, Abbeville Village, London, SW4 — £350,000 • 1 bed • 1 bath • 325 ft²
Studio flat for sale in Worsopp Drive, SW4 — £300,000 • 1 bed • 1 bath • 403 ft²
1 bedroom apartment for sale in Clapham Common North Side, SW4 — £425,000 • 1 bed • 1 bath • 588 ft²
1 bedroom flat for sale in 37 Bedford Road, Clapham, SW4 — £370,000 • 1 bed • 1 bath • 397 ft²










































































































