Characterful four-bed country house with far-reaching rural views and enclosed gardens.
Grade II listed former Bastle House dating to 1631
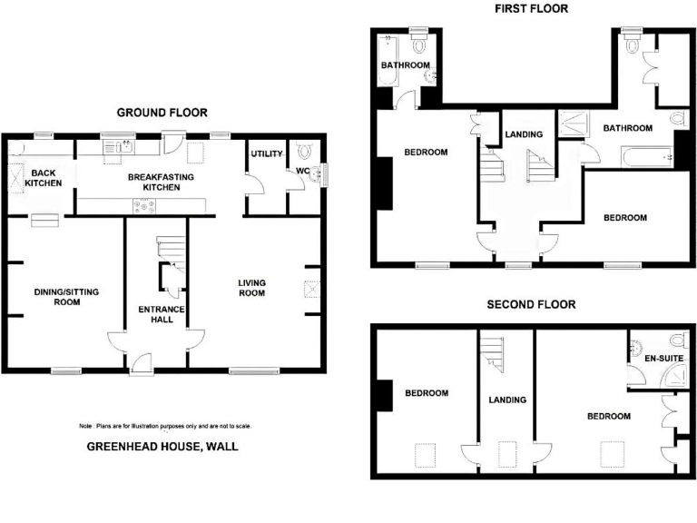
An individual and highly characterful four-bedroom former Bastle House dating to 1631, Greenhead House combines historic charm with comfortable family-sized accommodation. Exposed oak beams, inglenook surrounds and sash windows create a strong period feel, while the kitchen and bathrooms offer practical, usable spaces for everyday living. The property occupies a corner position in the hamlet of Wall and captures far-reaching rural views across the green.
Externally the cottage-style front garden and paved seating area provide a pleasant outlook, while to the rear a walled garden, vegetable beds, decked patio and detached stone outhouse add useful outdoor space and storage. There is off-street parking for several vehicles and easy access to local amenities, good primary and secondary schools, and nearby transport links — appealing for families seeking village life in a very affluent rural area.
Buyers should note this is a Grade II listed building; the listing will restrict some alterations and can complicate maintenance or extensions. Heating is oil-fired, which may be less convenient and more costly than mains gas, and the small plot means outdoor space is manageable rather than extensive. Broadband speed is average for the area and council tax is above average (Band E).
This house will suit buyers who value historic character, strong period features and a picturesque setting, and who are comfortable living with listing constraints and the practicalities of oil heating and modest grounds. It presents immediate charm with scope for careful updating where permitted by its listed status.
4 bedroom detached house for sale in Valley View, Wall, Hexham, NE46 — £575,000 • 4 bed • 3 bath • 1905 ft²
3 bedroom detached house for sale in Milestone Cottage, Wall, Hexham, Northumberland, NE46 — £545,000 • 3 bed • 3 bath • 2599 ft²
5 bedroom cottage for sale in Braeside, Greenhead, Brampton, CA8 — £575,000 • 5 bed • 3 bath • 3692 ft²
4 bedroom detached house for sale in Glenwhelt Coach House, Greenhead, Brampton, Northumberland, CA8 — £575,000 • 4 bed • 2 bath • 1727 ft²
4 bedroom detached house for sale in Mithras Court, Wall, Hexham, Northumberland, NE46 4DJ, NE46 — £470,000 • 4 bed • 2 bath
5 bedroom detached house for sale in The Vicarage, Wall, Hexham, NE46 — £675,000 • 5 bed • 1 bath • 2186 ft²


























































































































































