Spacious period house with large garden and flexible living for modern family life.
Five good-sized bedrooms across three floors
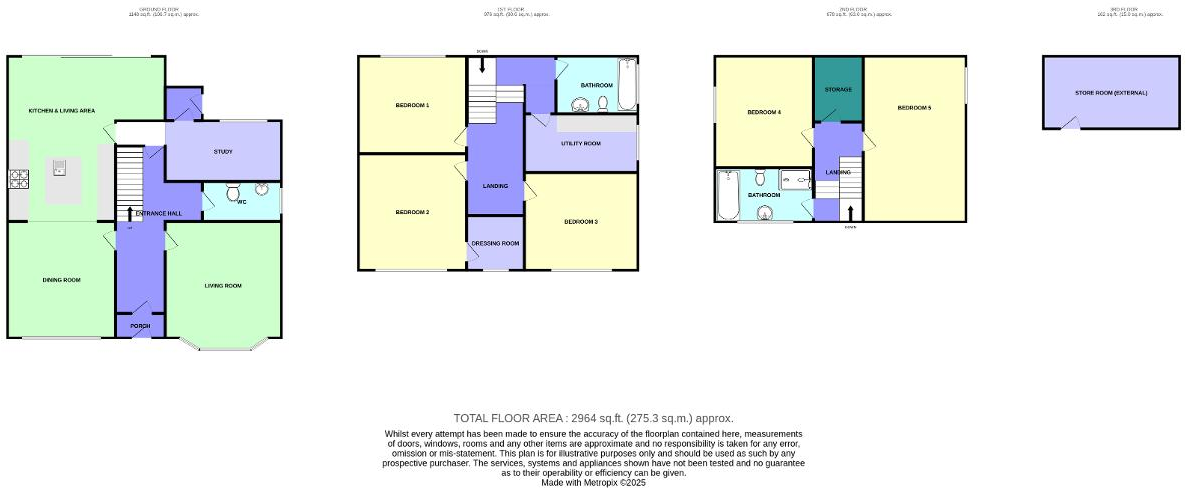
A striking Victorian detached family home arranged over three floors, combining period character with a large contemporary open-plan living space. The ground floor features a bright entrance hall, bay-fronted living room and a dining area that flows into a modern open kitchen with island, skylights, a log burner and bi-fold doors onto decking — ideal for indoor–outdoor family life. The property also benefits from a useful basement store and an adaptable room currently used as a study.
Accommodation continues on the upper floors with five good-sized bedrooms, a dressing room off one principal bedroom and an additional versatile room on the top floor used as a music room. There is a utility room and further storage space on the upper levels, giving practical family storage and scope to reconfigure. Externally the house sits on a large plot with a landscaped rear lawn, mature planting for privacy and a sizeable outbuilding/workshop adjacent to the house.
Practical points to note: the property is freehold, occupies an average overall size plot for the area with off-street parking for multiple vehicles, and sits within an affluent suburb with excellent transport links, good local schools and nearby amenities. EPC is band D and council tax is above average — typical of older, character properties and something to factor into running costs. Overall this is a substantial, well-presented family home offering period charm, modern living space and further potential to personalise.
5 bedroom detached house for sale in Part Street, Southport, Merseyside, PR8 1HY, PR8 — £520,000 • 5 bed • 3 bath
6 bedroom detached house for sale in Aughton Road, Birkdale, Southport, Merseyside, PR8 2AG, PR8 — £649,999 • 6 bed • 1 bath • 2500 ft²
5 bedroom detached house for sale in Liverpool Road, Birkdale, Southport, Merseyside, PR8 4DA, PR8 — £567,500 • 5 bed • 1 bath • 3003 ft²
6 bedroom detached house for sale in Conyers Avenue, Birkdale, Southport, PR8 — £750,000 • 6 bed • 2 bath • 2270 ft²
5 bedroom semi-detached house for sale in Lynton Road, Hillside, Southport, Merseyside, PR8 3AW, PR8 — £495,000 • 5 bed • 3 bath • 2146 ft²
5 bedroom detached house for sale in Lethbridge Road, Southport, Merseyside, PR8 — £525,000 • 5 bed • 3 bath • 3706 ft²






























































































































































