Period terrace with high conversion potential near Scarborough seafront.
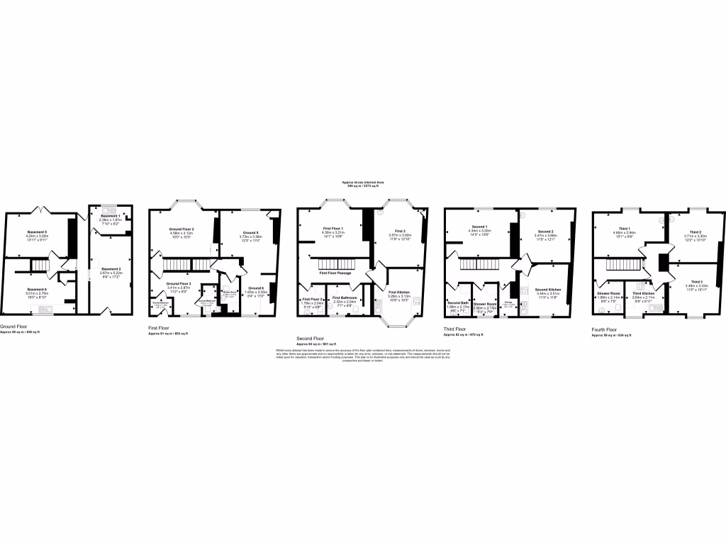
Freehold five‑storey Victorian terrace over 3,273 sq ft (approx 304 sq m)
13 bedrooms and 13 bathrooms; suited to HMO or conversion (subject to consent)
Requires full refurbishment throughout; partially stripped and ready for works
Signs of damp/mould in basement/utility — damp remediation likely required
Solid brick walls with no insulation (assumed); upgrade insulation advised
Electric storage heating; electrical upgrades and new heating likely needed
Very high local crime and very deprived area may affect rental demand
Auction sale; £3,600 admin fee payable on exchange — check legal pack
A substantial five‑storey Victorian terrace offering over 3,200 sq ft, currently arranged as multiple self-contained rooms across basement, ground and upper floors. The freehold property has 13 bedrooms and 13 bathrooms and is presented as a renovation project with immediate scope for conversion to HMO, short‑stay lets or separate flats (subject to consents). It sits just moments from Scarborough South Bay and local amenities, making it attractive for lettings once refurbished.
The building requires comprehensive refurbishment throughout: it has been partially stripped, shows signs of damp and mould in places (basement/utility), and is assumed to have solid brick walls with no insulation. Heating is by electric storage heaters and the EPC is band E. Buyers should expect a full program of works including electrical upgrades, insulation, damp remediation and modernisation of kitchens and bathrooms.
There are clear commercial opportunities for an experienced investor or developer: large room count, coastal location and proximity to tourist services support holiday lets or HMOs. However, the property is in a very deprived area with a very high local crime rate and average broadband/mobile signal; these factors will affect lettability and management costs. Legal pack and planning enquiries are essential before bidding.
The property will be sold at auction. Auction opens 24th November at 13:00 and closes 25th November at 13:00. An administration fee of £3,600 (inc VAT) is payable on exchange; see legal pack for further disbursements. No flood risk recorded.
2 bedroom apartment for sale in No 3, 7 Elders Street, Scarborough, North Yorkshire YO11 1DZ, YO11 — £5,000 • 2 bed • 1 bath • 715 ft²
11 bedroom terraced house for sale in 2 Blands Cliff, Scarborough, North Yorkshire, YO11 1NR, YO11 — £90,000 • 11 bed • 3 bath • 3991 ft²
2 bedroom flat for sale in Fulford Road, Scarborough, YO11 — £52,000 • 2 bed • 1 bath • 696 ft²
Studio flat for sale in Flat 4, 12 South Street, Scarborough, North Yorkshire YO11 2BP, YO11 — £25,000 • 1 bed • 1 bath • 388 ft²
Block of apartments for sale in 14 New Queen Street, Scarborough, North Yorkshire YO12 7HL, YO12 — £90,000 • 1 bed • 1 bath
Mixed use property for sale in 58-60 Eastborough, Scarborough, North Yorkshire, YO11 1NJ, YO11 — £180,000 • 1 bed • 1 bath














































































































































































